Eladó családi ház Szada 179 000 000 Ft

Leírás


Szada Gödöllőhöz közeli részén, természetközeli helyen, de mégis jó infrastruktúra mellett, kiváló elosztással rendelkező, nagyon jó fekvésű, nappali + 4 szobás, nagy teraszos, garázsos energiahatékony családi ház referenciákkal rendelkező, megbízható építőtől eladó!

Műszaki adatok:

- Az ingatlan egyszintes, hasznos lakóterülete 135nm.

- Falazata 30-as PTH téglából + 15cm dryvittal készül.

- Előre gyártott szeglemezes tető, szürkés-barna színű pikkelyes cserépfedés.

- Minden helyiségben 3 réteg üvegezésű műanyag nyílászárók kerülnek beépítésre elektromos aluredőnyökkel.

- Fűtéséről Daikin hősszivattyú gondoskodik padlófűtéssel.

- Hűtő-Fűtő klíma.

- Rengeteg elektromos kiállás lesz a házban.

- Igény esetén, megbeszélés alapján napelem rendszer is kiépíthető.

- 3X20A áram bevezetése, riasztó előkésztés az ár részét képezi.

- A lakás igényesen kialakított belső terekkel, gondosan kiválasztott minőségi burkolatokkal, modern beltéri ajtókkal épül, a vizes helyiségek Hansgrohe csaptelepekkel lesznek felszerelve.

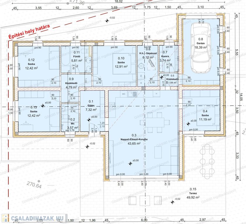
Elosztás: 

- Előtér, tágas nappali-konyha-étkező, közlekedő, 4 szoba, egy zuhanyzós és egy kádas fürdőszoba, háztartási helyiség-gépészet, kamra, valamint 18,39nm-es garázs és 49,92nm-es terasz kerül kialakításra.

Telek:

- 926nm-es telken helyezkedik el.

- A kerítés elektromos kapuval és kaputelefonnal lesz kiépítve.

Környék:

- Csendes, természetközeli környezet.

- Buszmegálló gyalog 10 percre van, iskola, óvoda a központban található.

- Bevásárlási lehetőségek (Lidl Szada, Gödöllő Stop Shop stb.), autópálya kocsival 5-10 perc távolságra.

Irányár: 179Mft



Hivatkozási szám: 2518304.

Megtekinthető telefonos időpont egyeztetés alapján:

Sápi Tamás +36 20 944-7025 sapitamas@godolloi.hu 

GÖDÖLLŐ INGATLANKÖZPONT - www.godolloi.hu: Gödöllő és környéke legnagyobb ingatlan választéka /Gödöllő, Szada, Veresegyház, Kistarcsa, Kerepes, Erdőkertes/ eladó-kiadó családi ház, telek, lakás! Ingatlan építés és felújítás!

Családi ház részletei

Ár: 179 000 000 Ft
Méret: 135 négyzetméter
Azonosító: 11613731
Irodai azonosító: 2518304
Telek: 926 négyzetméter
Ingatlan állapota: Kitűnő
Jelleg: családi ház
Építőanyag: Tégla
Komfort fokozat: Dupla komfort
Kor: Új építésű
Egész szobák: 5

Így keressen családi házat négy egyszerű lépésben. Csupán 2 perc, kötelezettségek nélkül!

Szűkítse a családi házak
listáját
Válassza ki a megfelelő
családi házat
Írjon a hirdetőnek
Várjon a visszahívásra