Az értékesítő:
Sápi Tamás
+36 20 944 7025

Eladó családi ház Szada, 179 000 000 Ft, 135 négyzetméter

179 000 000 Ft
családi ház, 135 négyzetméter
Építőanyag:
Tégla
Egész szobák:
5
Komfort fokozat:
Dupla komfort
Ingatlan állapota:
Kitűnő
Azonosító:
11613731
Értékesítés típusa:
eladó
Ingatlan típusa:
családi ház
Jelleg:
Családi ház
Település:
Szada
Alapterület:
135
Telekterület:
926
Ár:
179 000 000 Ft
Kor:
Új építésű
Telekterület típusa:
négyzetméter
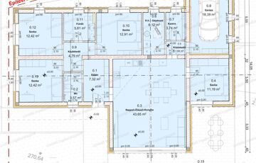
Szada Gödöllőhöz közeli részén, természetközeli helyen, de mégis jó infrastruktúra mellett, kiváló elosztással rendelkező, nagyon jó fekvésű, nappali + 4 szobás, nagy teraszos, garázsos energiahatékony családi ház referenciákkal rendelkező, megbízható építőtől eladó! Műszaki adatok: - Az ingatlan egyszintes, hasznos lakóterülete 135nm. - Falazata 30-as PTH téglából + 15cm dryvittal készül. - Előre gyártott szeglemezes tető, szürkés-barna színű pikkelyes cserépfedés. - Minden helyiségben 3 réteg üvegezésű műanyag nyílászárók kerülnek beépítésre elektromos aluredőnyökkel. - Fűtéséről Daikin hősszivattyú gondoskodik padlófűtéssel. - Hűtő-Fűtő klíma. - Rengeteg elektromos kiállás lesz a házban. - Igény esetén, megbeszélés alapján napelem rendszer is kiépíthető. - 3X20A áram bevezetése, riasztó előkésztés az ár részét képezi. - A lakás igényesen kialakított belső terekkel, gondosan kiválasztott minőségi burkolatokkal, modern beltéri ajtókkal épül, a vizes helyiségek Hansgrohe csaptelepekkel lesznek felszerelve. Elosztás:  - Előtér, tágas nappali-konyha-étkező, közlekedő, 4 szoba, egy zuhanyzós és egy kádas fürdőszoba, háztartási helyiség-gépészet, kamra, valamint 18,39nm-es garázs és 49,92nm-es terasz kerül kialakításra. Telek: - 926nm-es telken helyezkedik el. - A kerítés elektromos kapuval és kaputelefonnal lesz kiépítve. Környék: - Csendes, természetközeli környezet. - Buszmegálló gyalog 10 percre van, iskola, óvoda a központban található. - Bevásárlási lehetőségek (Lidl Szada, Gödöllő Stop Shop stb.), autópálya kocsival 5-10 perc távolságra. Irányár: 179Mft Hivatkozási szám: 2518304. Megtekinthető telefonos időpont egyeztetés alapján: Sápi Tamás +36 20 944-7025 sapitamas@godolloi.hu  GÖDÖLLŐ INGATLANKÖZPONT - www.godolloi.hu: Gödöllő és környéke legnagyobb ingatlan választéka /Gödöllő, Szada, Veresegyház, Kistarcsa, Kerepes, Erdőkertes/ eladó-kiadó családi ház, telek, lakás! Ingatlan építés és felújítás!
https://csaladihazak.hu/elado/csaladi-haz/szada/179-millio-ft;135-negyzetmeter;5-szoba;nincs-megadva-futes/11613731