Eladó családi ház Nyíregyháza, Oros, 98 000 000 Ft

Leírás

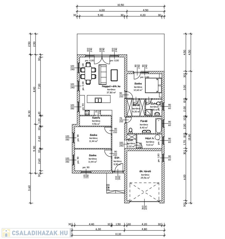
Nyíregyháza, Oros szélén 2026-ban épülő családi ház már foglalható, 139 m2-s garázzsal együtt, három különnyíló szoba, nappali+konyha+étkező egy térben, fürdőszoba+wc, zuhany+wc, kamra, háztartási helység, gardrob a fűtése hőszivattyú mely padlóra vezérelt, nyílászárók fehér három rétegű üveggel. Az ingatlan 3200 m2-s telken fekszik, utcafront 15 m széles, porotherm 30-s téglából épül, külsőleg 15 cm-s nikecel szigetelés, fafödémes, alacsony lejtésű lemeztető mely ATTIKA fallal takarva, automata garázskapu, térkövezett bejárat, utca felől szép kerítés, továbbá tartozik hozzá 40 m2-s nyitott burkolt terasz. Költözni szerződéstől számítva 8-10 hónap!

Családi ház részletei

Ár: 98 000 000 Ft
Méret: 139 négyzetméter
Azonosító: 11593946
Irodai azonosító: 8335
Városrész: Oros
Telek: 3200 négyzetméter
Ingatlan állapota: Épülő
Jelleg: családi ház
Építőanyag: Tégla
Fűtés jellege: Hőszivattyú
Fűtés módja: Villany
Komfort fokozat: Összkomfort
Kor: Új építésű
Elhelyezkedés: Udvari
Szintek száma: Földszintes
Bútorozott: Nem bútorozott
Egész szobák: 3
Nappalik: 1

Egyéb jellemzők

  • Beépíthető tetőtér
  • Csatorna
  • Garázs
  • Kábel TV
  • Melléképület
  • Padlás
  • Parketta
  • Pince
  • Terasz

Így keressen családi házat négy egyszerű lépésben. Csupán 2 perc, kötelezettségek nélkül!

Szűkítse a családi házak
listáját
Válassza ki a megfelelő
családi házat
Írjon a hirdetőnek
Várjon a visszahívásra