Az értékesítő:
Némethné Judit
+36 30 459 7168

Eladó családi ház Nyíregyháza, Oros, 98 000 000 Ft, 139 négyzetméter

98 000 000 Ft
családi ház, 139 négyzetméter
Építőanyag:
Tégla
Egész szobák:
3
Komfort fokozat:
Összkomfort
Fűtés módja:
Villany
Ingatlan állapota:
Épülő
Azonosító:
11593946
Értékesítés típusa:
eladó
Ingatlan típusa:
családi ház
Jelleg:
Családi ház
Település:
Nyíregyháza
Alapterület:
139
Telekterület:
3200
Ár:
98 000 000 Ft
Szintek száma:
Földszintes
Fűtés jellege:
Hőszivattyú
Elhelyezkedés:
Udvari
Kor:
Új építésű
Terasz:
Van
Erkély:
Nincs
Beépíthető tetőtér:
Nincs
Padlás:
Nincs
Melléképület:
Nincs
Pince:
Nincs
Klíma:
Nincs
Parketta:
Nincs
Bútorozott:
Nem bútorozott
Kábel TV:
Van
Telekterület típusa:
négyzetméter
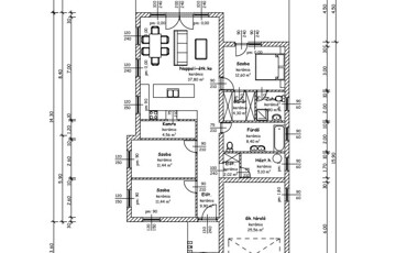
Nyíregyháza, Oros szélén 2026-ban épülő családi ház már foglalható, 139 m2-s garázzsal együtt, három különnyíló szoba, nappali+konyha+étkező egy térben, fürdőszoba+wc, zuhany+wc, kamra, háztartási helység, gardrob a fűtése hőszivattyú mely padlóra vezérelt, nyílászárók fehér három rétegű üveggel. Az ingatlan 3200 m2-s telken fekszik, utcafront 15 m széles, porotherm 30-s téglából épül, külsőleg 15 cm-s nikecel szigetelés, fafödémes, alacsony lejtésű lemeztető mely ATTIKA fallal takarva, automata garázskapu, térkövezett bejárat, utca felől szép kerítés, továbbá tartozik hozzá 40 m2-s nyitott burkolt terasz. Költözni szerződéstől számítva 8-10 hónap!
https://csaladihazak.hu/elado/csaladi-haz/nyiregyhaza/98-millio-ft;139-negyzetmeter;3-szoba;hoszivattyu-futes/11593946