Eladó családi ház Nyíregyháza, Oros, 57 990 000 Ft

Leírás

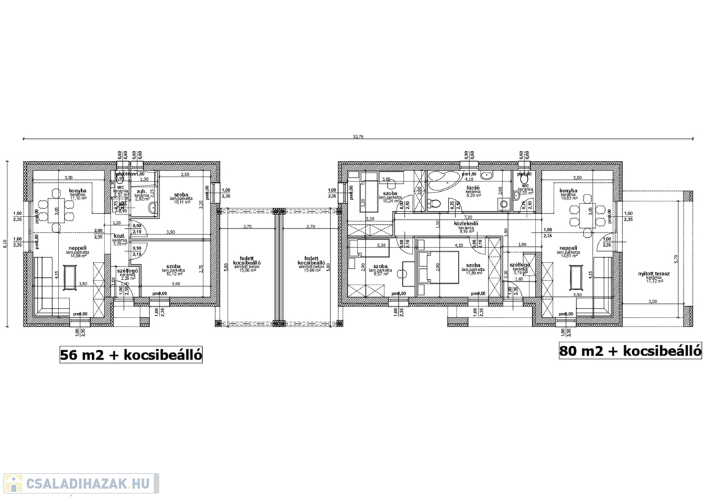
Nyíregyháza - Oros között, Kemence Csárda vonzásában, ÚJ ÉPÍTÉSŰ, 15nm-es garázsok mentén összeépített, 71,5 nm összterülettel, 2 szoba + amerikai konyhás nappalival, külön fürdő és wc-vel, választható járólap és laminált parketta burkolattal, elektromos padlófűtéssel, 3 rétegű műanyag nyílászárókkal redőnyökkel ellátva, 3,5 kw-os inverteres klímával a mai energetikai követelményeknek megfelelően, 300 nm-es telken, ikerház eladó. Kulcsátadás 100%-os készültség 2026 nyári átadással.Az ingatlan azonosítója: 97212Érdeklődni: +36702560693 Az ingatlan azonosítója: 97212 Érdeklődni: +36702560693

Családi ház részletei

Ár: 57 990 000 Ft
Méret: 71 négyzetméter
Azonosító: 11576477
Irodai azonosító: 97212
Városrész: Oros
Telek: 300 négyzetméter
Ingatlan állapota: Épülő
Jelleg: családi ház
Építőanyag: Tégla
Fűtés jellege: Villany
Kor: 1-5 éves
Egész szobák: 2

Így keressen családi házat négy egyszerű lépésben. Csupán 2 perc, kötelezettségek nélkül!

Szűkítse a családi házak
listáját
Válassza ki a megfelelő
családi házat
Írjon a hirdetőnek
Várjon a visszahívásra