Az értékesítő:
Szabolcsi Zoltán
+36 70 256 0693

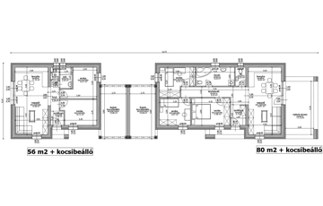
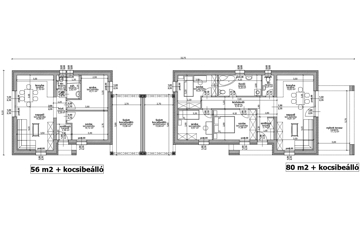
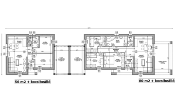
Eladó családi ház Nyíregyháza, Oros, 57 990 000 Ft, 71 négyzetméter

57 990 000 Ft
családi ház, 71 négyzetméter
Építőanyag:
Tégla
Egész szobák:
2
Ingatlan állapota:
Épülő
Azonosító:
11576477
Értékesítés típusa:
eladó
Ingatlan típusa:
családi ház
Jelleg:
Családi ház
Település:
Nyíregyháza
Alapterület:
71
Telekterület:
300
Ár:
57 990 000 Ft
Fűtés jellege:
Villany
Kor:
1-5 éves
Telekterület típusa:
négyzetméter
Nyíregyháza - Oros között, Kemence Csárda vonzásában, ÚJ ÉPÍTÉSŰ, 15nm-es garázsok mentén összeépített, 71,5 nm összterülettel, 2 szoba + amerikai konyhás nappalival, külön fürdő és wc-vel, választható járólap és laminált parketta burkolattal, elektromos padlófűtéssel, 3 rétegű műanyag nyílászárókkal redőnyökkel ellátva, 3,5 kw-os inverteres klímával a mai energetikai követelményeknek megfelelően, 300 nm-es telken, ikerház eladó. Kulcsátadás 100%-os készültség 2026 nyári átadással.Az ingatlan azonosítója: 97212Érdeklődni: +36702560693 Az ingatlan azonosítója: 97212 Érdeklődni: +36702560693
https://csaladihazak.hu/elado/csaladi-haz/nyiregyhaza/58-millio-ft;71-negyzetmeter;2-szoba;villany-futes/11576477