Eladó családi ház Monor, Belváros, 82 000 000 Ft

Leírás

HASZNÁLJA KI A CSOK+ KAMATTÁMOGATOTT HITEL ELŐNYEIT ÉS A 4% ILLETÉKKEDVEZMÉNYT, VALAMINT A 3 %-OS OTTHON START HITELT!!!!!!

KIZÁRÓLAG A JUDIT INGATLAN-, ÉS HITELIRODA KÍNÁLATÁBAN!!!

10 %-al FOGLALÓZHATÓ!!!

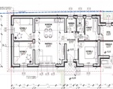
Monor központjától nem messze 2 db társasházi lakás épül közös kocsibeállóval, saját 500 m2-es telekkel.

1. Lakás 75,87 m2, ára 82.000.000.- Ft

2. Lakás 78,24m2, ára 87.000.000.- Ft

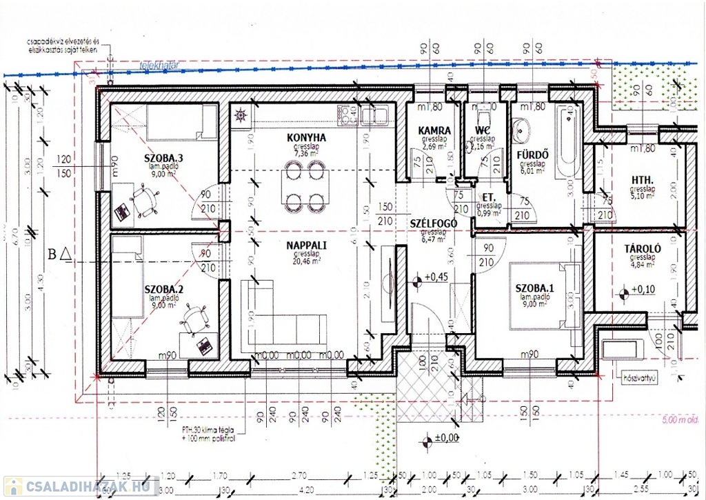
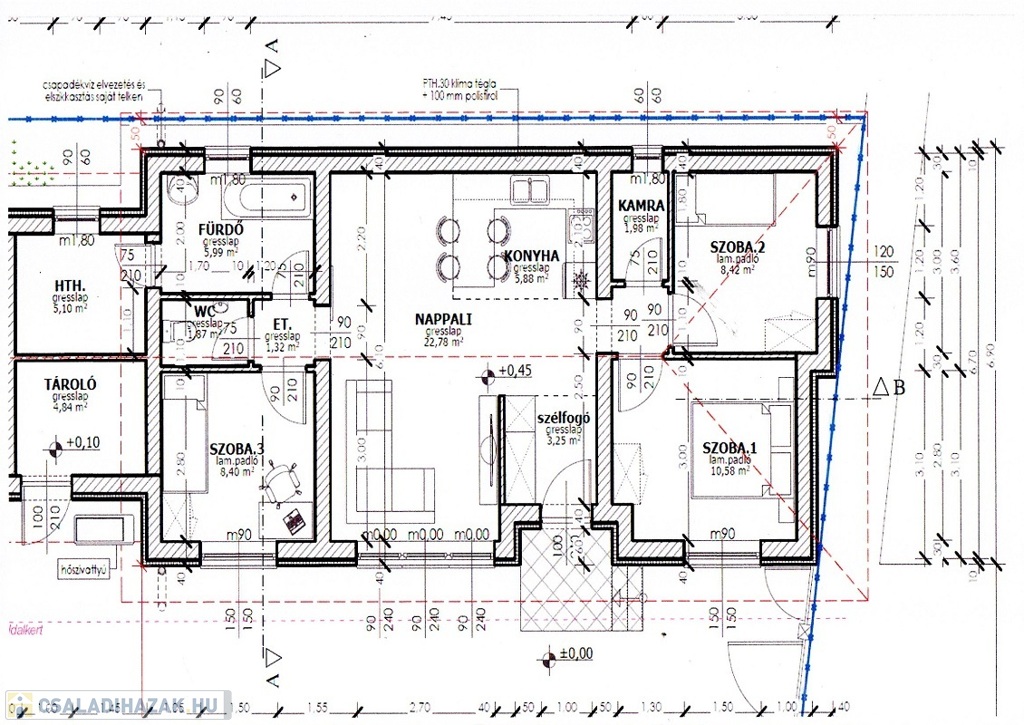
Az 1. lakás lakóterülete 75,87 m2, melyben szélfogó (3,25 m2), nappali (22,78 m2), konyha (5,88 m2), kamra (1,98 m2), előtér (1,32 m2), 1. szoba (10,88 m2), 2. szoba (8,42 m2), 3. szoba (8,40 m2), fürdőszoba (5,99 m2) és különálló WC (1,87 m2) található, valamint háztartási helyiség (5,10 m2), és tároló (4,84 m2) kapcsolódik a lakáshoz. A lakás szennyvíz elvezetése bio emésztőbe történik.

A 2. lakás lakóterülete 78,24 m2, melyben szélfogó (6,47 m2), nappali (20,46 m2), konyha (7,36 m2), kamra (2,69 m2), előtér (0,99 m2), 1. szoba (9,00 m2), 2. szoba (9,00 m2), 3. szoba (9,00 m2), fürdőszoba (6,01 m2) és különálló WC (2,16 m2) található, valamint háztartási helyiség (5,10 m2), és tároló (4,84 m2) kapcsolódik a lakáshoz. A lakás szennyvíz elvezetése csatornába történik.

Fűtés: hőszivattyúval, hőleadás padlófűtéssel, valamint inverteres klímával, („H” tarifa)

A nyílászárók redőnnyel és szúnyoghálóval felszereltek!

Burkolatok 10.000.- Ft/m2 árig választhatóak!

Elektromos kapu!

Átadás: 2026. év vége

AZ ELKÉSZÜLT INGATLANOKTÓL FELTÖLTÖTT KÉPEK A VÁLLALKOZÓ ÁLTAL ÉPÍTETT INGATLANOK REFERENCIAMUNKÁI!!!

DÍJMENTES HITELÜGYINTÉZÉS IRODÁNKBAN!!!

OTTHON START HITEL, CSOK+, BABAVÁRÓ KÖLCSÖN, KAMATTÁMOGATOTT-, ÉS PIACI LAKÁSHITELEK, ….

2003 ÓTA AZ ÖNÖK BIZALMÁBAN!

Családi ház részletei

Ár: 82 000 000 Ft
Méret: 76 négyzetméter
Azonosító: 11579046
Irodai azonosító: 2143
Városrész: Belváros
Telek: 500 négyzetméter
Ingatlan állapota: Épülő
Jelleg: sorház
Építőanyag: YTONG
Fűtés jellege: Hőszivattyú
Fűtés módja: Hőszivattyú
Komfort fokozat: Összkomfort
Kor: Új építésű
Elhelyezkedés: Utcafronti
Szintek száma: Földszintes
Bútorozott: Nem bútorozott
Egész szobák: 1
Fél szobák: 3
Nappalik: 1

Egyéb jellemzők

  • Beépíthető tetőtér
  • Csatorna
  • Garázs
  • Kábel TV
  • Melléképület
  • Padlás
  • Parketta
  • Pince

Térkép


Így keressen családi házat négy egyszerű lépésben. Csupán 2 perc, kötelezettségek nélkül!

Szűkítse a családi házak
listáját
Válassza ki a megfelelő
családi házat
Írjon a hirdetőnek
Várjon a visszahívásra