Az értékesítő:
Moldván Judit
+36 30 625 5266

Eladó családi ház Monor, Belváros, 82 000 000 Ft, 76 négyzetméter

82 000 000 Ft
családi ház, 76 négyzetméter
Építőanyag:
YTONG
Egész szobák:
1
Komfort fokozat:
Összkomfort
Fűtés módja:
Hőszivattyú
Ingatlan állapota:
Épülő
Azonosító:
11579046
Értékesítés típusa:
eladó
Ingatlan típusa:
családi ház
Jelleg:
Sorház
Település:
Monor
Alapterület:
76
Telekterület:
500
Ár:
82 000 000 Ft
Szintek száma:
Földszintes
Fűtés jellege:
Hőszivattyú
Elhelyezkedés:
Utcafronti
Kor:
Új építésű
Erkély:
Nincs
Beépíthető tetőtér:
Nincs
Padlás:
Van
Melléképület:
Van
Pince:
Nincs
Klíma:
Van
Parketta:
Van
Bútorozott:
Nem bútorozott
Kábel TV:
Van
Telekterület típusa:
négyzetméter
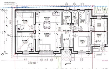
HASZNÁLJA KI A CSOK+ KAMATTÁMOGATOTT HITEL ELŐNYEIT ÉS A 4% ILLETÉKKEDVEZMÉNYT, VALAMINT A 3 %-OS OTTHON START HITELT!!!!!! KIZÁRÓLAG A JUDIT INGATLAN-, ÉS HITELIRODA KÍNÁLATÁBAN!!! 10 %-al FOGLALÓZHATÓ!!! Monor központjától nem messze 2 db társasházi lakás épül közös kocsibeállóval, saját 500 m2-es telekkel. 1. Lakás 75,87 m2, ára 82.000.000.- Ft 2. Lakás 78,24m2, ára 87.000.000.- Ft Az 1. lakás lakóterülete 75,87 m2, melyben szélfogó (3,25 m2), nappali (22,78 m2), konyha (5,88 m2), kamra (1,98 m2), előtér (1,32 m2), 1. szoba (10,88 m2), 2. szoba (8,42 m2), 3. szoba (8,40 m2), fürdőszoba (5,99 m2) és különálló WC (1,87 m2) található, valamint háztartási helyiség (5,10 m2), és tároló (4,84 m2) kapcsolódik a lakáshoz. A lakás szennyvíz elvezetése bio emésztőbe történik. A 2. lakás lakóterülete 78,24 m2, melyben szélfogó (6,47 m2), nappali (20,46 m2), konyha (7,36 m2), kamra (2,69 m2), előtér (0,99 m2), 1. szoba (9,00 m2), 2. szoba (9,00 m2), 3. szoba (9,00 m2), fürdőszoba (6,01 m2) és különálló WC (2,16 m2) található, valamint háztartási helyiség (5,10 m2), és tároló (4,84 m2) kapcsolódik a lakáshoz. A lakás szennyvíz elvezetése csatornába történik. Fűtés: hőszivattyúval, hőleadás padlófűtéssel, valamint inverteres klímával, („H” tarifa) A nyílászárók redőnnyel és szúnyoghálóval felszereltek! Burkolatok 10.000.- Ft/m2 árig választhatóak! Elektromos kapu! Átadás: 2026. év vége AZ ELKÉSZÜLT INGATLANOKTÓL FELTÖLTÖTT KÉPEK A VÁLLALKOZÓ ÁLTAL ÉPÍTETT INGATLANOK REFERENCIAMUNKÁI!!! DÍJMENTES HITELÜGYINTÉZÉS IRODÁNKBAN!!! OTTHON START HITEL, CSOK+, BABAVÁRÓ KÖLCSÖN, KAMATTÁMOGATOTT-, ÉS PIACI LAKÁSHITELEK, …. 2003 ÓTA AZ ÖNÖK BIZALMÁBAN!
https://csaladihazak.hu/elado/csaladi-haz/monor/82-millio-ft;76-negyzetmeter;4-szoba;hoszivattyu-futes/11579046