Eladó családi ház Dunaharaszti 154 980 000 Ft

Leírás

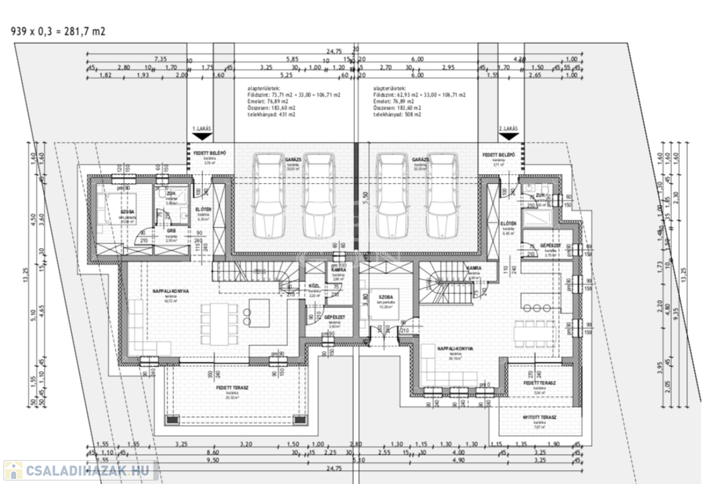
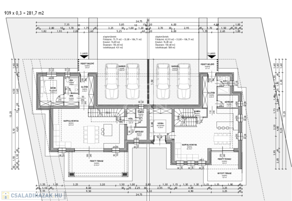
Dunaharaszti Alsóvárosban kétszintes ikerház mindkét lakása dupla állásos garázzsal eladó.

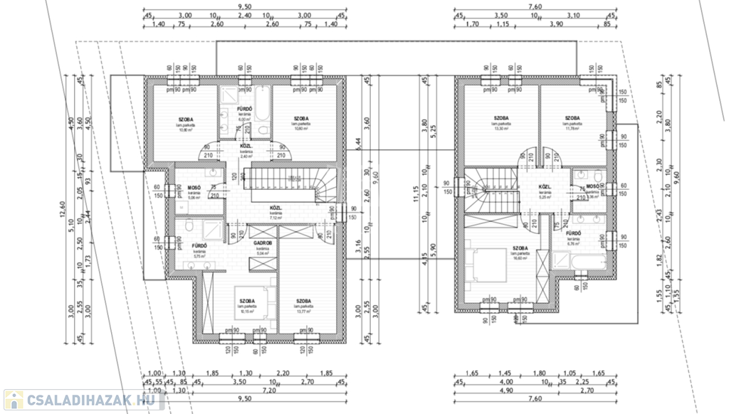
Az 1 sz. lakás alapterülete:182 m2 alapterületű két szinten 5 db. hálószobával, 3 fürdőszobával, dupla állásos garázzsal épül.
A hozzátartozó telekterület: 455 m2. Ára: 154 980 000 Ft.

A 2 sz. lakás alaptrülete:156m2 alapterületű két szinten 4db. hálószobával, 3 fürdőszobával, dupla állásos garázzsal épül.
A hozzátartozó telekterület: 484 m2. Ára: 145 680 000 millió Ft.

Izgalmas, látványos tervezés, élhető tágas terek jellemzik az ingatlant.
A kivitelező számtalan referenciával rendelkezik, amit szívesen megmutatunk.

Műszaki tartalom:
1ALAPOZÁS
0,8 m mélységű vasbeton sávalap mixerbetonnal (szerelőbeton készítése)
2KIEMEÉLS
30-as zsalukő
3FŐFAL HŐSZIGETELÉS
15cm EPS hungarocell
4FALAZÁS/ÁTHIDALÓ
a köritő falazat (főfalak) 30-as kerámia (tégla) falazóelemmel, belső válaszfalak 10-es ytongból készülnek
5KOSZORÚZSALUZÁS, HŐSZIGETELÉS
EPS 100, 5cm
6ALJZAT VÍZSZIGETELÉS
GV45 bitumenes szigetelőlemez
7KÉMÉNY
Kémény építés kondenzációs kazánhoz előírás szerint engedélyeztetve
8KÖZMŰ
Az ingatlan teljes közművel rendelkezik (víz, gáz, villany, csatorna)
9FÖDÉM FSZ. FÖDÉM EMELET
monolit vasbeton födém fa födém 25cm kőzetgyapotszigeteléssel
10LÉPCSŐ
vasbeton lépcső kerámia burkolat
11TETŐSZERKEZET
magastető, szürke cserépfedéssel
12ALJZAT HŐSZIGETELÉS
EPS 100 6-12CM KÖZÖTT
13JÁRDA (AZ ÉPÜLET KÖRŰL), KOCSIBEÁLLÓ A TELKEN ÉS AZ UTCÁN
10×20 cm-es, szürke viacolorral kerül kiépítésre
14FESTÉS
3× glettelés+2× diszperziós fehér falfesték, élvédőzve
15BÁDOGOZÁS- CSATORNARENDSZER
Cserép színével megegyező alulemez bádogozás, a lefutó ereszcsatornák szikkasztóba való elvezetése
16FŰTÉSRENDSZER GÉPÉSZET
Padlófűtés a fölszinten, az emeleten és a garázsban, kondenzációs fali kazán, fürdőszobákban (összesen: 2db) törölköző szárító radiátor kerül kiépítésre.
17HOMLOKZATI NYILÁSZÁRÓ (BUKÓ-NYILÓ)
műanyag – 6 légkamrás, fehér színben, 2 gumi tömítés, Ug=0,7 W/m2k, 3 rétegü üvegezés,
18BELTÉRIAJTÓ
dekorfóliás, MDF vagy CPL borítású beltéri ajtók kilincsel alumínium burkolatváltóval
19GARÁZSAJTÓ
Eurokapu szekciónált, automata garázskapu kerül felszerelésre fehér színben
20ABLAKKÖNYÖKLŐ
kő párkányok
21VILLANYSZERELÉS- KAPCSOLÓK
Legrand fehér maximum 65 kiállással, 45 db szerelvény
22ELEKTROMOSHÁLÓZAT
3×16 Amper
23BURKOLATOK
laminált + kerámia burkolat 6000Ft/m2 -ig az árban 210 cm magasságig a vizes helységekben. Az árban 60×60 cm -es lapokkal, hálós lerakásban. Nagyobb méretűlapok és más lerakási mód esetén külön árajánlat alapján feláras. A meleg burkolat esetén a 6000Ft/m2 -ben a szegély is benne van. A melegburkolat alá kerülő alátét és a burkolat váltók a vételár részét kepézik.
24KONYHAI KIÁLLÁSOK KIÉPÍTÉSE
konyhai elszívó, elektromos sütő, mosogatógép kiállások kiépítése
25SZANITER (wc, csaptelepek, zuhanykabin, kád)
26FÜRDŐSZOBA
épített zuhany kerül kiépítésre
27KANDALÓKÉMÉNY
nincs
28REDŐNY
Kis méretű ablakokon kívül (mellékhelységek, fürdőszobák, konyha, gardrób szoba) minden ablakon műanyag fehér színű redőny kerül beépítésre szúnyoghálóval.
29RIASZTÓ ELŐKÉSZÍTÉS
maximum 7 db. kiállással az árban (a vevő igényei szerint elhelyezve)
30NAPELEM ALAPSZERELÉS 3 kw teljesítményig + elektromos autótöltő.

31KLÍMA KIÉPÍTÉSE
3 db klíma kiépitése és 1 db klima max 300 ezer forint .
32LEHAJTHATÓS PADLÁS FELJÁRÓ
2db kerül beépítésre egy a garázsba és egy az emeleti szinten
33KÜLSŐ TÁROLÓ
Terveken feltüntetett módon megépítve
34FEDETT TERASZ (PERGOLA)
Terveken feltüntetett módon megépítve, polikarbonát tetővel
35EMELETI TERASZ KOLÁT
vaskorlát függőleges pálcákkal
36UTCAFRONTI KERÍTÉS
60 cm-es sávalappal, 25 cm -e zsalukőből készül (1,75 m magaságig) glettelve, színezve fedlappal lezárva. A zsalukő oszlopok kőzött vízszintes fa borítású vagy hatású betéttel. A B lakás esetében 1 db úszókapú a garázsnál (a kerítés síkjában), 1 db kiskapu a bejáratnál, és 1 db úszókapu a ház és a telekhatár között (kiskapuval) kerül megépítésre sima zárral. (Kapuk motorizálásához szükséges elektromos kiállás alap szerelésre kerül).
37TELEK ELVÁLASZTÓ KERÍTÉS
Betonba ültetett zártszelvény, lemez kerités beépítésre
38KAPUTELEFON
alapszerelésre kerül
39KERTI CSAP
1db kerti csap kiépítésre kerül, 1db meglévőkút
40TEREPRENDEZÉS
sitt, törmelék elszállítva, telek tereprendezése (nem kertépítés) azaz terület kitakarítva és elegyengetve termőföld feltöltés nélkül kerül átadásra.
41TÁRSASHÁZALAPÍTÓ OKIRAT
A vételár részét képezi az okirat elkészítése.
42A LAKÁS VÉTELÁRA NEM TARTALMAZZA AZ ALAÁBBIAKAT
Földhivatali eljárási díjak
világító testek
beépített szekrények
konyhabútor
lépcső korlát.

A vétel elindításához 20 % önerő szükséges.

Amivel segítjük az Ön ingatlan vásárlását:
- ingyenes hitelügyintézés (CSOK és Babaváró és egyéb hitel
ügyintézése is)
- jogi háttér,
- földhivatali ügyintézés,
- energetikai tanúsítvány ügyintézése,
- a vevő számára ingyenes az ingatlanközvetítés.
Irodánk 27 éves tapasztalattal áll ügyfelei rendelkezésére!

Várom szíves megkeresését.

Családi ház részletei

Ár: 154 980 000 Ft
Méret: 182 négyzetméter
Azonosító: 11536775
Irodai azonosító: 382470
Cím: Alsóváros
Telek: 455 négyzetméter
Ingatlan állapota: Épülő
Jelleg: ikerház
Építőanyag: Tégla
Fűtés jellege: Geotermikus
Fűtés módja: Hőszivattyú
Komfort fokozat: Dupla komfort
Kor: Új építésű
Szintek száma: 1 szint
Egész szobák: 5

Egyéb jellemzők

  • Csatorna
  • Garázs
  • Pince
  • Terasz

Térkép


Így keressen családi házat négy egyszerű lépésben. Csupán 2 perc, kötelezettségek nélkül!

Szűkítse a családi házak
listáját
Válassza ki a megfelelő
családi házat
Írjon a hirdetőnek
Várjon a visszahívásra