Eladó családi ház Debrecen 249 000 000 Ft

Leírás

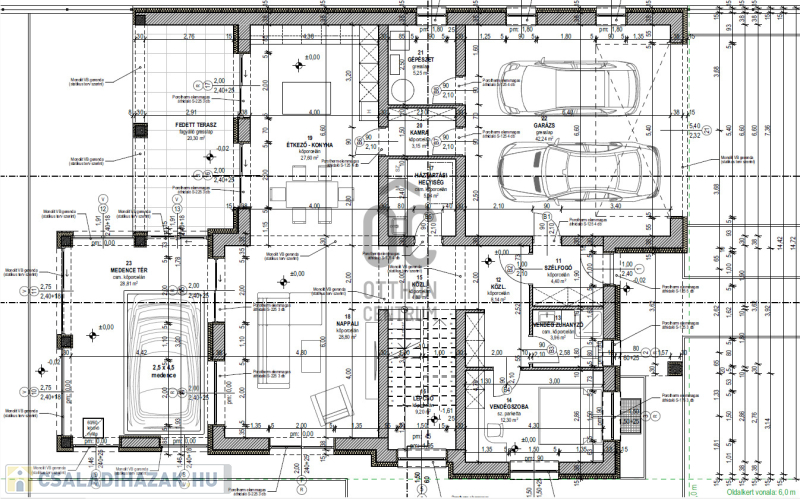
Debrecen Pallag új részén eladó, egy 2023 - ban átadott, 321,63 m2 hasznos alapterületű önálló családi ház.
Az ingatlan 900 m2 - es telekre épült, nagyon modern, egyedi megoldásokkal.
Kialakítása : mediterrán stílusú, 3 szinten helyezkedik el , + a öntözőrendszerrel ellátott , parkosított udvar.
Hőszivattyús padlófűtés, mennyezet hűtés
- Pinceszint : 35,35 m2
Helyiségei : előtér , hobbi , játszószoba / dolgozószoba
- Földszint : 183,69 m2 + 20,33 m2 fedett terasz
Helyiségei : 42 m2 - es garázs, amerikai konyha - étkező - nappali ( 56,4 m2 ), vendégszoba + zuhanyzó, fedett terasz, kamra, gépészeti helyiség + medence tér ( 28,81 m2 )
- emelet : 102,59 m2 + 19 m2 terasz
helyiségei : 3 nagyméretű szoba, fürdők, wc , gardrob + terasz
Műszaki jellemzői :
- vízzáró betonból készült a pince falazat, szigeteléssel
- Pototherm 38 Nf tégla falazat + 20 cm homlokzati szigetelés
- egyedileg gyártott fa nyílászárók 3 rétegű üvegezéssel
- egyedileg gyártott fa beltéri ajtók
- hörmann garázskapu
- textil árnyékolók
- monolit vasbeton födémek
- padló fűtés, mennyezet hűtés-fűtés
- 16 kW Daikin hőszivattyú
- 460 l használati melegvíz tároló, 100 l fűtési-hűtési puffer tartály
- 14,4 kWp napelem van felrakva, 10 kw inverter. Szaldós elszámolás még 2033-ig. Kb. 1700 - 2000 kWh plusz termelés az éves fogyasztáshoz képest.
- gáz nincs
- csak vízdíj fizetés van, kvázi rezsimentes a ház
- kamera rendszer van
- a ház fűtés, hűtés rendszere, árnyékolók, öntözőrendszer, kapu, garázsajtó a Fibaro okosotthon rendszerbe van integrálva. Applikációból minden vezérelhető.
- légtecknika van kiépítve
Még lehetne mit írnom az ingatlanról, de ha önt érdekli, egy személyes bemutatás során még a többi, lemaradt részletekről is tájékoztatjuk.
Az ingatlanról videó bemutató kis film készült, az otthonában megtekintheti, hogy mit kínálunk.
A videó you tube - n elérhető, akövetkező linken : https://www.youtube.com/watch?v=Ueo_k6KfCGE&ab_channel=OtthonCentrum-Debrecen-Hatvanutca
Ha felkeltettem az érdeklődését, kérem hívjon bizalommal !

Családi ház részletei

Ár: 249 000 000 Ft
Méret: 322 négyzetméter
Azonosító: 11551464
Telek: 900 négyzetméter
Ingatlan állapota: Kitűnő
Jelleg: családi ház
Építőanyag: Kérdezzen rá a hirdetőtől »
Egész szobák: 5

Egyéb jellemzők

  • Csatorna
  • Garázs
  • Kábel TV
  • Melléképület
  • Parketta
  • Pince
  • Terasz

Így keressen családi házat négy egyszerű lépésben. Csupán 2 perc, kötelezettségek nélkül!

Szűkítse a családi házak
listáját
Válassza ki a megfelelő
családi házat
Írjon a hirdetőnek
Várjon a visszahívásra