Eladó családi ház Cered 15 700 000 Ft

Leírás

Cereden, 88 nm-es, 3+1 félszobás, tégla szerkezetű, tehermentes családi ház eladó!

Vendégház kialakítására alkalmas! Már több hasonló egység üzemel sikeresen a faluban!

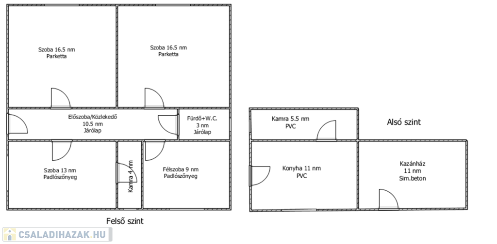
Helyiségei: 3 szoba, 1 félszoba, előszoba/közlekedő, kamra, fürdőszoba, az alsó szinten, konyha, kamra, kazánház.

A fűtést gáz cirkó kazán, illetve hagyományos kazán, a meleg víz ellátást villanybojler biztosítja.

Az ingatlanhoz tartozó 1500 nm-es telek, gondozott, körbekerített, területén udvari gépkocsi beálló, garázs, gazdálkodásra alkalmas melléképületek, termő gyümölcsfák, ásott kút található.

Falusi CSOK igényelhető!
(További képekért és információkért kérem hívjon!)

Családi ház részletei

Ár: 15 700 000 Ft
Méret: 88 négyzetméter
Azonosító: 11540741
Irodai azonosító: 448659
Telek: 1500 négyzetméter
Ingatlan állapota: Felújított
Jelleg: családi ház
Építőanyag: Tégla
Fűtés jellege: Cirkó
Egész szobák: 4

Egyéb jellemzők

  • Beépíthető tetőtér
  • Csatorna
  • Garázs
  • Melléképület
  • Pince
  • Terasz

Így keressen családi házat négy egyszerű lépésben. Csupán 2 perc, kötelezettségek nélkül!

Szűkítse a családi házak
listáját
Válassza ki a megfelelő
családi házat
Írjon a hirdetőnek
Várjon a visszahívásra