Az értékesítő:
Tatár Tamás
+36 70 439 8123

Eladó családi ház Cered, 15 700 000 Ft, 88 négyzetméter

15 700 000 Ft
családi ház, 88 négyzetméter
Építőanyag:
Tégla
Egész szobák:
4
Ingatlan állapota:
Felújított
Azonosító:
11540741
Értékesítés típusa:
eladó
Ingatlan típusa:
családi ház
Jelleg:
Családi ház
Település:
Cered
Alapterület:
88
Telekterület:
1500
Ár:
15 700 000 Ft
Fűtés jellege:
Cirkó
Terasz:
Van
Erkély:
Nincs
Beépíthető tetőtér:
Nincs
Melléképület:
Van
Pince:
Nincs
Klíma:
Nincs
Telekterület típusa:
négyzetméter
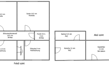
Cereden, 88 nm-es, 3+1 félszobás, tégla szerkezetű, tehermentes családi ház eladó! Vendégház kialakítására alkalmas! Már több hasonló egység üzemel sikeresen a faluban! Helyiségei: 3 szoba, 1 félszoba, előszoba/közlekedő, kamra, fürdőszoba, az alsó szinten, konyha, kamra, kazánház. A fűtést gáz cirkó kazán, illetve hagyományos kazán, a meleg víz ellátást villanybojler biztosítja. Az ingatlanhoz tartozó 1500 nm-es telek, gondozott, körbekerített, területén udvari gépkocsi beálló, garázs, gazdálkodásra alkalmas melléképületek, termő gyümölcsfák, ásott kút található. Falusi CSOK igényelhető! (További képekért és információkért kérem hívjon!)
https://csaladihazak.hu/elado/csaladi-haz/cered/16-millio-ft;88-negyzetmeter;4-szoba;cirko-futes/11540741