Eladó családi ház Budapest XVIII. ker 149 900 000 Ft

Leírás

Tágas, újépítésű otthon családoknak – 3 szoba + nappali, garázs, kertvárosi nyugalom a XVIII. kerületben!

Budapest egyik legnyugodtabb, kertvárosias hangulatú környékén, az Újpéteri telepen kínálunk megvételre egy új építésű, földszintes családi házat, amely ideális választás lehet családoknak, vagy azoknak, akik nyugalomra vágynak a város közelségében.

Az ingatlan egy 857,5 m²-es telek hátsó részén helyezkedik el, teljesen elszeparáltan, saját kertkapcsolattal. A ház megközelítése szolgalmi úton történik, ezáltal még csendesebb, intimebb lakókörnyezetet biztosít. Az utcafronton egy másik, emeletes ház épül, azonban a két épület teljesen független egymástól – semmilyen módon nem érnek össze.

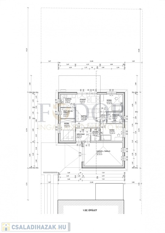
A tervek szerint épülő ingatlan egy szinten helyezkedik el, összesen 119,63 m²-es alapterülettel (ebből 90,44 m² a lakótér, 29,19 m² pedig a garázs és a terasz). A házban 3 kényelmes hálószoba, egy világos nappali, konyha-étkező, fürdőszoba, háztartási helyiség és vendég-WC kap helyet. A saját telekrész körülbelül 577,5 m²-es, így kellemes méretű kert alakítható ki, akár családi pihenésre, grillezésre, vagy gyerekeknek játszótérként.

Műszaki tartalom – prémium minőség a részletekben:
Az építkezés korszerű technológiával és minőségi alapanyagokkal valósul meg. Néhány kiemelt jellemző:
• Masszív vasalt sávalapozás, 50 cm szélességben
• Kétsoros bitumenes szigetelés a nedvesség ellen
• 30 cm vastag blokktégla főfalak + 15 cm grafitos homlokzati szigetelés
• Betongerendás födém a földszinten, fa födémszerkezet az emelet felett
• 25 cm hőszigetelés a padlástérben
• Betoncserép fedés + horganyzott csapadékcsatorna-rendszer
• Modern levegő-víz hőszivattyús rendszer padlófűtéssel
• H tarifa az energiatakarékos üzemeltetéshez
• Fürdőkben törölközőszárítós radiátor
• Klíma előkészítés, illetve szerelés
• Műanyag nyílászárók, rejtett redőnytok-előkészítéssel
• Elektromos kapu, riasztórendszer előkészítés
• Térkövezett gépkocsi- és személybejáró
• A burkolatok, szaniterek, beltéri ajtók meghatározott keretösszegig szabadon választhatók

A kivitelezés hamarosan elindul, a tervezett átadás 2026 II. negyedévében várható, így még van lehetőség saját igényei szerint alakítani a belső tereket.

Kiváló lokáció, csendes zöldövezet:
A környék infrastruktúrája kiváló: a közelben található iskola, óvoda, bevásárlási lehetőségek, orvosi rendelő, valamint tömegközlekedés is könnyen elérhető. A belváros gyorsan megközelíthető, ugyanakkor itt valóban érezhető a kertváros nyugalma.

Saját elképzelései szerint alakítaná új otthonát? Itt a lehetőség!
Foglalja le most, és tervezze meg álmai házát a kivitelezés első pillanatától kezdve!

Irodánk díjmentes hitelügyintézéssel, CSOK Plusz tanácsadással és banki partneri háttérrel segíti Önt a vásárlás minden lépésében!

Családi ház részletei

Ár: 149 900 000 Ft
Méret: 120 négyzetméter
Azonosító: 11564763
Irodai azonosító: 342004
Telek: 578 négyzetméter
Ingatlan állapota: Kitűnő
Jelleg: családi ház
Építőanyag: Tégla
Komfort fokozat: Dupla komfort
Kor: Új építésű
Egész szobák: 4

Egyéb jellemzők

  • Garázs
  • Terasz

Így keressen családi házat négy egyszerű lépésben. Csupán 2 perc, kötelezettségek nélkül!

Szűkítse a családi házak
listáját
Válassza ki a megfelelő
családi házat
Írjon a hirdetőnek
Várjon a visszahívásra