Eladó családi ház Zamárdi 90 000 000 Ft

Leírás

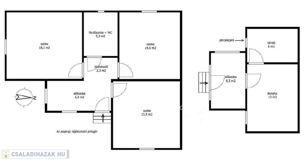
Balaton déli part, Zamárdi, 87 m2 családi ház, 730 m2 telek eladó. Az ingatlan a település lakóövezetében helyezkedik el, 600 méterre a kiépített szabadstrandtól. A 63 m2-es lakóház lakóterét egy 24 m2-es külön épületben nyári konyha egészíti ki tárolóval és pincével. A családi ház fűtését gázkonvektor biztosítja, a melegvízről bojler gondoskodik. Az ingatlan értékét növeli egy több lehetőséget rejtő melléképület, illetve egy fúrt kút, ami ellátja a hangulatos, dísznövényekkel, valamint alma- és diófával ültetett, tágas kertet. Az ingatlan kiválóan alkalmas állandó lakhatásra és nyaralásra is, de tökéletes választás lehet befektetési céllal kiadásra is. A kisebb épület könnyen átalakítható egy önálló apartmanná, a saját termésű gyümölcs pedig igazi kincs a mai világban. Lokáció tekintetében ritka lehetőség egy közkedvelt településen, párszáz méterre a strandtól, vasútállomástól, bevásárlási lehetőségtől. Bővebb információért keressen telefonon!

Referencia szám: M317642

Családi ház részletei

Ár: 90 000 000 Ft
Méret: 87 négyzetméter
Azonosító: 11586129
Irodai azonosító: M317642-5103817
Telek: 730 négyzetméter
Ingatlan állapota: Átlagos
Jelleg: családi ház
Építőanyag: Tégla
Fűtés jellege: Konvektoros
Fűtés módja: Gáz
Komfort fokozat: Komfort
Kor: 50 évesnél régebbi
Szintek száma: Földszintes
Egész szobák: 3

Egyéb jellemzők

  • Garázs

Térkép


Így keressen családi házat négy egyszerű lépésben. Csupán 2 perc, kötelezettségek nélkül!

Szűkítse a családi házak
listáját
Válassza ki a megfelelő
családi házat
Írjon a hirdetőnek
Várjon a visszahívásra