Eladó családi ház Zamárdi 250 000 000 Ft

Leírás

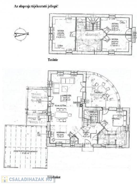
Balaton déli part, Zamárdi, 188 m2 családi ház, 578 m2 telek eladó. A két szintes ingatlan a település üdülőövezetében, csendes, nyugodt, átmenő forgalomtól mentes környezetben helyezkedik el, 300 méterre a kiépített szabadstrandtól. A 135 m2-es ház lakótereit hangulatos, fedett, szakaszosan vagy akár teljes egészében nyitható, beüvegezett teraszok, fedett, nyitott terasz és erkély egészítik ki összesen 75 m2 területen. A hasznos alapterületet tovább növeli egy 38 m2-es, két állásos, fedett gépkocsibeálló. A jól megtervezett, praktikus kialakítású ingatlan fűtését internetről is irányítható gázkazán biztosítja padlófűtéssel és radiátor hőleadókkal. A minden évszakban megfelelő hőmérsékletet és kellemes klímát 44 cm-es hőszigetelt falak és további fali-, illetve tetőtéri szigetelés, valamint 3 rétegű, fa nyílászárók garantálják. Az ingatlan értékét növeli két kerti tároló, valamint további gépkocsi beállók, hajóállvány és kerti medence. A mediterrán stílusú ház udvara is gondosan tervezett, harmonikus. A lakóház kiválóan alkalmas nagyobb családok, akár két generáció együttélésére, de tökéletes választás lehet nyaralásra, valamint befektetési céllal részben vagy egészben kiadásra is. Az ár tartalmazza a teljes berendezést. Lokáció tekintetében egyedülálló, ritka lehetőség. Kiváló minőség számos egyedi részlettel, extrákkal: kamerák, riasztó, elektromos, illetve időjárásnak megfelelően önműködő redőnyök, LED világítás, teraszon előkészített nyári konyha, kandallónak előkészített kémény, automata öntözőrendszer stb.! Bővebb információért keressen telefonon!

Referencia szám: M308553

Családi ház részletei

Ár: 250 000 000 Ft
Méret: 188 négyzetméter
Azonosító: 11615017
Irodai azonosító: M308553-5209940
Telek: 578 négyzetméter
Ingatlan állapota: Kitűnő
Jelleg: családi ház
Építőanyag: Tégla
Fűtés jellege: Cirkó
Fűtés módja: Gáz
Komfort fokozat: Összkomfort
Kor: 11-20 éves
Szintek száma: Földszintes
Egész szobák: 5

Egyéb jellemzők

  • Garázs

Térkép


Így keressen családi házat négy egyszerű lépésben. Csupán 2 perc, kötelezettségek nélkül!

Szűkítse a családi házak
listáját
Válassza ki a megfelelő
családi házat
Írjon a hirdetőnek
Várjon a visszahívásra