Eladó családi ház Zalakaros 84 900 000 Ft

Leírás

Zalakaros csendes utcájában, pár percre a fürdőtől vált eladóvá ez a megközelítőleg 97%-ban befejezett családi ház. Az ingatlanban a tulajdonos már szinte majdnem mindent befejezett, már csak pár apróbb munkálat vár az új lakókra.
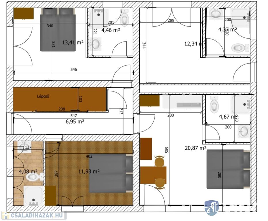
Belső lakrész helységei: 9 szoba, 7 fürdőszoba, 3 konyha közlekedő, lépcsőház.
A ház külső szigetelése valamit színezése is elkészült, így jó az energetikai besorolása és esztétikus a külső megjelenése is. Az erkélykorlátok rozsdamentes oszlopból és biztonsági üvegből készültek.
A tető új cserepeslemezes fedést kapott valamint teljesen új gépészet, új villamoshálózat, új burkolatok, beltéri ajtók kerültek beépítésre.
A belső lakrész hűtését valamint fűtést 7 db modern inverteres klíma biztosítja.
Közművek közül a gáz kivételével minden bevezetésre került. (Gázcsonk az udvarban megtalálható)
Két villanyóra is felszerelésre került három fázissal. (igény szerint H tarifás óra is igényelhető.)
A napelemes rendszer telepítéséhez, az előkészítés kivitelezése is megtörtént.
A ház egy saroktelken található melynek köszönhetően két külön bejárattal rendelkezi. Az udvaron terasz és egy új 12 m2-s zárható tároló található.
A ház biztonságára kamerarendszer ügyel.
A beépített bútorok a vételár részét képezik, a többi ingóság megbeszélés tárgya.
Ha Ön szeretne egy jó adottságokkal rendelkező családi házat, amit kisebb átalakítással akár két család is kényelemesen használhat, akkor ez az ingatlan kiváló választás lehet.
Iroda: Nagykanizsa Platán sor 7
(További kínálatunkat keresse a VING hivatalos weboldalán.)

Családi ház részletei

Ár: 84 900 000 Ft
Méret: 174 négyzetméter
Azonosító: 11393128
Irodai azonosító: 081717
Erkély mérete: 4.00 négyzetméter
Telek: 803 négyzetméter
Ingatlan állapota: Kitűnő
Jelleg: családi ház
Építőanyag: Tégla
Fűtés jellege: Villany
Egész szobák: 9

Egyéb jellemzők

  • Beépíthető tetőtér
  • Csatorna
  • Garázs
  • Melléképület
  • Pince
  • Terasz

Így keressen családi házat négy egyszerű lépésben. Csupán 2 perc, kötelezettségek nélkül!

Szűkítse a családi házak
listáját
Válassza ki a megfelelő
családi házat
Írjon a hirdetőnek
Várjon a visszahívásra