Eladó családi ház Zalaegerszeg 46 990 000 Ft

Leírás

Zalaegerszeg, Csácsi városrészében vált eladóvá, ez az 1977-ben, egy 2712m2-es telekre megépített családi ház. Az ingatlan beton alappal, 30-as tégla falazattal és pala tetőfedéssel rendelkezik.
A telken egy garázs, egy külön bejáratú igény szerint akár lakrésznek is hasznosítható épület és egy nagy fedett tároló is megtalálható. A házban felújítási munkálatokat a tulajdonosok nem végeztek, viszont nagyon jó belső elosztásának köszönhetően igényes modern belső tér alakítható ki.
A belső lakrész szinteltolt kivitelezéssel készült.
A ház melegét egyedi gáz, cirkó kazán, radiátorok segítségével szolgáltatja.
Közművek közül a víz, villany (3 fázis), gáz, szennyvíz rendelkezésre áll.
A nagy melléképület, akár vállalkozásra is tökéletes lehet.
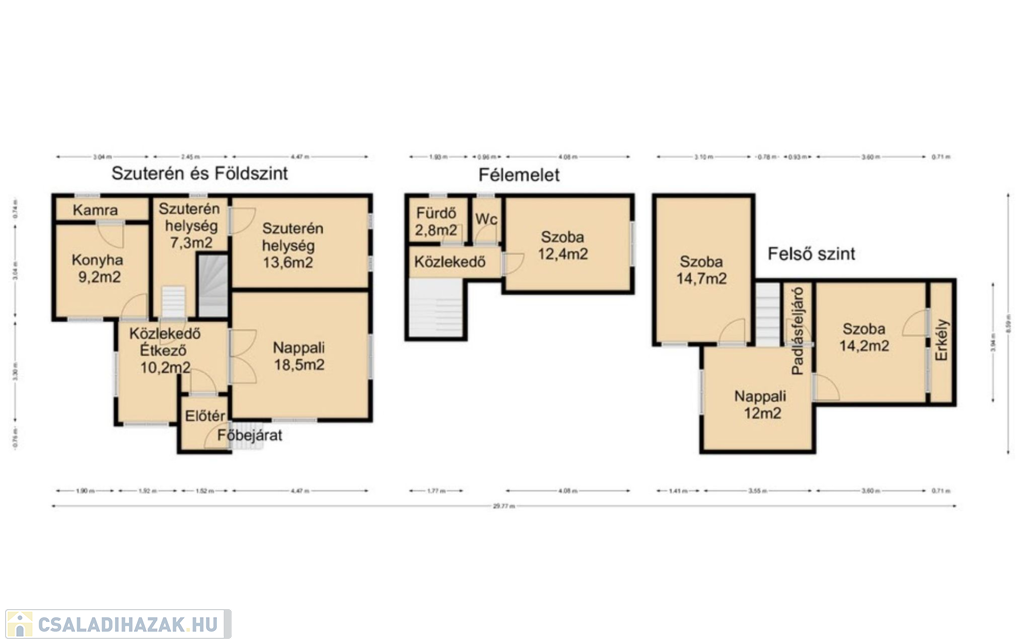
Belső lakrész helységei:
Földszint + szuterén: 2 tárolóhelység (szuterén szinten), egy nappali, előtér, közlekedő, étkezősarok, konyha kamrakapcsolattal,
Fél emelet: külön fürdő, külön mellékhelység, szoba,
Felső szint: 2 külön bejáratú szoba, nappali, padlásfeljáró.
Ha Ön szeretne egy jó elosztású családi házat, amit saját igényei szerint alakíthat, csendes nyugodt, zöld övezetben Zalaegerszegen, akkor ez az ingatlan kiváló választás lehet.
Kulcs az irodában. A hirdetési ár irányár.
(További képekért és információkért kérem hívjon!)

Családi ház részletei

Ár: 46 990 000 Ft
Méret: 135 négyzetméter
Azonosító: 11529935
Irodai azonosító: 463094
Erkély mérete: 4.00 négyzetméter
Telek: 2712 négyzetméter
Ingatlan állapota: Átlagos
Jelleg: családi ház
Építőanyag: Tégla
Fűtés jellege: Cirkó
Egész szobák: 5
Nappalik: 2

Egyéb jellemzők

  • Beépíthető tetőtér
  • Csatorna
  • Garázs
  • Melléképület
  • Pince
  • Terasz

Így keressen családi házat négy egyszerű lépésben. Csupán 2 perc, kötelezettségek nélkül!

Szűkítse a családi házak
listáját
Válassza ki a megfelelő
családi házat
Írjon a hirdetőnek
Várjon a visszahívásra