Eladó családi ház Zalaegerszeg 119 000 000 Ft

Leírás

Eladó PRÉMIUM CSALÁDI HÁZ ÚJ KIVITELEZŐTŐL!

❗ Zalaegerszeg, csácsi városrészében egy 150 m2-es, új építésű, korszerű kialakítású alacsony rezsivel rendelkező családi ház eladó! ❗

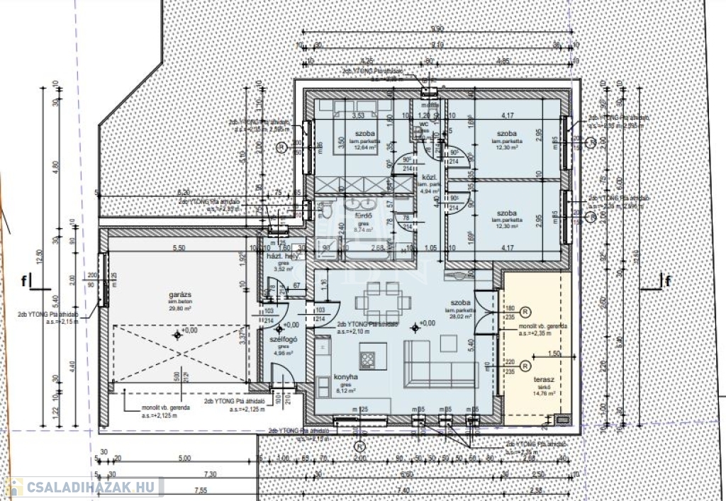
Az ingatlan helyiségei:
- amerikai konyhás nappali étkezővel
- 3 szoba
-fürdőszoba plusz WC
-WC
-előszoba
-közlekedő
-háztartási helység
-dupla garázs
-terasz

Műszaki információk:
- 30-as tégla falazat
- 15 cm-es szigetelés
- 3 rétegű műanyag nyílászárók redőnnyel ellátva
- hőszivattyús fűtésrendszer (padlófűtés)
- 1 db inverteres klíma
- választható hideg-meleg burkolatok

További jellemzők, extrák:
A vételár tartalmazza a tereprendezést, a kerítés kialakítását és a térkövezést egyaránt.
Délnyugati tájolásának megfelelően tágas terei napfényesek és világosak szinte egész nap.
Csendes, családi lakóövezet, egy szintes kialakítással.
CSOK és egyéb illetékkedvezmények egyaránt igénybe vehetők!

A hirdetésben szereplő képek látványtervek.

Amennyiben az ingatlan elnyerte tetszését és megtekintené, keressen bizalommal!
Irodánk ingyenes hiteltanácsadással és hitelügyintézéssel, kedvező díjszabású ügyvéddel és energetikai tanúsítvány elkészítésével várja az ügyfeleket.

Családi ház részletei

Ár: 119 000 000 Ft
Méret: 130 négyzetméter
Azonosító: 11221124
Irodai azonosító: 351238
Cím: Zalaegerszeg, Csács
Telek: 520 négyzetméter
Ingatlan állapota: Kitűnő
Jelleg: családi ház
Építőanyag: Tégla
Fűtés jellege: Geotermikus
Fűtés módja: Hőszivattyú
Komfort fokozat: Összkomfort
Kor: Új építésű
Szintek száma: Földszintes
Egész szobák: 4

Egyéb jellemzők

  • Csatorna
  • Garázs
  • Pince
  • Terasz

Térkép


Így keressen családi házat négy egyszerű lépésben. Csupán 2 perc, kötelezettségek nélkül!

Szűkítse a családi házak
listáját
Válassza ki a megfelelő
családi házat
Írjon a hirdetőnek
Várjon a visszahívásra