Eladó családi ház Zalaegerszeg 109 500 000 Ft

Leírás

Zalaegerszegen, egyedülálló lehetőség!
‼️ Az építkezés elindult – az alap már elkészült! Foglalja le most, és 2025 őszén már költözhet is új otthonába!

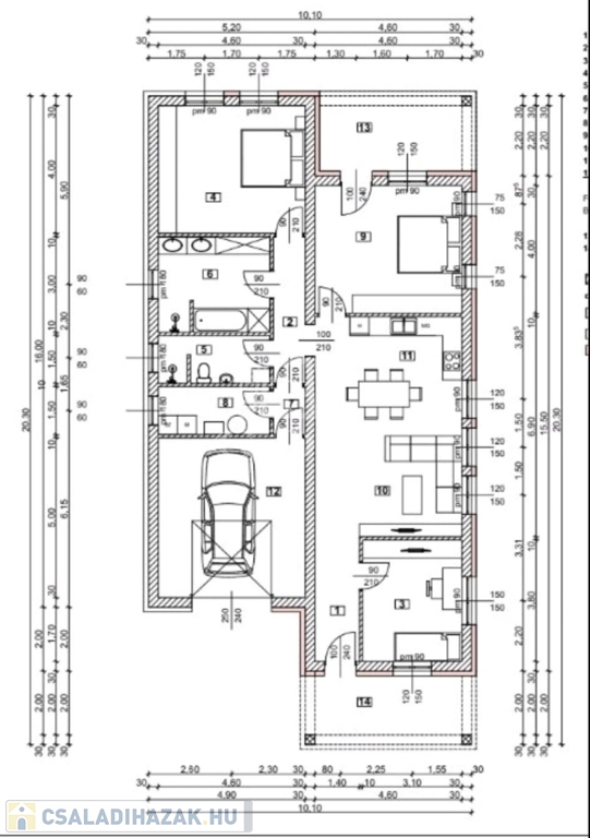
Eladásra kínáljuk ezt a modern, egyszintes, nappali + 3 hálószobás családi házat, amely a nyugati városrész egyik csendes zsákutcájában épül, gyönyörű panorámával a Zala-folyó kanyarulatára!

Kulcsrakész átadás – prémium kivitelben!

Főbb paraméterek:

Bruttó 143 m²-es lakótér + 23 m²-es garázs

1363 m²-es telek, tágas udvar

Panorámás, kertkapcsolatos terasz

3 külön nyíló hálószoba

2 fürdőszoba (zuhanyzós és kádas kivitelben)

Amerikai konyhás nappali

Mosókonyha / tároló


⚙️ Műszaki tartalom – energiahatékonyság a középpontban:

Hőszivattyús fűtés padlófűtéssel, H-tarifás mérővel

Modern villanybojler melegvíz-ellátáshoz

3 rétegű műanyag nyílászárók

15 cm szigetelés, cserép héjazat

Magas minőségű hideg-meleg burkolatok

Kamerarendszer kiépítve

Napelem előkészítés opcionálisan elérhető


Ajánljuk:

Befektetőknek, akik azonnal kiadható, alacsony fenntartású ingatlant keresnek Zalaegerszeg dinamikusan fejlődő részén

Családoknak, akik csendes, nyugodt környezetben, modern és kényelmes otthonra vágynak

Minőséget keresőknek, akik kompromisszummentes, hosszú távon értékálló házba fektetnének


Ne csak álmodozzon – lépjen most!
Jöjjön el, nézze meg a helyszínt, és szeressen bele ebbe a lenyűgöző otthonba!

Érdeklődjön bizalommal a megadott elérhetőségeken vagy látogasson el honlapunkra, ahol további képek és részletek várják!

Családi ház részletei

Ár: 109 500 000 Ft
Méret: 120 négyzetméter
Azonosító: 11458901
Irodai azonosító: 376902
Cím: ! Új építésű tégla családi ház !
Telek: 1363 négyzetméter
Ingatlan állapota: Átlagos
Jelleg: családi ház
Építőanyag: Tégla
Fűtés jellege: Geotermikus
Fűtés módja: Hőszivattyú
Komfort fokozat: Összkomfort
Kor: Új építésű
Szintek száma: Földszintes
Egész szobák: 4

Egyéb jellemzők

  • Csatorna
  • Garázs
  • Pince
  • Terasz

Térkép


Így keressen családi házat négy egyszerű lépésben. Csupán 2 perc, kötelezettségek nélkül!

Szűkítse a családi házak
listáját
Válassza ki a megfelelő
családi házat
Írjon a hirdetőnek
Várjon a visszahívásra