Eladó családi ház Vonyarcvashegy 325 000 000 Ft

Leírás


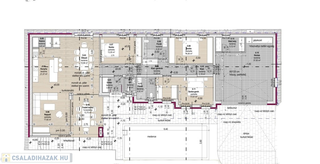
Emeleti elhelyezkedés: Földszinten Épület emeleteinek száma: 1 Állapota: átlagos Komfort besorolása: Luxus komfortos Építési éve: 2027 Alapterülete: 194 m2 Telekterülete: 1 m2 Szobák száma: 3szoba Közművek: Gáz, Víz, Villany, Csatorna Vízellátás: Vezetékes víz, Közelben Áramellátás: Telekhatáron, Közelben Homlokzat állapot: átlagos Építési mód: Tégla Napelem: Van Energetikai besorolás: Nincs adat

Extrák: Különnyíló szobák, Étkező, Energetikai tanúsítvány
Eladó luxus ingatlan panorámás balatoni kilátással!

Kivételes lehetőség a Balaton egyik legszebb pontján! Ez a modern, exkluzív otthon a luxus és a természet harmóniáját kínálja. A három tágas hálószoba, a nagy amerikai konyha-étkező és a világos nappali a kényelmet és a kifinomultságot ötvözi.

A fedett teraszról lenyűgöző panoráma tárul a Balatonra – tökéletes helyszín a reggeli kávéhoz, családi vacsorákhoz vagy baráti összejövetelekhez.

A házhoz tartozó impozáns garázs, elegáns kő- és faelemekkel díszített homlokzat, valamint gondosan megtervezett kert biztosítja a valódi luxus életérzést.

Kiemelt jellemzők:

3 hálószoba

Nagy amerikai konyha-étkező

Nappali és fedett terasz balatoni panorámával

Modern, minőségi anyagokból épülő luxus kivitelezés

Tágas garázs

Ez az otthon nem csupán ingatlan, hanem életstílus – azoknak, akik szeretik a minőséget és a nyugalmat.

⚠️ Az ingatlan jelenleg építés alatt áll. A feltüntetett képek látványtervek, az alaprajz tájékoztató jellegű, a vevő igényei szerint módosítható.

Kérdés esetén keressen bizalommal!
+36 20 441 5668
nekuti.natalia@kingcity.hu

Családi ház részletei

Ár: 325 000 000 Ft
Méret: 194 négyzetméter
Azonosító: 11615489
Cím: Horváth Imre
Telek: 1 négyzetméter
Ingatlan állapota: Átlagos
Jelleg: családi ház
Építőanyag: Tégla
Komfort fokozat: Luxus komfort
Kor: 1-5 éves
Szintek száma: Földszintes
Egész szobák: 3

Egyéb jellemzők

  • Csatorna

Térkép


Így keressen családi házat négy egyszerű lépésben. Csupán 2 perc, kötelezettségek nélkül!

Szűkítse a családi házak
listáját
Válassza ki a megfelelő
családi házat
Írjon a hirdetőnek
Várjon a visszahívásra