Eladó családi ház Veszprém 80 000 000 Ft

Leírás

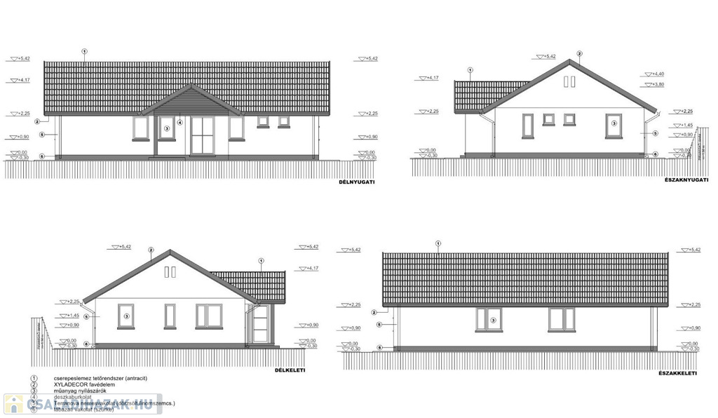
Új építésű családi ház generál kivitelezése Veszprém és 25 km-es vonzáskörzetében

- az ár a családi ház kivitelezését foglalja magába, az építési telket nem

- az építményhez legalább 500 m2 telek ajánlott

- tervezés és ár a kivitelezővel való megegyezés szerint  

- energetikei besorolása : BB 

- falazat: 30-as blokktégla

- szigetelés: 30cm mennyezetben, 20cm oldalfalon, 10 cm padlóban 
- fűtés: elektromos kazán (9kW) és napelem, vagy levegő-víz hőszivattyús fűtési rendszer, igény esetén hűtő-fűtő rendszer
- napelem: 7,65kW mely éves betermelés a hálózatra 7500-9500kW 37Ft/kW-al számolva 300.000-380.000Ft

- hő visszanyerős szellőztető rendszer
- nyílászáró: 3 réteg üveggel, hőáteresztés: 0,6 W/m2 K
- az épület hővesztesége: 4,5kw

- a fal hőáteresztési tényezője: 0,14 W/m2 K

- rezsi kb. 5000 Ft/hó/fő (víz,villany,fűtés,hűtés)

- változtatni a kivitelezővel való megegyezés után lehetséges

- építési határidő: egyeztetés a generál kivitelezővel

- CSOK igénybe vehető

Amennyiben felkeltettem az érdeklődését kérem hívjon! 06 30 140 3328

Dream-Ing, Álomból Otthont!

Családi ház részletei

Ár: 80 000 000 Ft
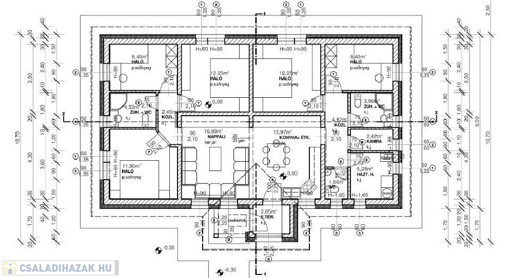
Méret: 112 négyzetméter
Azonosító: 11591628
Irodai azonosító: 284427
Ingatlan állapota: Kitűnő
Jelleg: családi ház
Építőanyag: Kérdezzen rá a hirdetőtől »
Komfort fokozat: Összkomfort
Kor: Új építésű
Egész szobák: 3
Fél szobák: 3

Így keressen családi házat négy egyszerű lépésben. Csupán 2 perc, kötelezettségek nélkül!

Szűkítse a családi házak
listáját
Válassza ki a megfelelő
családi házat
Írjon a hirdetőnek
Várjon a visszahívásra