Eladó családi ház Veszprém 189 900 000 Ft

Leírás

Veszprémben, kedvelt kertvárosias környezetben, csendes utcában, új és újszerű családi házak szomszédságában, modern, mai kor luxuskövetelményeinek megfelelően, saját kertrésszel, garázzsal és kocsibeállóval, két szintes, minőségi ikerház (B épületrész) eladó.

A két ikerházrész összesen 700 m2-es telken helyezkedik el, a B ikerházrészhez is használati megosztással saját használatú parkosított kertrésszel fog rendelkezni. 2024-ben 50 cm vtg. Porotherm Thermo Rapid téglából épült, a belső válaszfalak 25 cm vtg. hanggátló Porotherm 25AKU Z. téglából. A tetőtér 15 + 10 cm Rockwool Airrock hőszigetelésre került, a tető héjazata Prefalz bevonatos alumínium lemez, kettős állókarcos kivitelben. A nyílászárók háromrétegű műanyag ablakok, elektromos zsalúzia árnyékoló rendszerrel felszereltek.

Fűtését és hűtését hőszivattyús rendszer látja el, padlófűtés és mennyezet hűtés. Az ingatlan hűtése és fűtése külön-külön helyiségenként szabályozható. A villany 3x25A + Htarifa. Egy vízlágyító berendezés is beszerelésre került. Az udvaron automata öntözőrendszer található vízgyűjtő tartállyal ellátva.

Az ingatlan burkolatai prémium minőségű hideg és meleg burkolatok magas kopás és vízállósággal.

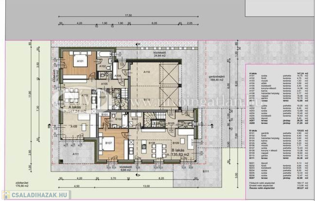
Az ingatlant tágas, világos terek jellemzik. A földszinten található egy nagy amerikai konyhás nappali-étkező rész, és praktikusan egy hálószobába gardróbbal és egy saját fürdőszobába is van ezen a szinten. Exkluzív gépesített konyha beépítésre került. A földszinten helyett kapott egy vendég WC kézmosóval illetve a gépészeti, mosókonyha/háztartási helyiség is. A nappaliból illetve a hálószobából egy 24,36 m2-es burkolt teraszra illetve a saját kertrészre lépünk ki. Az épület előtt egy saját felszíni parkoló és egy 18,15 m2-es elektromos Hörmann garázskapuval ellátott garázs is helyet kapott. Az ingatlant egy térkövezett útról tudjuk megközelíteni.
Az emeleten három szoba és egy fürdőszoba került kialakításra illetve egy 42,60 m2-es jól hasznosítható terasz is.
Az ingatlan nettó alapterülete: 135,83 m2.

Az ingatlan kialakítását, műszaki tartalmát figyelembe véve egy jól élhető, kényelmes otthon.


Az ingatlan megtekintése irodánkkal előre egyeztetett időpontban történik. Szívesen állunk rendelkezésre!

Keresünk és kínálunk eladó és bérbeadó ingatlanokat, albérleteket Veszprém, Balaton, Bakony, Káli-medence régióban.
Ügyeleti telefonszámunk: .
A Nívó Ingatlanforgalmi Szakértői Iroda teljes eladó és bérbeadó ingatlan és albérlet kínálatát megtekintheti a oldalunkon.

Irodai azonosító kód: N4739 Nívó ingatlan: N4739

Családi ház részletei

Ár: 189 900 000 Ft
Méret: 135 négyzetméter
Azonosító: 11455611
Cím: 8200 Veszprém, Kőbánya utca 2.
Telek: 700 négyzetméter
Ingatlan állapota: Átlagos
Jelleg: ikerház
Építőanyag: Kérdezzen rá a hirdetőtől »
Fűtés jellege: Egyéb
Kor: 1-5 éves
Szintek száma: 2 szint
Egész szobák: 4
Fél szobák: 1

Egyéb jellemzők

  • Kábel TV

Így keressen családi házat négy egyszerű lépésben. Csupán 2 perc, kötelezettségek nélkül!

Szűkítse a családi házak
listáját
Válassza ki a megfelelő
családi házat
Írjon a hirdetőnek
Várjon a visszahívásra