Eladó családi ház Veszprém 189 000 000 Ft

Leírás

Igazán igényes építésű és kialakítású ikerházrész keresi tulajdonosát!
Az ingatlan legfőbb jellemzői a praktikus elrendezés, és a minőségi anyagok! Újépítésű családiházas övezetben található, rendezett utcában. A házrész saját térkövezett útról közelíthető meg, míg az udvar parkosítása tavasszal történik. Az udvaron automata öntözőrendszer került kiépítésre vízgyűjtő tartállyal ellátva. Parkolási lehetőség, akár az utcában is megoldható, de az udvarban jelenleg is kapott helyet egy felszíni parkoló, valamint egy 18 nm-es garázs is, elektromos Hörmann garázskapuval ellátva. A ház külső falazata 50 cm vtg. Porotherm Thermo Rapid tégla, belső falazat 25 cm vtg. hanggátló tégla Porotherm 25AKU Z. A tetőre 15+10 cm ROCKWOOL AIRROCK hőszigeteslés került, héjazata Prefalz bevonatos alumínium lemez kettős állókorcos kivitelben. Hőszivattyús rendszer került beépítésre, mely padlófűtésként fűt, mennyezetről pedig hűt, helyiségenként állítható. A villany 3x25A +Htarifa. Nyílászárók 3rétegű műanyagok, ablakok elektromos zsalúzia árnyékolóval felszereltek. A mindennapok vízhasználatát védi és megkönnyíti egy vízlágyító berendezés is. Az ingatlan padlóburkolatai prémium minőségű hideg és melegburkolatok extra magas kopás és vízállósággal.

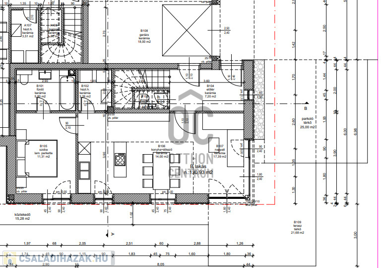
A lakásba belépve egy tágas előszobába érünk, ahol helyet kapiott egy WC-kézmosóval, a rendkívül világos, ablakos amerikai konyhás nappaliból léphetünk be, ahol a gépészet is található. A konyhabútor - mely jelenleg még nem került beépítésre - ugyancsak a vételár részét képzi. A ház kertjébe, teraszára a nappali-étkező-konyha helyiségekből is ki lehet lépni, valamint az innen nyíló hálószobából is. Az emeletre érve 3 kényelmes méretű szobát találunk, egy fürdőszoba, valamint egy 35 nm-es teraszt is találunk.

Ez az ingatlan a mai kor luxuskövetelményeinek, és a vonatkozó jogszabályokban meghatározott előírásoknak teljes mértékben megfelel, amelyet az alaprajz és a műszaki tartalom is visszatükröz az új tulajdonos elvárásainak megfelelően.

Bővebb információkért és megtekintésért, keressen bizalommal!

Családi ház részletei

Ár: 189 000 000 Ft
Méret: 158 négyzetméter
Azonosító: 11446915
Telek: 260 négyzetméter
Ingatlan állapota: Átlagos
Jelleg: ikerház
Építőanyag: Kérdezzen rá a hirdetőtől »
Egész szobák: 5

Egyéb jellemzők

  • Csatorna
  • Garázs
  • Kábel TV
  • Melléképület
  • Parketta
  • Pince
  • Terasz

Így keressen családi házat négy egyszerű lépésben. Csupán 2 perc, kötelezettségek nélkül!

Szűkítse a családi házak
listáját
Válassza ki a megfelelő
családi házat
Írjon a hirdetőnek
Várjon a visszahívásra