Eladó családi ház Veszprém 179 000 000 Ft

Leírás

Veszprém legjobb környékén - ELADÓ VESZPRÉMI IKERHÁZ

A VESZPRÉMI CASANETWORK IRODA eladásra kínálja a kiváló adottságokkal rendelkező 2340-s számú VESZPRÉMI IKERHÁZAT.

A  VESZPRÉMI IKERHÁZ jellemzői:

- könnyű megközelítés, nagyszerű elhelyezkedés

- igényes környezet és szomszédság

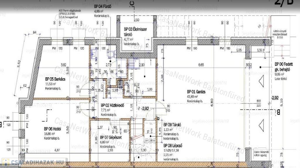
- modern elrendezéssel és felszereltséggel

- a nagyméretű garázsban két autó is kényelmesen elfér

- a belső burkolatoknál odafigyeltek a legjobb minőségű anyagok használatára, és az igényes kivitelezésre

- hőszivattyús fűtéssel lett az épület felszerelve

- a tetőtér előkészítve beépítésre, egy fürdő, két szoba és egy gardrób számára

- a ház 15 centis szigetelést kapott, így kiemelkedően jó hőszigeteléssel rendelkezik

- tökéletes választás mindenkinek, aki igényes környezetben, igényes környéken szeretne élni családjával

Amennyiben a VESZPRÉMI CASANETWORK IRODA által kínált 2340-es számú VESZPRÉMI IKERHÁZ felkeltette érdeklődését, kérem, hívjon a megadott telefonszámon.

Irodánk az ingatlan vásárlással összefüggő teljes körű ügyvédi, ill. díjmentes, banksemleges hitel-ügyintézéssel áll rendelkezésére.

CasaNetwork - A civilizált ingatlanértékesítés artériája


Családi ház részletei

Ár: 179 000 000 Ft
Méret: 209 négyzetméter
Azonosító: 11444066
Irodai azonosító: 156202340
Telek: 650 négyzetméter
Ingatlan állapota: Átlagos
Jelleg: ikerház
Építőanyag: Tégla
Komfort fokozat: Összkomfort
Egész szobák: 5
Fél szobák: 1

Így keressen családi házat négy egyszerű lépésben. Csupán 2 perc, kötelezettségek nélkül!

Szűkítse a családi házak
listáját
Válassza ki a megfelelő
családi házat
Írjon a hirdetőnek
Várjon a visszahívásra