Eladó családi ház Veszprém 140 000 000 Ft

Leírás

Veszprémben, családi házas övezetben eladó egy új építésű ikerházrész, melynek főbb paraméterei:

- 30-as Porotherm tégla falazat, belső válaszfalak Ytong
- cserép héjazat
- 3 rétegű hő-és hangszigetelt Rehau nyílászárók
- hőszivattyús fűtőrendszer (mely hűt és fűt is)_padlóban ill. a mennyezetben elvezetve.
- 3x25 A és H tarifa kialakításra került
- D-Ny-i tájolású
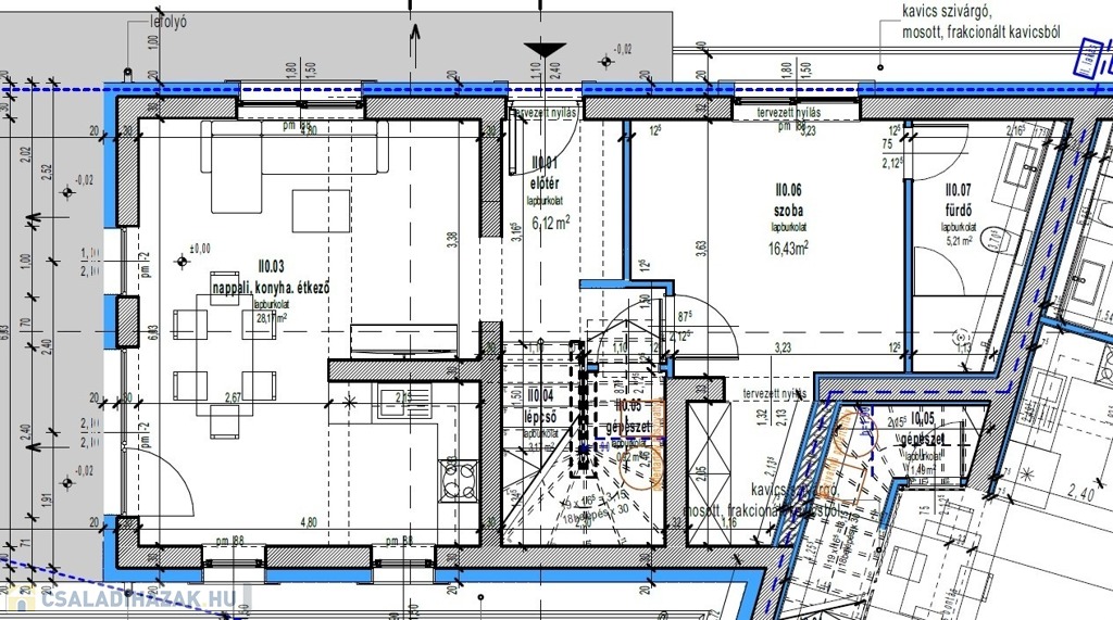
- lakótér 110nm: az épület földszintjén amerikai konyhás nappali-étkező, fürdőszoba és egy hálószoba található. A felső szinten két hálószoba és egy fürdőszoba kerül kialakításra.
- a lakáshoz egy 14m2-es terasz,
- egy udvari beálló és
- kb. 269m2-es saját kert tartozik.
- átadási időpont: 2026 június vége.

Iá: 140 mFt
Az ár kulcsrakész állapotra vonatkozik.

További felmerülő kérdéseivel forduljon hozzám bizalommal!
Érd: 20 406-8593
Dream-ing ingatlan

Családi ház részletei

Ár: 140 000 000 Ft
Méret: 110 négyzetméter
Azonosító: 11596847
Irodai azonosító: 348782
Telek: 269 négyzetméter
Ingatlan állapota: Kitűnő
Jelleg: ikerház
Építőanyag: Tégla
Komfort fokozat: Dupla komfort
Kor: Új építésű
Egész szobák: 2
Fél szobák: 2

Egyéb jellemzők

  • Terasz

Így keressen családi házat négy egyszerű lépésben. Csupán 2 perc, kötelezettségek nélkül!

Szűkítse a családi házak
listáját
Válassza ki a megfelelő
családi házat
Írjon a hirdetőnek
Várjon a visszahívásra