Eladó családi ház Veszprém 139 000 000 Ft

Leírás

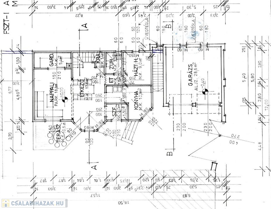
Veszprém belvárosában közel mindenhez, mégis csendes utcában, eladó egy felújított családiház, melynek főbb paraméterei:

- 256 nm-es telken található
- könnyűszerkezetes épület
- 140 nm lakótér két szinten oszlik meg:
Fsz.: nappali gardróbbal, étkező, konyha, háló, fürdőszoba zuhanyzóval, WC-vel,
Em.: 4 szoba, fürdőszoba sarokkáddal, külön WC
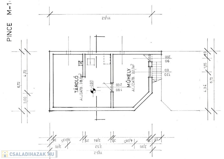
- az egész épület alatt, egyterű pince található (70nm)
- udvaron kétállásos garázs (36nm)
- kert részben füvesített, részben térkövezett.
- 2003-ban kapta meg használatba vételi engedélyét,
- 2025-ben a felújítáok során érte el jelenlegi állapotát (tetőtér beépítésre került, új burkolatot és világító testeket kapott minden szoba, új szaniterek, külső szigetelés és vakolás a házon)

Az ingatlan ideális lehet nagycsaládosoknak, vagy akár vállalkozás számára is, hiszen a tágas pince és a dupla garázs számos lehetőséget kínál!

Iá.: 139 mFt

Amennyiben a hirdetés felkeltette érdeklődését, további felmerülő kérdéseivel forduljon hozzám bizalommal!

Érd: 06 20 406 8593
Dream-ing - Álomból Otthont!

Családi ház részletei

Ár: 139 000 000 Ft
Méret: 140 négyzetméter
Azonosító: 11561760
Irodai azonosító: 341317
Telek: 256 négyzetméter
Ingatlan állapota: Felújított
Jelleg: családi ház
Építőanyag: Könnyűszerkezetes
Fűtés jellege: Cirkó
Fűtés módja: Gáz
Komfort fokozat: Dupla komfort
Egész szobák: 6

Egyéb jellemzők

  • Garázs
  • Terasz

Így keressen családi házat négy egyszerű lépésben. Csupán 2 perc, kötelezettségek nélkül!

Szűkítse a családi házak
listáját
Válassza ki a megfelelő
családi házat
Írjon a hirdetőnek
Várjon a visszahívásra