Eladó családi ház Verőce 53 000 000 Ft

Leírás


C I T Y C A R T E L

INTERNATIONAL LUXURY REAL ESTATE AGENCY

bemutatja: 

 

 

Kivételes lehetőség Verőce szívében

 

Verőce központjához közel, mégis csendes, zöldövezeti környezetben, eladó két, Borbélyhegyre panorámás szomszédos telek felújítandó, de inkább bontandó házakkal.

 

Mindkét telken található egy, az 1800-as évek végén épült kb. 110 nm + tárolók + terasz méretű, vegyes falazatú, téglából, magyalmai kőből és vályogból álló ház.

 

Az ingatlanok külön-külön vagy egyben is megvásárolhatók, ideális választás lehet azok számára, akik saját elképzeléseik szerint szeretnének új otthont építeni.

 

Telek adatok:

Telek 1: 995 nm

Telek 2: 996 nm

Övezet jele: Lf-K1 (kialakult, falusias lakóterület)

Beépítési mód: zártsorú vagy oldalhatáros

Beépíthetőség: 30%

Beépíthető terület:

Telkenként és szintenként: 298 nm 

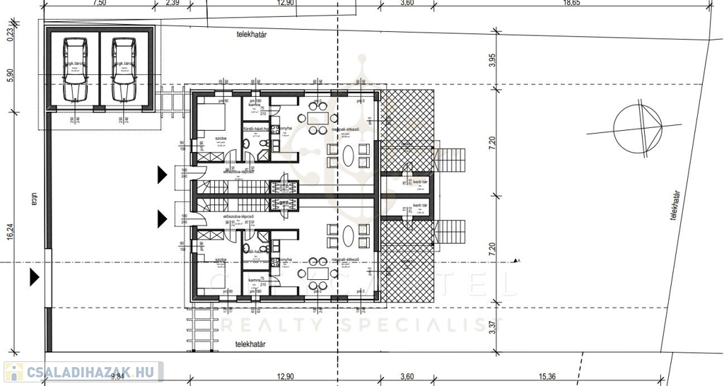
Zártsorú beépítés esetén a 2 telken 4 egyforma sorház-egység létesíthető

Épületmagasság: 4,7 m (pince +) földszint + emelt térdfalas tetőtér

 

Építhető ingatlanok:

Telkenként egy-egy kétlakásos lakóépület (a 2 telken összesen 4 lakás)

Kereskedelmi, szolgáltató, vendéglátó épület

4 vendégszobás kereskedelmi szálláshely (a 2 telken összesen 8 vendégszoba)

Kézműipari építmény

Közösségi, kulturális épület

 

Panoráma és természeti környezet:

Az ingatlan zöldre panorámás, lenyűgöző kilátással rendelkezik a környező természetre, ami ideális helyszínt biztosít pihenésre és rekreációra.

A telket körülölelő fák és növényzet nyugodt, természet közeli életérzést biztosítanak.

 

Elhelyezkedés:

Közelség a központhoz: Az ingatlan Verőce központjához közel található, ami biztosítja a kényelmes hozzáférést a helyi szolgáltatásokhoz és infrastruktúrához.

Közlekedés: Verőce vasútállomása mindössze néhány perces sétára található, ahonnan könnyen elérhető Budapest is. Az ingatlan könnyen megközelíthető autóval is, a főbb közlekedési útvonalak közelében helyezkedik el.

Duna közelsége: Az ingatlan közelében található a Duna, amely számos szabadidős tevékenységre is lehetőséget ad, mint például séták, kerékpározás és vízi sportok.

Szolgáltatások:

A közelben találhatóak boltok, éttermek, kávézók, orvosi rendelők és iskolák, amelyek mind kényelmesen elérhetőek.

 

Közművek:

A telek teljes közművesítéssel (víz, villany, csatorna, gáz) ellátott.

Ideális azoknak, akik egy nyugodt, zöldövezeti környezetben szeretnének új otthont vagy befektetési lehetőséget találni, miközben élvezhetik a Duna közelségét és a település kényelmét.

 

A telek kiváló adottságainak köszönhetően egy kétlakásos ház építhető rá, amelyhez már elkészült egy tanulmányterv is. A terv úgy lett kialakítva, hogy a szomszédos, hasonló méretű telekre is alkalmazható, így amennyiben a vevő a melletti telket is megvásárolja, akár 4 lakás is építhető.

Egy telek megvásárlásával: 2 lakás

Két telek megvásárlásával: 4 lakás

Ez a lehetőség ideális lehet befektetők, építkezni vágyók, vagy összeköltöző családok számára is.

 

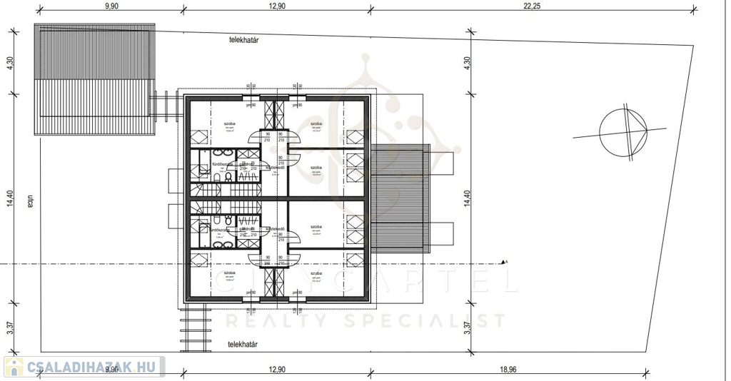
Lakás elrendezése – két szinten:

Földszint:

Amerikai konyhás nappali-étkező

1 hálószoba

Kamra

Fürdőszoba és háztartási helyiség

Előszoba, lépcsőház

Emelet:

3 hálószoba

Közlekedő

Gardrób

Fürdőszoba

A tervezett lakások modern kialakításúak, jól átgondolt elrendezéssel, és hosszú távon is értékálló megoldást kínálnak mind lakhatási, mind befektetési célra Verőce kedvelt részén.

 

Ára: telkenként : 53 millió Ft

 

Amennyiben a hirdetés felkeltette érdeklődését, keressen bizalommal.

 

 

ÜDVÖZLETTEL:

DR VINCELLÉR ZSUZSA

ÜGYVEZETŐ, CEO, LUXURY SPECIALIST

+36 30-815-2510

V.ZSUZSA@CITYCARTEL.HU

 

CITY CARTEL BUDA KFT.

CITY CARTEL FRANCHISE HUNGARY KFT.

1118 BUDAPEST, HEGYALJA ÚT 54.

1026 BUDAPEST, SZILÁGYI ERZSÉBET FASOR 121.

BUDAGYÖNGYE BEVÁSÁRLÓKÖZPONT

 

*A FIX 3%-os lakáshitel részét képező támogatásokat Magyarország Kormánya nyújtja.

Családi ház részletei

Ár: 53 000 000 Ft
Méret: 110 négyzetméter
Azonosító: 11512616
Irodai azonosító: 10825164
Telek: 995 négyzetméter
Ingatlan állapota: Felújítandó
Jelleg: családi ház
Építőanyag: Kérdezzen rá a hirdetőtől »

Így keressen családi házat négy egyszerű lépésben. Csupán 2 perc, kötelezettségek nélkül!

Szűkítse a családi házak
listáját
Válassza ki a megfelelő
családi házat
Írjon a hirdetőnek
Várjon a visszahívásra