Eladó családi ház Veresegyház 299 000 000 Ft

Leírás

Eladó igényes családi ház Veresegyházon, a Salamon utcában!

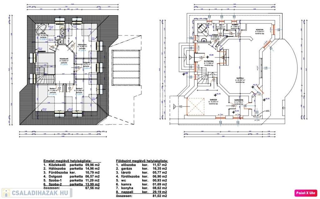
Ez a belső 2 szintes, 200 m²-es, 5 szobás ingatlan a minőség, a kényelem és az energiahatékonyság tökéletes kombinációja. 40 cm-es téglafal, 10 cm-es homlokzati szigetelés és 20 cm-es födémszigetelés biztosítja a kiemelkedő hőmegtartást és az alacsony fenntartási költségeket, így az otthon mindenben megfelel a mai kor igényeinek.

Főbb jellemzők:

- Kondenzációs kazán és inverteres klíma a korszerű fűtéshez és hűtéshez.
- Kandalló a nappali központjában, amely otthonos, elegáns hangulatot teremt.
- Tágas télikert elektromos zsaluziával és árnyékolással – egész évben élvezhető élettér.
- Fúrt kút és automata öntözőrendszer a mindig gondozott kertért.
- Szauna a teljes kikapcsolódásért.
- Privát, intim kert, amely teljes nyugalmat és diszkréciót biztosít.

Lokáció:

A Salamon utca Veresegyház egyik legkedveltebb, csendes családi házas övezete, jó infrastruktúrával: iskola, óvoda, bevásárlási lehetőségek és közlekedési kapcsolatok könnyen elérhetők.

- Mézesvölgyi Általános Iskola
- Fabríczius József Általános Iskola
- Veresegyházi Katolikus Gimnázium
- Veresegyházi Életfa Waldorf Iskola
- KalandVár Óvoda és Családi Bölcsőde
- Árnyas Óvoda
- Veresegyházi Medveotthon 10 perc séta, akárcsak Lidl, SPAR, Penny Market.

Ez az ingatlan ideális választás igényes családoknak, akik modern, energiatakarékos otthont keresnek, ahol a prémium kényelmi megoldások és a meghitt, privát környezet egyaránt jelen vannak.

Amennyiben hirdetésem felkeltette érdeklődését, várom hívását a hét bármely napján! tp

Családi ház részletei

Ár: 299 000 000 Ft
Méret: 200 négyzetméter
Azonosító: 11559998
Irodai azonosító: 386528
Cím: Salamon király utca
Telek: 918 négyzetméter
Ingatlan állapota: Kitűnő
Jelleg: családi ház
Építőanyag: Tégla
Fűtés jellege: Cirkó
Fűtés módja: Gáz
Komfort fokozat: Dupla komfort
Kor: 6-10 éves
Szintek száma: 2 szint
Egész szobák: 5

Egyéb jellemzők

  • Csatorna
  • Garázs
  • Pince
  • Terasz

Térkép


Így keressen családi házat négy egyszerű lépésben. Csupán 2 perc, kötelezettségek nélkül!

Szűkítse a családi házak
listáját
Válassza ki a megfelelő
családi házat
Írjon a hirdetőnek
Várjon a visszahívásra