Eladó családi ház Veresegyház 159 800 000 Ft

Leírás

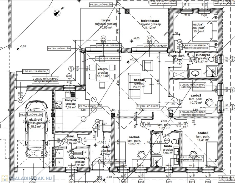
Eladásra kínálok Veresegyház,Ligetekben egy 2020-as családi házat csodálatos kerttel.
A ház Amerikai konyhás nappalijàt, 4 hàlószoba egèszíti ki.
A ház főbb extrái :
1. Karbantartásmentes Nívó kerítés motoros kapuval – telefonról vagy távirányítóval is vezérelhető.
2. Hikvision videókaputelefon
3. Térkőves kocsibeálló 3-4 autó számára, leválasztva kisállatok miatt.
4. Központra bekötött riasztó- és kamerarendszer 30 napos tárolással.
5. Tágas előszoba, extra tárolóhellyel.
6. Fa, 3 rétegű nyílászárók; hangszigetelt beltéri ajtók.
7.Amerikai konyhás nappali étkezővel, 3 m belmagassággal mindenhol.
8. AEG gépek, Whirlpool beépített hűtő.
9. Wi-Fi-s klíma.
10. Hangulatvilágítás a nappaliban az álmennyezetbe rejtve.
11. Minden nyílászárón alumínium redőny és szúnyogháló, motorizált vezérléssel.
12. Központi porszívó rendszer
13. mosókonyha, külön WC-vel
14. Padlófűtés, szabályzó termosztátoknak minden helyiségben előkészítés megvan
15.automatizált, motorizált napellenző
16. 13 m² kerti tároló
17. 120 m²-es műfüves focipálya
18. Automatizált Hunter öntöző rendszer.
Szomszèdok kedvesek, kultúràltak!
Gyalogosan iskola, óvoda elèrhető!
Hívjon bizalommal!

Családi ház részletei

Ár: 159 800 000 Ft
Méret: 125 négyzetméter
Azonosító: 11586031
Irodai azonosító: 388584
Cím: Fészekrakó utca
Telek: 750 négyzetméter
Ingatlan állapota: Kitűnő
Jelleg: családi ház
Építőanyag: Tégla
Fűtés jellege: Cirkó
Fűtés módja: Gáz
Komfort fokozat: Dupla komfort
Kor: 1-5 éves
Szintek száma: Földszintes
Egész szobák: 5

Egyéb jellemzők

  • Csatorna
  • Garázs
  • Pince
  • Terasz

Térkép


Így keressen családi házat négy egyszerű lépésben. Csupán 2 perc, kötelezettségek nélkül!

Szűkítse a családi házak
listáját
Válassza ki a megfelelő
családi házat
Írjon a hirdetőnek
Várjon a visszahívásra