Eladó családi ház Veresegyház 158 800 000 Ft

Leírás

Eladásra kínáljuk egy új építésű projetben, 960 nm-es telken épülő ikerház mindkét felét Veresegyház kertvárosi részén, a Harmatok városrészben, gyönyörű természeti környezetben, aszfaltozott utcában.

Jelen ikerház fél nettó 145 nm hasznos alapterületű két szintes épület + 20 nm-es fedett garázs, valamint 20 nm-es terasz és fedett belépő.

Az ingatlan 5 szobával rendelkezik és majd' 500 nm-es telekrész tartozik hozzá.

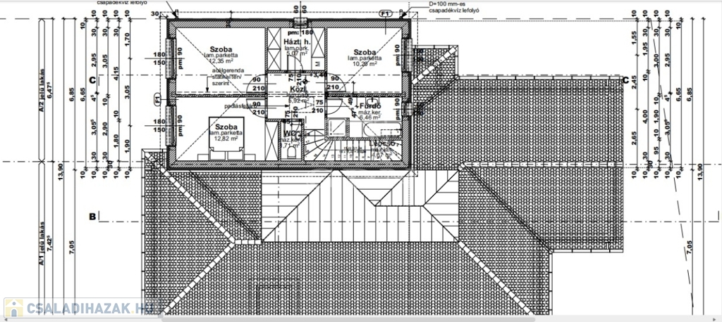
HELYISÉGEK:
Földszint
Nappali: 19,5 nm
Étkező-konyha: 18,5 nm
Szoba1: 10 nm
Előtér: 8,6 nm
Kamra : 2,2 nm
Fürdő1: 3, 5 nm
Lépcsőház: 2,4 nm
+1,8 nm fedett belépő+19 nm terasz+20 nm garázs
Emelet
Szoba2: 12,4 nm
Szoba3: 10,3 nm
Szoba4: 12,8 nm
Hátartási helyiség: 5 nm
Fürdő2: 6,5 nm
WC: 1,7 nm
Közlekedő: 5,9 nm
Lépcsőház: 4,7 nm

Nappali+ 4 hálószoba, dupla komfort!

MŰSZAKI TARTALOM:

Az épület PTH 30-as falazóelemből, 12cm-es aljzatszigeteléssel, 10cm-es grafitos EPS homlokzati és 25cm-es födém hőszigeteléssel, beton födémmel, Bramac betoncserép fedéssel épül. Korszerű 5-légkamrás műanyag nyílászárók kerülnek beépítésre 3 rétegű üvegezéssel, elektromos redőny előkészítéssel.

A fűtést, hűtést és meleg víz ellátást a legkorszerűbb hőszivattyús rendszer működteti beépített puffertartállyal kiegészítve, padlófűtéses hőleadással, H-tarifás villanyórával. Napelem és riasztó rendszer előkészítést valamint minden szobában klíma kiállást tartalmazza az ár.

KÖRNYEZET:

Veresegyház egyik legszebb városrészében, kertvárosi környezetben épül az ingatlan.
Ajánlom mindenkinek, akik nyugodt, zöldövezeti környezetben szeretnének élni.
Veresegyház rendekezik minden olyan infrastruktúrával, amely a mindennapi élethez elengedhetetlen: iskolák, óvodák, bevásárlási lehetőségek széles választéka, sportcentrumok, színház, egészségügyi központ.
Helyi és kistérségi buszok könnyítik a közlekedést.
Budapest mind tömegközlekedéssel, mind autóval 20-45 perc alatt elérhető.

A beruházó több évtizedes tapasztalattal rendelkező, tőke erős cég, referenciáik a környéken igény esetén megtekinthetőek.

Tervezett átadás. 2026.III. negyedévben.

Ugyanitt az ikerház másik fele is eladó, amely 1 szintes, 4 szobás épület, hasonló műszaki tartalommal, amelynek az irányára: 145 800 000 Ft

Az ingatlanok 10% -al leköthetők!

TÁMOGATOTT ÉS PIACI HITELEKBEN KOLLÉGÁINK OTTHON VANNAK.

EBBEN IS ÁLLUNK VEVŐINK RENDELKEZÉSÉRE.

Várom megtisztelő hívását.

ID:392756

Családi ház részletei

Ár: 158 800 000 Ft
Méret: 145 négyzetméter
Azonosító: 11601361
Irodai azonosító: 392756
Cím: Zsellérföldi út
Telek: 480 négyzetméter
Ingatlan állapota: Épülő
Jelleg: ikerház
Építőanyag: Tégla
Fűtés jellege: Geotermikus
Fűtés módja: Hőszivattyú
Komfort fokozat: Dupla komfort
Kor: Új építésű
Szintek száma: 1 szint
Egész szobák: 5

Egyéb jellemzők

  • Csatorna
  • Garázs
  • Pince
  • Terasz

Térkép


Így keressen családi házat négy egyszerű lépésben. Csupán 2 perc, kötelezettségek nélkül!

Szűkítse a családi házak
listáját
Válassza ki a megfelelő
családi házat
Írjon a hirdetőnek
Várjon a visszahívásra