Eladó családi ház Veresegyház 158 000 000 Ft

Leírás

VERESEGYHÁZ, HEGYEK VÁROSRÉSZ KERTVÁROSI RÉSZÉN, ÚJ ÉPÍTÉSŰ, TELJESEN ELSZEPARÁLT, GARÁZZSAL ELVÁLASZOTT CSALÁDI HÁZ ELADÓ!!!

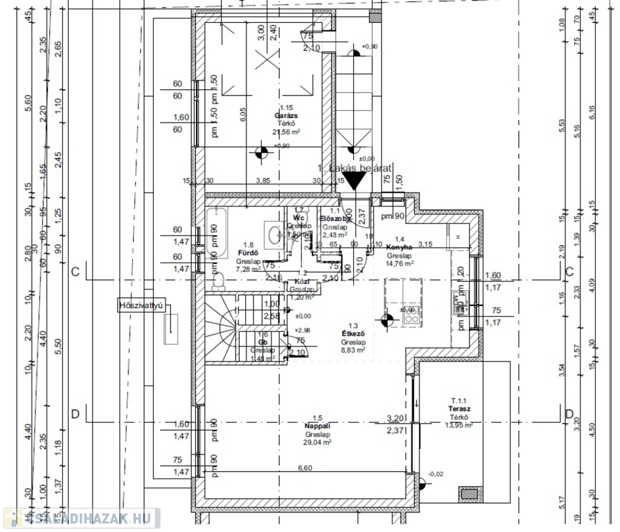
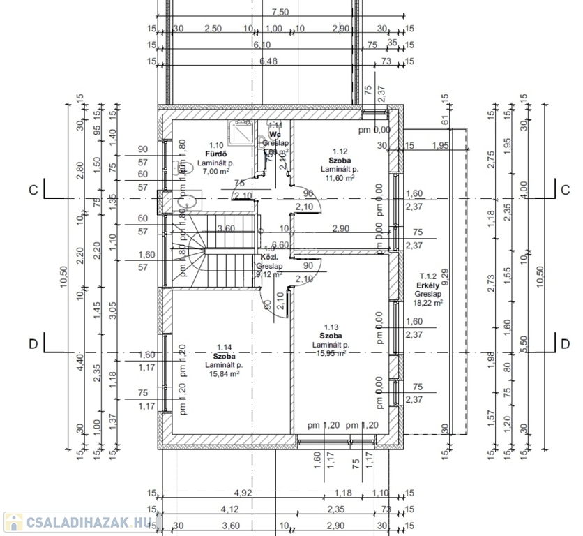
Veresegyház, Hegyek városrész csendes, kertvárosias részén, cca. 650 nm-es telek területtel, Új építésű, bruttó 176 nm-es, 5 szobás (nappali + 4 hálószoba, külön konyha, étkező), egy szintes, vasbeton födémes, hőszivattyús (levegő - vízes) padló fűtéssel, Dél - Nyugati fekvésű, műanyag thermo dió színű (3 rétegű, 7 légkamrás) nyílászárós, szigetelt (15 cm dryvit), új építésű, a másik féltől teljesen elszaparált, dupla garázzsal elválasztott, a másik lakóegységgel egy telken lévő, de külön, elválasztott úton megközelíthető családi ház (hátsó) eladó.

Az ingatlan 30 cm-es síkra csiszolt téglából épül, 15 cm-es dryvit szigeteléssel, vasbeton födémmekel, cserép fedéssel, továbbá dupla garázzsal.


Az ingatlan kulcsrakész állapotban kerül átadásra, riasztó előkészítéssel, szaniterekkel, burkolatokkal, rendezett kerttel, új kerítéssel, tér burkolt járdával. A belső ajtókat, szanitereket és a burkolatokat a belső műszaki tartalomban megjelölt összegig a vevő a saját igénye szerint választhatja.
A nyílászárók műanyag thermo dió színű hőszigetelt 3 rétegű, 7 légkamrás üvegezésűek, elektromos redőnnyel, igény estén rovarhálóval.

650 nm-es telek terület és a földszinti terasz lehetőséget nyújt a pihenésre, kikapcsolódásra.


Iskola, óvoda, bölcsöde, posta, orvosi rendelő, bevásárlási lehetőség, patika, vonat - és busz megálló pár perces távolságra, az M0-ás, 3-mas főút személy gépkocsival gyorsan elérhető.


CSOK PLUSSZ, 5%-OS ÁFA IGÉNYELHETŐ!!!

Átadás: 1 éven belül, 2026. júniusban.

Építés éve: 2025
Méret: bruttó 176 nm
Falazat: 30 cm vastagságú síkra csiszolt okos tégla
Szigetelés: 15 cm dryvit
Nyílászárók: 3 rétegű, 7 légkamrás üvegezéssel, elektromos redőnnyel, igény esetén szúnyoghálóval.
Födém: vasbeton
Fűtés: hőszivattyús padlófűtéssel, igény esetén mennyezeti hűtéssel, áramellátás: H tarifa igényelhető
Állapot: új építésű
Parkolás: saját 36 nm-es dupla garázs, elektromos kapu előkészítés.

Érdemes megnézni, bővebb információért hívjon bizalommal akár hétvégén is!
L.D

INGYENES hitel tanácsadás, CSOK Plusz ügyintézés, OTTHON START HITEL!
BANKFÜGGETLEN hitelcentrumunk az összes elérhető bank és hitelintézet ajánlatát versenyezteti az Ön kedvéért, ráadásul DÍJMENTESEN.

- Egyedi, bankfiókban nem elérhető kamat- és díjkedvezmények
- Hitelképesség vizsgálat
- Idő, energia és pénz megtakarítás
- Teljes hivatali ügyintézés

Családi ház részletei

Ár: 158 000 000 Ft
Méret: 158 négyzetméter
Azonosító: 11582838
Irodai azonosító: 390231
Cím: Veresegyház csendes részén
Telek: 650 négyzetméter
Ingatlan állapota: Kitűnő
Jelleg: családi ház
Építőanyag: Tégla
Fűtés jellege: Geotermikus
Fűtés módja: Hőszivattyú
Komfort fokozat: Dupla komfort
Kor: Új építésű
Szintek száma: Földszintes
Egész szobák: 5

Egyéb jellemzők

  • Csatorna
  • Garázs
  • Pince
  • Terasz

Térkép


Így keressen családi házat négy egyszerű lépésben. Csupán 2 perc, kötelezettségek nélkül!

Szűkítse a családi házak
listáját
Válassza ki a megfelelő
családi házat
Írjon a hirdetőnek
Várjon a visszahívásra