Eladó családi ház Veresegyház 131 900 000 Ft

Leírás

ELADÓ 131 NM-ES, BELSŐ KÉTSZINTES SORHÁZ SAJÁT KERTTEL ÉS GARÁZZSAL VERESEGYHÁZ KEDVELT, KERTVÁROSI RÉSZÉN!

DÉLKELETI FEKVÉS, PADLÓFŰTÉS, TERASZ, KIVÁLÓ KÖZLEKEDÉS – VONAT 5-8 PERC SÉTÁRA, BUDAPEST GYORSAN ELÉRHETŐ!

CSENDES KÖRNYEZET, IDEÁLIS CSALÁDI OTTHON!

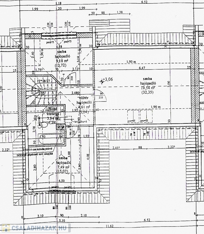
Megvételre kínálok, Pest megyei Veresegyházon, délkeleti fekvésű, nettó 131 nm-es, bruttó 170 nm-es, belső kétszintes, önálló helyrajzi számmal, 2 + 2 félszobás, jó állapotú, saját garázzsal, és 284 nm-es önálló telekkel rendelkező sorházat.

Az épület 2006-ban épült, beton alapra, 38 cm-es Phorotherm téglából, 7 cm dryvit szigeteléssel, beton födémmel, betoncserép fedéssel. Épület körbe műanyag thermo nyílászárókat kapott, elektromos redőnnyel és rovarhálóval ellátva. Fűtésről és melegviz ellátásról gázkazán gondoskodik, mindkét szinten padlófűtéssel. A felsőszintre vezető lépcső, korlátja és fa burkolata az ingatlan tartozéka, rendelkezésre is áll, csak ha az új tulajdonosnak, kell megcsináltatnia.

Környezete tiszta rendezett, szomszédok barátságosak kedvesek.

​Közlekedés:

​Az ingatlan egyik legnagyobb előnye az elhelyezkedése a tömegközlekedés szempontjából:

​Vasút:
Az Ivacs megállóhely sétatávolságra (kb. 5-8 perc) található. Innen a Budapest–Vácrátót–Vác vonalon közvetlen vonatok indulnak a Nyugati pályaudvarra (kb. 45-50 perc menetidő).
​Helyi busz:
A veresegyházi helyi járatok segítik a központ és a többi városrész elérését.

Autó:
Budapest az M3-as autópályán vagy az M2-es úton keresztül is viszonylag gyorsan (forgalomtól függően 30-40 perc) megközelíthető.

​Ellátottság és Környezet:

​Bevásárlás:
A közelben kisebb élelmiszerboltok találhatók, de a városközpontban lévő nagy áruházak (Lidl, SPAR) is 5-10 perces autóúttal elérhetőek.

​Oktatás/Egészségügy:
Veresegyház híres a jó iskoláiról (pl. Fabriczius József Általános Iskola) és a modern Misszió Egészségügyi Központról, melyek a város belsőbb részén találhatók.

Szabadidő:
A közelben vannak az Ivacsi-tavak, ami remek kikapcsolódási lehetőség, és nincs messze a híres Veresegyházi Medveotthon sem.

INGYENES hitel tanácsadás! CSOK Ügy intézés!
BANKFÜGGETLEN hitelcentrumunk minden elérhető bank és hitelintézet ajánlatát versenyezteti az Ön kedvéért, ráadásul DÍJMENTESEN.
Önnek nincs más dolga, mint elbeszélgetni munkatársunkkal, aki a hallott információk alapján versenyre hívja a bankokat, hogy Ön hosszú távon is a legjobb konstrukciót kaphassa. A legjobb ajánlatokból végül Ön választhatja ki a nyertest.
Munkatársaink sokéves szakmai tapasztalattal várják Önt, előre egyeztetve akár a normál munkaidő után is.

Amennyiben hirdetésem felkeltette érdeklődését, várom hívását, akár hétvégén is! V.I.

Családi ház részletei

Ár: 131 900 000 Ft
Méret: 131 négyzetméter
Azonosító: 11602108
Irodai azonosító: 393084
Cím: Veresegyház kertvárosi részén
Telek: 284 négyzetméter
Ingatlan állapota:
Jelleg: sorház
Építőanyag: Tégla
Fűtés jellege: Cirkó
Fűtés módja: Gáz
Komfort fokozat: Összkomfort
Kor: 11-20 éves
Szintek száma: 1 szint
Egész szobák: 2
Fél szobák: 2

Egyéb jellemzők

  • Csatorna
  • Garázs
  • Pince
  • Terasz

Térkép


Így keressen családi házat négy egyszerű lépésben. Csupán 2 perc, kötelezettségek nélkül!

Szűkítse a családi házak
listáját
Válassza ki a megfelelő
családi házat
Írjon a hirdetőnek
Várjon a visszahívásra