Eladó családi ház Veresegyház 99 900 000 Ft

Leírás

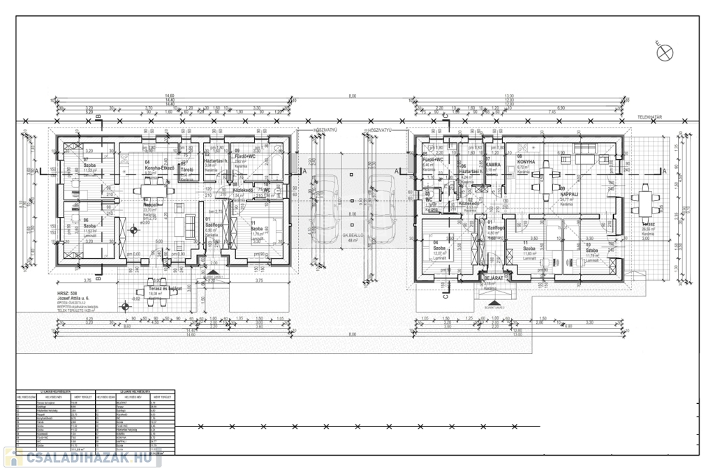
Veresegyházon a Ráday utca 31. szám alatt, 969 m²-es telken, nettó 93,2 m²-es és 94,55 m²-es három szoba + amerikai konyhás nappalival rendelkező, energiahatékony ikerházfelek eladók, megbízható számos referenciával rendelkező kivitelezőtől!

Az utcafronti ingatlan 347 m²-es telekrésszel 109.990.000 Ft.
A hátsó ingatlan 622 m²-es telkerésszel 124.999.000. Ft.

Az ingatlanok csak a fedett kocsibeállókkal érintkeznek.

A tartószerkezeti falak Porotherm P30N+F téglából, betonkoszorúval, fa födémes tetőszerkezettel készülnek. A lábazat 10 cm polisztirol lépésálló, a homlokzatok 15cm-es EPS, a vízszintes födém 30 cm ásványgyapot szigeteléssel lesz ellátva.

Három rétegű üvegekkel szerelt, hat légkamrás műanyag thermo nyílászárók kerülnek beépítésre, elektromos alúmínium redőnyökkel és szúnyoghálóval.

A minimális energiaigényt a megfelelő szigetelésen kívül a megújuló energiát használó gépészet is biztosítja. A fűtést és a használati melegvíz ellátását split rendszerű levegő-víz hőszivattyús rendszer fogja végezni. A hűtésről fan-coil fog gondoskodni.

Burkolatok , szaniterek, belső ajtók, csaptelepek választhatóak a következő értékhatárig:

-Hidegburkolat: 8000 Ft.-/m2
-Melegburkolat: 6.000 Ft.-/m2
-Beltéri ajtók: 80.000.Ft.-/db
-Fürdőkád: 40.000.- Ft.-
-Csaptelepek: 15000.- Ft.-/db

Magasabb árú választás is lehetséges, a különbség finanszírozásával.

A kivitelező korábban számos ingatlant épített Isaszegen és Veresegyházon, a már birtokbaadott ingatlanokat komoly érdeklődés esetén szívesen megmutatjuk referenciaként.

Csok plusz, Otthon Start igényelhető!

Tervezett átadás 2026 harmadik negyedéve

Érdeklődő ügyfeleinknek a tervdokumetációt és a műszaki tartalmat készséggel rendelkezésre bocsájtjuk.

INGYENES hitel tanácsadás, CSOK Plusz ügyintézés!
BANKFÜGGETLEN hitelcentrumunk az összes elérhető bank és hitelintézet ajánlatát versenyezteti az Ön kedvéért, ráadásul DÍJMENTESEN.

- Egyedi, bankfiókban nem elérhető kamat- és díjkedvezmények
- Hitelképesség vizsgálat
- Idő, energia és pénz megtakarítás
- Teljes hivatali ügyintézés

Amennyiben hirdetésem felkeltette az érdeklődését vagy egyéb információra van szüksége hívjon bizalommal!

Családi ház részletei

Ár: 99 900 000 Ft
Méret: 95 négyzetméter
Azonosító: 11587758
Irodai azonosító: 390879
Cím: Ráday utca
Telek: 969 négyzetméter
Ingatlan állapota: Kitűnő
Jelleg: családi ház
Építőanyag: Tégla
Fűtés jellege: Geotermikus
Fűtés módja: Hőszivattyú
Komfort fokozat: Összkomfort
Kor: Új építésű
Szintek száma: Földszintes
Egész szobák: 4

Egyéb jellemzők

  • Csatorna
  • Garázs
  • Pince
  • Terasz

Térkép


Így keressen családi házat négy egyszerű lépésben. Csupán 2 perc, kötelezettségek nélkül!

Szűkítse a családi házak
listáját
Válassza ki a megfelelő
családi házat
Írjon a hirdetőnek
Várjon a visszahívásra