Eladó családi ház Velence, Velencefürdő, 98 000 000 Ft

Leírás

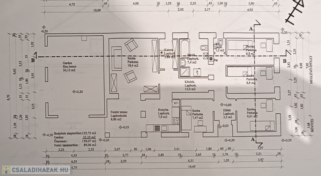
Két élettér, mindenhez közel

Velencén a tóhoz és a vasútállomáshoz egyaránt kényelmes sétatávolságra kínáljuk eladásra ezt a teljes körűen felújított, kétgenerációs családi házat, amely két különálló lakrészével és szerethető, zöldövezeti környezetével igazán hangulatos otthont teremt.

A nagyobb, 90 m²-es lakóház tágas, jól átgondolt elrendezésű: négy szoba, amerikai konyhás nappali, kamra és fürdőszoba biztosítják a mindennapi kényelmet, a nappaliban található kandalló pedig otthonos, meleg hangulatot kölcsönöz a térnek. A nappaliból egy részben fedett, kertkapcsolatos terasz nyílik, ahol kellemes árnyékban lehet megpihenni vagy vendégeket fogadni.
A kisebb, 30 m²-es lakrész szintén külön bejáratú, teljes értékű otthon: egy szoba, amerikai konyhás nappali és fürdőszoba alkotja, saját, intim kertrésszel. Tökéletes választás idős hozzátartozónak, fiatal felnőttnek vagy akár nyugodt, különálló irodának.

Az ingatlan 2004-ben teljes körű felújításon esett át: megtörtént a tetőszerkezet cseréje, a nyílászárók korszerűsítése, a fűtésrendszer felújítása és a vezetékek cseréje.

A ház körüli árnyas, parkosított kertben kavicsos sétány, dús növényzet, formás cserjék, magas fák és apró virágágyások nyújtanak természetes szépséget. A kert hangulatos pontjait egy nyári konyha és egy kellemes, fedett pagoda teszi teljessé, mely ideális egy nyugodt kávéhoz, grillezéshez vagy akár befőzéshez is. A gondosan kialakított konyhakert locsolása fúrt kútról egyszerűen megoldható. Az udvarban fedett autóbeálló és igényesen kialakított kocsibehajtó szolgálja még a mindennapi kényelmet.

A környék infrastruktúrája kiváló: bevásárlási lehetőségek, szolgáltatások, vasútállomás és Budapest felé gyors, kényelmes elérhetőség – mindezt úgy, hogy közben egy szerethető, tóparti közegben élhet. A természet közelsége, a part menti sétányok, a kerékpárutak és a számtalan szabadidős lehetőség egész évben kellemes életminőséget biztosítanak.

Akár két generáció számára, akár vállalkozáshoz, akár többfunkciós élettérként keres otthont, ez a ház a Velencei-tó közelében otthonos, természetközeli, szerethető környezetet kínál.

Irányár: 98 M

Bővebb információért keressen minket bizalommal, segítünk megtalálni új otthonát.

Családi ház részletei

Ár: 98 000 000 Ft
Méret: 120 négyzetméter
Azonosító: 11581562
Városrész: Velencefürdő
Telek: 1038 négyzetméter
Ingatlan állapota: Felújított
Jelleg: családi ház
Építőanyag: Vegyes
Fűtés jellege: Cirkó
Fűtés módja: Gáz
Komfort fokozat: Dupla komfort
Kor: 21-50 éves
Elhelyezkedés: Udvari
Szintek száma: Földszintes
Egész szobák: 6
Fél szobák: 1

Egyéb jellemzők

  • Csatorna
  • Kábel TV
  • Melléképület
  • Terasz

Térkép


Így keressen családi házat négy egyszerű lépésben. Csupán 2 perc, kötelezettségek nélkül!

Szűkítse a családi házak
listáját
Válassza ki a megfelelő
családi házat
Írjon a hirdetőnek
Várjon a visszahívásra