Eladó családi ház Vecsés 159 000 000 Ft

Leírás

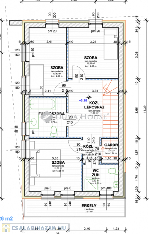
Eladó új építésű, kétszintes ikerházfél Vecsés központjában modern kialakítás, saját garázzsal, terasszal és udvarrésszel!

Vecsés egyik legkeresettebb, legnagyobb presztízsű részén, a Fő út közelében, kiváló infrastruktúrával rendelkező területen megvételre kínálunk egy 140 m²-es, új építésű ikerházfelet. A projekt átadása 2026. I. negyedévében várható.

Ez az ingatlan egyedülálló lehetőséget kínál azoknak, akik korszerű, energiahatékony otthont keresnek Vecsés központjában.

Főbb jellemzők:
* Alapterület: 140 m²
* Telek területe: 253 m²
* Szerkezet: Ytong falazat, kiváló hő- és hangszigeteléssel
* Fűtés: hőszivattyú (padlófűtéses rendszer)
* Szintek: földszint + emelet
* Gépkocsibeállás: garázs + külső parkolóhely (10-20 m-re az ingatlantól)
* Terasz és óvott udvarrész
* Erkély a felső szinten, a hálószobákból közvetlen kijárattal
* A ház a garázsnál kapcsolódik az ikerfélhez, ezáltal teljesen szeparált, intimitása és önállósága megmaradt.

Választható belső elemek:
* Hideg- és melegburkolatok 7.000 Ft/m² árig
* Belső ajtók 100.000 Ft/db árig
* Szaniterek 600.000 Ft értékhatárig

Műszaki felszereltség:
* Korszerű hőszivattyús fűtési rendszer
* Hőszigetelt, 3 rétegű nyílászárók
* Padlófűtés minden helyiségben
* Elektromos redőny és klímaelőkészítés
* Igényes, minőségi burkolatok és szaniterek

Elhelyezkedés:
* Iskola: közvetlenül az utca túloldalán
* Bevásárlási lehetőségek: Market Centrál, Lidl, Aldi néhány perc autóval
* Busz- és vasútállomás gyalogosan is közel
* Budapest központja kb. 20 perc alatt elérhető autóval vagy tömegközlekedéssel

Miért érdemes megtekinteni?
* Kiváló lokáció Vecsés legkeresettebb, legértékesebb része
* Modern, energiatakarékos technológia
* Magas műszaki tartalom
* Saját garázs, udvar és terasz
* Tökéletes választás családoknak és befektetőknek egyaránt

Ez az ikerházfél egy olyan új építésű otthon, ahol a modern technológia és a kénylem találkozik a kiváló elhelyezkedéssel. A kivitelezés magas minőségű, a ház építése folyamatban van, az átadás 2026 tavaszára várható.

Érdeklődés esetén több információval, alaprajzzal és személyes egyeztetési lehetőséggel állok rendelkezésre.
Ügyvédi közreműködés és hitelügyintézés egy helyen.

Családi ház részletei

Ár: 159 000 000 Ft
Méret: 140 négyzetméter
Azonosító: 11581890
Irodai azonosító: HZ051407-5093765
Cím: Eladó 140 nm-es ház Vecsés
Telek: 253 négyzetméter
Ingatlan állapota: Épülő
Jelleg: ikerház
Építőanyag: Szilikát
Fűtés jellege: Villany
Fűtés módja: Hőszivattyú
Kor: Új építésű
Szintek száma: Földszintes
Egész szobák: 5

Térkép


Így keressen családi házat négy egyszerű lépésben. Csupán 2 perc, kötelezettségek nélkül!

Szűkítse a családi házak
listáját
Válassza ki a megfelelő
családi házat
Írjon a hirdetőnek
Várjon a visszahívásra