Eladó családi ház Vecsés 148 700 000 Ft

Leírás

Modern, energiatakarékos otthonok Vecsésen – Minőség, kényelem és innováció egy helyen

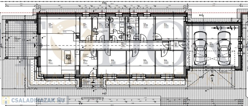
Eladásra kínálok egy nappali + 4 hálószobás, dupla fürdőszobás, Fedett teraszos, 2 autó számára garázs, Új építésű hőszivattyús ikerházi lakást, amely a korszerű technológia és a prémium kivitelezés tökéletes ötvözete.

MÁR CSAK AZ UDVARFELŐLI LAKÁS ELÉRHETŐ!!!!

A lakások egy 26 méteres pengefallal kapcsolódnak, így a lakások közt az áthallás kizárt!!!

Az építkezés elkezdődött, így ön végig követheti épülő ingatlanja építését, referenciaházak a közelben megtekinthetők.

Ez az otthon a legmodernebb technológiával épült, levegő-víz hőszivattyúval, amely garantálja az alacsony fenntartási költségeket. Lakásokban padlófűtés és mennyezet hűtés-fűtés biztosítja a maximális komfortot. A lakások élhető, világos terekkel rendelkeznek. Az amerikai konyhás nappali mellett négy hálószoba található, köztük egy szülői hálószoba saját Gardróbbal, Emellett a háztartási helyiségben külön vendég-WC és egy praktikus kamra is helyet kapott a házban.

Az ikerház egymás mögött helyezkedik el egy 2500 m²-es telken, amely egy pengefallal megosztott, így mindkét lakáshoz saját, privát kert tartozik.

Az ingatlan paraméterei:

1. lakás (utcafront felőli): ELKELT!!!

2. lakás (hátsó udvar felőli)
• Alapterület: 167,8 m²
• Telekterület: 1500 m²
• Terasz: 20,8 m²
• Garázs: 38,5 m²
• Vételár: 148,7 millió Ft



Műszaki tartalom:
• 30 cm-es Viablokk főfalak 20 cm EPS szigeteléssel
• Hőszigetelt, 3 rétegű üvegezésű elektromos nyílászárók, szúnyoghálóval (a teraszajtók elektromos redőnnyel)
• Vasbeton sávalap, fafödém 30 cm üveggyapot szigeteléssel

További extrák:
• Riasztórendszer előkészítés
• Elektromos kapu előkészítés
• Elektromos hőszigetelt garázskapu (motor az árban)
• Fedett terasz

Elhelyezkedés és környezet:

Az ingatlan egy csendes zsákutcában található, ugyanakkor minden fontos kiszolgáló egység – iskola, óvoda, piac és tömegközlekedés – pár perc sétára elérhető.

Az ingatlan kulcsrakész állapotban kerül átadásra.

Várható átadás: 2026 II-III. Negyedév.

Megbízható, precíz kivitelező által épített, exkluzív otthon, amely minden igényt kielégít.

Hívjon most a részletekért, és tekintse meg személyesen!

A hirdetésben szereplő leírás és alaprajz kizárólag tájékoztató jellegű!!!

IRODÁNK INGYENES HITELÜGYINTÉZÉST ÉS TANÁCSADÁST BIZTOSÍT, VALAMINT SEGÍT AZ ÚJ CSOK PLUSZ FOLYÓSÍTÁSÁBAN IS.

Családi ház részletei

Ár: 148 700 000 Ft
Méret: 167 négyzetméter
Azonosító: 11580313
Irodai azonosító: 345506
Telek: 1500 négyzetméter
Ingatlan állapota: Kitűnő
Jelleg: ikerház
Építőanyag: Tégla
Komfort fokozat: Dupla komfort
Kor: Új építésű
Egész szobák: 5

Egyéb jellemzők

  • Garázs
  • Terasz

Így keressen családi házat négy egyszerű lépésben. Csupán 2 perc, kötelezettségek nélkül!

Szűkítse a családi házak
listáját
Válassza ki a megfelelő
családi házat
Írjon a hirdetőnek
Várjon a visszahívásra