Eladó családi ház Vecsés 149 000 000 Ft

Leírás

Eladó új építésű, kétszintes ikerházfél Vecsés központjában modern kialakítás, saját garázzsal, terasszal és udvarrésszel!

Vecsés egyik legkeresettebb, legnagyobb presztízsű részén, a Fő út közelében, kiváló infrastruktúrával rendelkező területen megvételre kínálunk egy 140 m²-es, új építésű ikerházfelet.
A projekt átadása 2026. I. negyedévében várható.
Ez az ingatlan egyedülálló lehetőséget kínál azoknak, akik korszerű, energiahatékony otthont keresnek Vecsés központjában.

Főbb jellemzők:
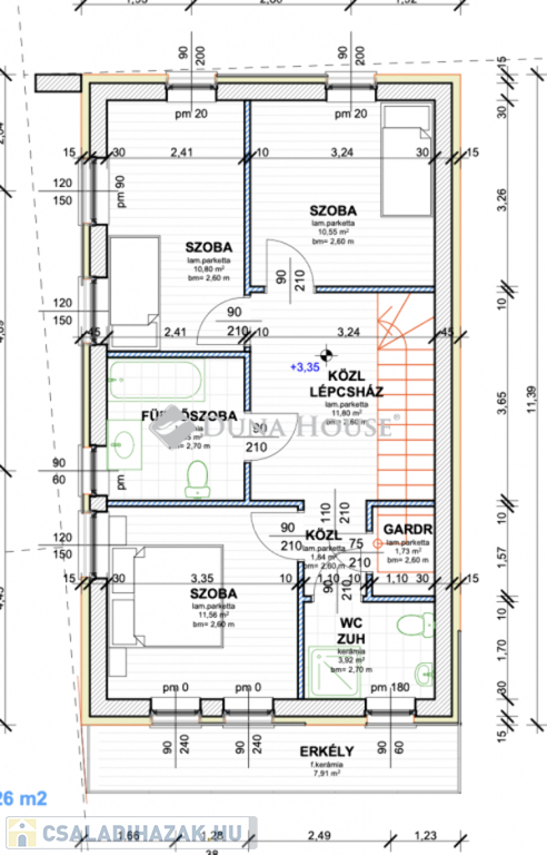
- Alapterület: 140 m²
- Telek területe: 256 m²
- Szerkezet: Ytong falazat, kiváló hő- és hangszigeteléssel
- Fűtés: hőszivattyú
- Szintek: földszint + emelet
- Gépkocsibeállás: garázs + külső parkolóhely (10-20 m-re az ingatlantól)
- Terasz és óvott udvarrész
- Erkély a felső szinten, a hálószobákból közvetlen kijárattal
- A ház a garázsnál kapcsolódik az ikerfélhez, ezáltal teljesen szeparált, intimitása és önállósága megmaradt.

Választható belső elemek:
- Hideg- és melegburkolatok 7.000 Ft/m² árig
- Belső ajtók 100.000 Ft/db árig
- Szaniterek 600.000 Ft értékhatárig

Műszaki felszereltség:
- Korszerű hőszivattyús fűtési rendszer
- Hőszigetelt, 3 rétegű nyílászárók
- Elektromos redőny és klímaelőkészítés
- Igényes, minőségi burkolatok és szaniterek

Elhelyezkedés:
- Iskola: közvetlenül az utca túloldalán
- Bevásárlási lehetőségek: Market Centrál, Lidl, Aldi néhány perc autóval
- Busz- és vasútállomás gyalogosan is közel
- Budapest központja kb. 20 perc alatt elérhető autóval vagy tömegközlekedéssel

Miért érdemes megtekinteni?
- Kiváló lokáció Vecsés legkeresettebb része
- Modern, energiatakarékos technológia
- Magas műszaki tartalom
- Saját garázs, udvar és terasz
- Tökéletes választás családoknak és befektetőknek egyaránt

Ez az ikerházfél egy olyan új építésű otthon, ahol a modern technológia és a kénylem találkozik a kiváló elhelyezkedéssel. A kivitelezés magas minőségű, a ház építése folyamatban van, az átadás 2026 tavaszára várható.

Érdeklődés esetén több információval, alaprajzzal és személyes egyeztetési lehetőséggel állok rendelkezésre.
Ügyvédi közreműködés és hitelügyintézés egy helyen.

Családi ház részletei

Ár: 149 000 000 Ft
Méret: 140 négyzetméter
Azonosító: 11594713
Irodai azonosító: HZ023020-5130375
Cím: Vecsési 140 nm-es ház eladó
Telek: 238 négyzetméter
Ingatlan állapota: Épülő
Jelleg: ikerház
Építőanyag: Szilikát
Fűtés jellege: Villany
Fűtés módja: Hőszivattyú
Kor: Új építésű
Szintek száma: Földszintes
Egész szobák: 5

Térkép


Így keressen családi házat négy egyszerű lépésben. Csupán 2 perc, kötelezettségek nélkül!

Szűkítse a családi házak
listáját
Válassza ki a megfelelő
családi házat
Írjon a hirdetőnek
Várjon a visszahívásra