Eladó családi ház Vecsés 149 000 000 Ft

Leírás

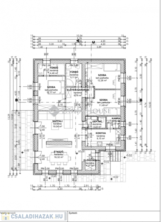
Exkluzív lehetőség Vecsés szívében Kispatak LakóparkÖnálló, egyszintes családi ház saját kerttel, tökéletes harmóniában a kényelemmel és a természet közelségével.Fedezze fel Vecsés egyik legkedveltebb, kertvárosi részét, ahol a csend, a biztonság és a modern életérzés találkozik! A Kispatak Lakóparkban egy gondosan tervezett, körbejárható, egyszintes családi ház várja új tulajdonosát .Mindennapi kényelem és aktív élet egy karnyújtásnyiraNéhány perc sétára modern játszótér és futópálya kínál kikapcsolódást kicsiknek és nagyoknak. A közelben óvoda, iskola, orvosi rendelő (SZTK), gyógyszertár és bevásárlási lehetőségek állnak rendelkezésre, gépkocsival pedig mindössze 10 perc a Market Central bevásárlóközpont. Mindez egy nyugodt, csendes, családbarát lakóparkban, ahol az otthon valóban a béke szigete. Tágas elegancia és sokoldalúság!- 107,26 m² lakótér + 20 m² terasz + 63 m² pince- 326 m² saját, körbekerített telek- Előszoba, nappali + étkező + 3 szoba, konyha, kamra, 2 fürdő, 3 WC, gépészeti helyiség- Udvari beálló 2 autó részére, ingyenes utcai parkolás- Exkluzív lehetőség: a pince spa-részleggé vagy önálló lakássá alakítható /megbeszélés alapján/Teljes körű felújítás 2025. decemberi átadás- Új villamos- és vízvezeték-rendszer- Prémium hő- és hangszigetelt nyílászárók redőnnyel- Modern 24 kW-os cirkófűtés - minden helyiségben hűtő-fűtő inverteres klíma- Bramac tetőcserépIdeális fiatal pároknak, kisgyermekes családoknak, idősebbeknek mindazoknak, akik értékelik a csendes kertvárosi hangulatot, de nem akarnak lemondani a városi kényelemről. Ez az ingatlan nem csupán egy ház ez az Ön új életstílusa. Hívjon most, és fedezze fel személyesen!

Családi ház részletei

Ár: 149 000 000 Ft
Méret: 140 négyzetméter
Azonosító: 11599376
Irodai azonosító: HZ047885-5149171
Telek: 466 négyzetméter
Ingatlan állapota: Kitűnő
Jelleg: családi ház
Építőanyag: Tégla
Fűtés jellege: Cirkó
Fűtés módja: Gáz
Kor: 21-50 éves
Szintek száma: Földszintes
Egész szobák: 4

Térkép


Így keressen családi házat négy egyszerű lépésben. Csupán 2 perc, kötelezettségek nélkül!

Szűkítse a családi házak
listáját
Válassza ki a megfelelő
családi házat
Írjon a hirdetőnek
Várjon a visszahívásra