Eladó családi ház Vecsés 129 900 000 Ft

Leírás

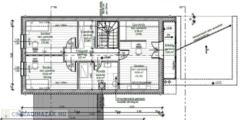
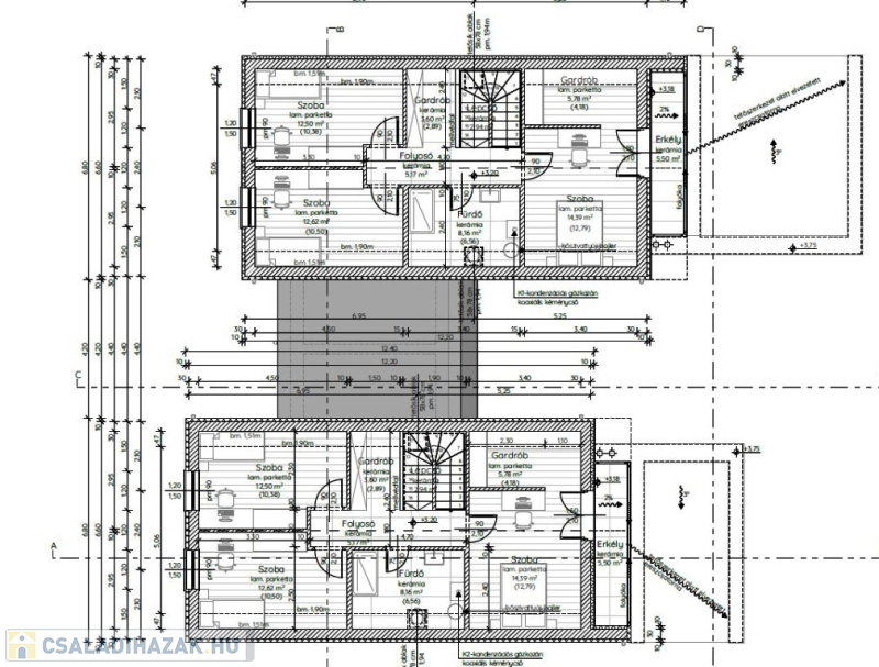
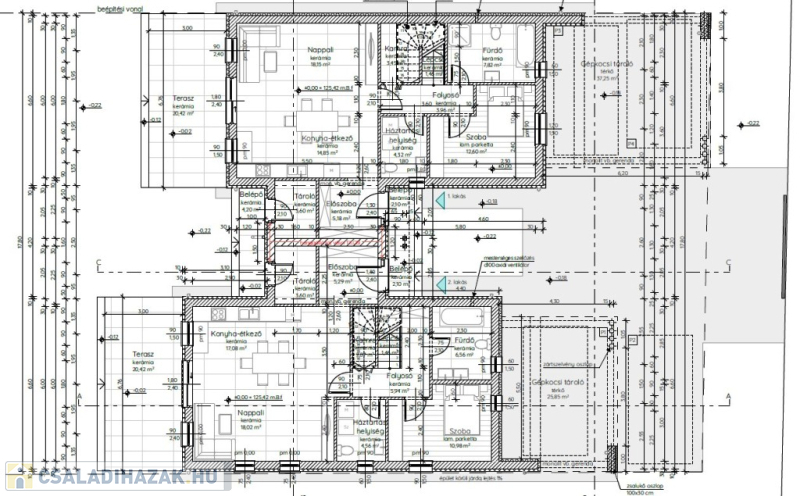
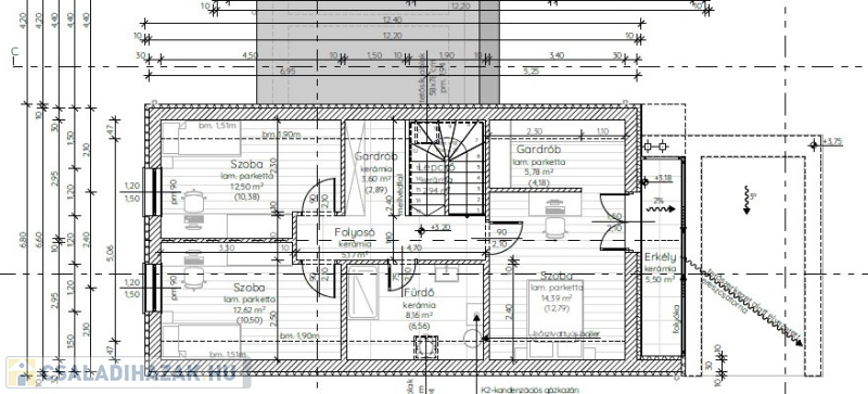
Vecsés legkedveltebb kertvárosi részén , mellékutcában újonnan épülő összesen 140 m2-es, nappali + 4 szobás, 2 fürdőszobás kétszintes, családi házak 450 m2-es telekrészekkel 2026 év végi átadással kulcsrakészen eladó. A házak egymás mellett helyezkednek el, 2 autóval fedett beállási lehetőség (37m2)az udvaron, terasz (20m2),tároló (3,6m2).

Műszaki tartalom, felszereltség:
Az ingatlan korszerű, költséghatékony és energiatakarékos megoldásokkal épül:
- 10 cm vastag külső hőszigetelés
- Tégla falazat, LEIER v Porotherm 30N+F,válaszfalak 10 Porotherm 10N+F tégla
- 3 rétegű, hőszigetelt műanyag nyílászárók
- 24kw kondenzációs cirkó plusz meleg víz tároló
- padlófűtés minden helyiségben,2 gadrób
- 25 cm födém hőszigetelés
- Redőnyök , fehér színben
- 2 db GREE 3,5 Kw-os hűtő-fűtő klíma
- Elektromos kapu
- saját kertkapcsolat
- nagy terasz

A település infrastruktúrája kiváló: üzletek, iskola, óvoda, egészségügyi ellátás és tömegközlekedés könnyen elérhető, Budapest gyorsan megközelíthető.

Magyarország piacvezető hitelközvetítője által egyedi kamatkedvezményekkel és bankfüggetlen, díjmentes hitelügyintézéssel is segítjük vásárlását. Amennyiben minimum 25 millió Ft. összegű ingatlanfedezetes hitelt vesz igénybe általunk 500 Euro értékű Club Karos Spa**** wellness utalványt adunk ajándékba. (Az akció kizárólag a Money Network ügynökhálózatán keresztül beadott és folyósított jelzáloghitelekre érvényes.) Hívjon bizalommal!

Családi ház részletei

Ár: 129 900 000 Ft
Méret: 140 négyzetméter
Azonosító: 11601164
Telek: 450 négyzetméter
Ingatlan állapota: Kitűnő
Jelleg: családi ház
Építőanyag: Kérdezzen rá a hirdetőtől »
Fűtés jellege: Cirkó
Szintek száma: 2 szint
Egész szobák: 5

Egyéb jellemzők

  • Csatorna
  • Garázs
  • Kábel TV
  • Melléképület
  • Parketta
  • Pince
  • Terasz

Így keressen családi házat négy egyszerű lépésben. Csupán 2 perc, kötelezettségek nélkül!

Szűkítse a családi házak
listáját
Válassza ki a megfelelő
családi házat
Írjon a hirdetőnek
Várjon a visszahívásra