Eladó családi ház Vecsés 129 000 000 Ft

Leírás

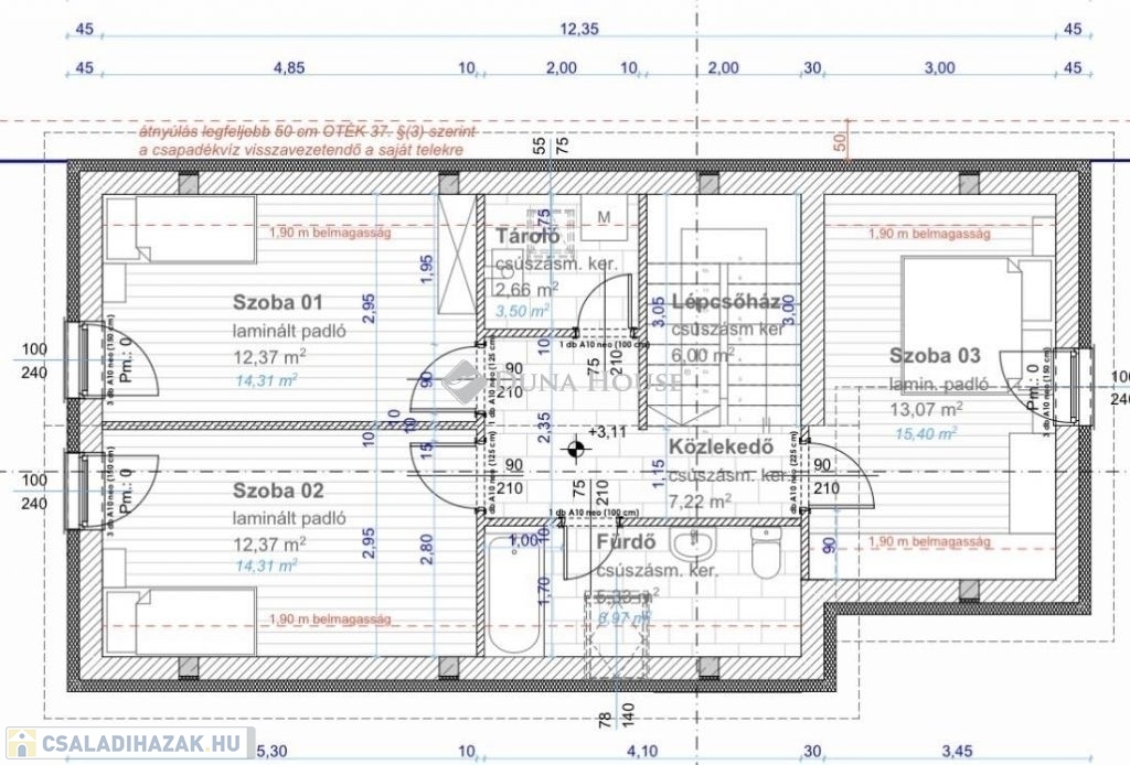
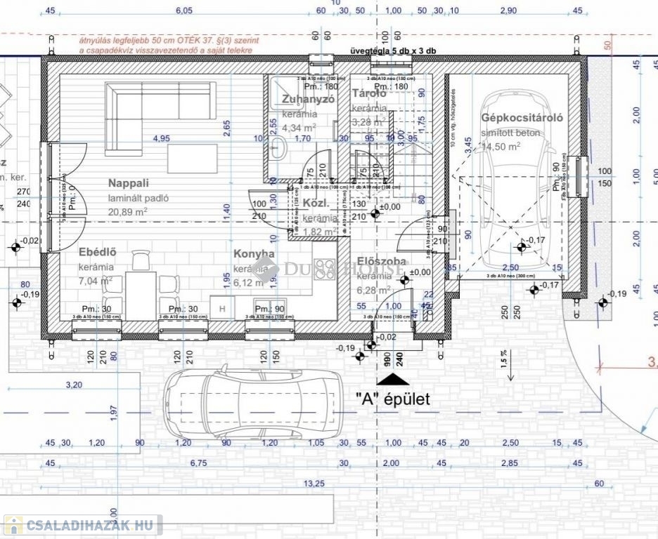
Vecsésen frekventált helyen kínálok megvételre egy új építésű családi házat .1174 nm -es telken ügyvédi megosztással 2 db különálló családi ház épült. Készültségi fok 100 %Telek mérete 540 nm ( saját )Nettó alapterület 119 nmKialakításAlsó szinten :-amerikai konyhás nappali-szoba -Közlekedő-Zuhanyzós Fürdőszoba-Lépcsőtér ( alatta kamra kialakítva)Emeleten :- 3 db hálószoba- Fürdőszoba káddal ellátva-Gardrób-KözlekedőSzobákban laminált parketta , a többi helységben kő burkolatok kerültek lerakásra. Az ingatlan beton alapon b 30-as Porotherm téglából épül , 15 cm vastagságú eps 80 -as szigeteléssel ellátva, rajta nemes vakolattal.A tető fa födémes 30 cm es szigeteléssel ellátva , a héjazat Tonndach tetőcserép.Hőszivattyús fűtésrendszer , padlón keresztül történő hőleadással. Nyílászárók 3 rétegű műanyag nyílászárókAz épület mellett egy fedett autó beálló került kialakításra. Bár osztott telken található az ingatlan mégis külön érzetet ad hiszen nincs közös bejárat sem közös fal, ráadásul a telek is 540 nm !Közlekedés szempontjából bevásárlás, iskola, óvoda, orvosi ellátás pár percnyire elérhető. Amennyiben hirdetésem felkeltette érdeklődését keressen bizalommal.

Családi ház részletei

Ár: 129 000 000 Ft
Méret: 119 négyzetméter
Azonosító: 11592672
Irodai azonosító: HZ029959-5123633
Telek: 540 négyzetméter
Ingatlan állapota: Épülő
Jelleg: családi ház
Építőanyag: Tégla
Fűtés jellege: Villany
Fűtés módja: Hőszivattyú
Kor: Új építésű
Szintek száma: Földszintes
Egész szobák: 5

Térkép


Így keressen családi házat négy egyszerű lépésben. Csupán 2 perc, kötelezettségek nélkül!

Szűkítse a családi házak
listáját
Válassza ki a megfelelő
családi házat
Írjon a hirdetőnek
Várjon a visszahívásra