Eladó családi ház Vaskút 16 000 000 Ft

Leírás

Két ház, hatalmas telek, végtelen lehetőség – eladó ingatlan Vaskút szívében!

Vaskút központjában, 4690 m²-es telken eladó két felújítandó családi ház, melyek együtt igazi kincset rejtenek mind lakhatásra, mind befektetésre!

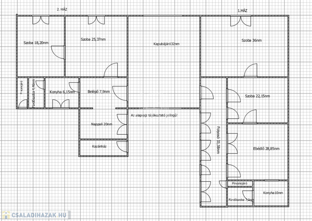
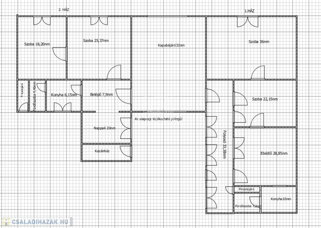
1. ház (1955, vegyes falazat, 140 m²)
-hosszú, zárt napfényes folyosó
-2 nagy szoba
-ebédlő
-konyha
-fürdőszoba
-pince

2. ház (85 m²)
-3 szoba
-konyha
-belépő
-fürdőszoba
-10 m²-es kazánház
-2,5 m²-es pincelejáró

Kert és extrák:
A kertben dió-, mogyoró-, szilva-, barack- és meggyfák teremnek, valamint egy 13 m²-es fedett terasz és egy külön főzőhelyiség teszi teljessé a vidéki hangulatot – igazi kis oázis!
⚡ Közművek:
Villany (3 fázis), gáz, víz bevezetve mindkét házba.

Ez az ingatlan tökéletes választás lehet többgenerációs családoknak, vállalkozás indításához vagy akár nyugodt vidéki életre vágyóknak!
Irányár: 16.000.000Ft

Családi ház részletei

Ár: 16 000 000 Ft
Méret: 225 négyzetméter
Azonosító: 11609993
Irodai azonosító: 388896
Cím: Kossuth Lajos utca
Telek: 4690 négyzetméter
Ingatlan állapota: Felújítandó
Jelleg: családi ház
Építőanyag: Kérdezzen rá a hirdetőtől »
Fűtés jellege: Konvektoros
Fűtés módja: Gáz
Komfort fokozat: Fél komfort
Kor: 50 évesnél régebbi
Szintek száma: Földszintes
Egész szobák: 3

Egyéb jellemzők

  • Csatorna
  • Garázs
  • Pince
  • Terasz

Térkép


Így keressen családi házat négy egyszerű lépésben. Csupán 2 perc, kötelezettségek nélkül!

Szűkítse a családi házak
listáját
Válassza ki a megfelelő
családi házat
Írjon a hirdetőnek
Várjon a visszahívásra