Eladó családi ház Vácrátót 98 900 000 Ft

Leírás

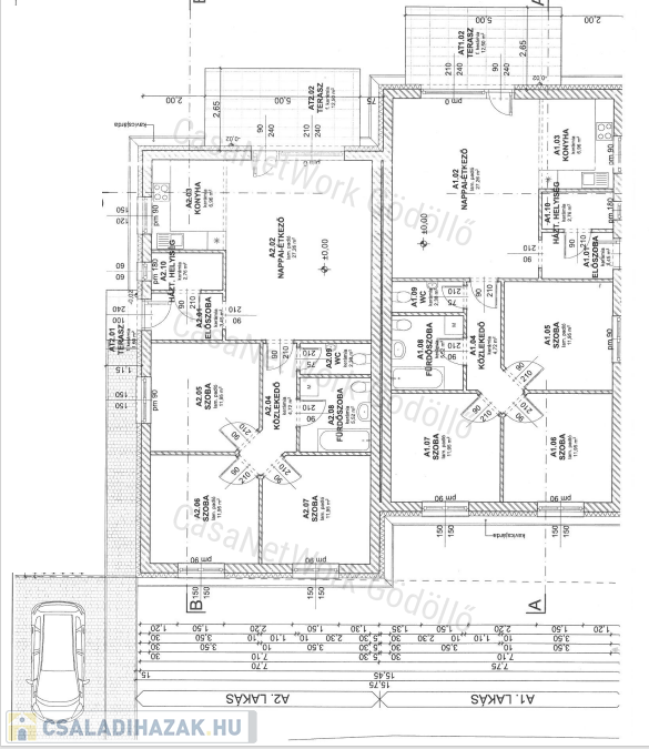
CasaNetWork Gödöllő Ingatlaniroda kínálatában eladó ikerház Vácrátóton

A kedvelt Szent István lakóparkban épülő otthon ideális választás lehet bármely korosztály részére.

Praktikus elosztása, világos életterei kényelmes életvitelt biztosítanak jövendőbeli lakóinak.

További ízelítő:

  • - műanyag, 3rétegű nyílászárók melyek redőnnyel és szúnyoghálóval szereltek, teraszajtón motoros alumínium redőny
  • - beépített szellőzőrendszer, fürdőszobában fénycsatorna került kialakításra
  • - az otthont hőszivattyű melengeti padlófűtéssel, H tarifa
  • - választható szaniterek, burkolatok
  • - könnyen karbantartható, saját használatú 420nm-es kert
  • - udvari beálló az autóknak, motoroknak
  • - kényelmes terasz, melyen megpihenhet egy fárasztó nap után
  • - 2025. nyár végi átadás

Az ár a kulcsrakész állapotra értendő!

Település ismertető: Vácrátót a  Váci járásban helyezkedik el, szépen rendezett község. Hangulatos természeti adottságai kíváló választási lehetőséget nyújtanak az ideköltözőknek.  Szívből ajánlom mindenkinek ezt a kedves települést, a gyerekeket a helyi iskola, és óvoda szeretettel várja. Botanikus kertje mesébe illő élményt nyújt minden generáció számára.  Közlekedése kiváló az ingázóknak, vonattal, busszal, autóval könnyen megközelíthető Budapest.

Bővebb információkért, megtekinthetőségért hívjon bátran telefonon a hét bármely napján!

Köszönöm, hogy elolvasta a hirdetésemet :-) Ingatlanértékesítésben kedvező lehetőségekkel állok rendelkezésére!

Ingyenes hitel tanácsadással, ügyvédi kapcsolattal és rugalmas időbeosztással állunk kedves ügyfeleink rendelkezésére! CASANETWORK - Ingatlanban otthon vagyunk

Családi ház részletei

Ár: 98 900 000 Ft
Méret: 90 négyzetméter
Azonosító: 11521532
Irodai azonosító: 166401827
Telek: 420 négyzetméter
Ingatlan állapota: Kitűnő
Jelleg: ikerház
Építőanyag: Tégla
Komfort fokozat: Összkomfort
Egész szobák: 4

Így keressen családi házat négy egyszerű lépésben. Csupán 2 perc, kötelezettségek nélkül!

Szűkítse a családi házak
listáját
Válassza ki a megfelelő
családi házat
Írjon a hirdetőnek
Várjon a visszahívásra