Eladó családi ház Vácrátót 94 500 000 Ft

Leírás


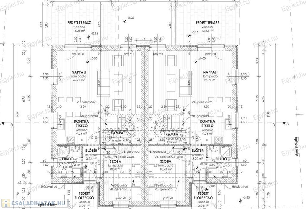
Megvételre kínálunk Vácrátót egyik legszebb részén a Szent István lakóparkban, egy HÓSZIVATTYÚS, teraszos, 108 nm-es, 5 szobás, ikerházat. A terasz mérete 14 nm. Minőségi alapanyagokból, kiemelkedő műszaki tartalom és igényes kivitelezés jellemzi a projektet, ahol a biztonság és a kényelem mellett az energiatakarékosság volt a fő szempont. A ház átgondolt tervezésének köszönhetően kényelmes, otthonos, szellős, viszont ugyanakkor bővelkedik a reprezentatív, elegáns elemekkel.

 

Az ingatlan klímájáról, valamint a használati melegvíz ellátásáról egy modern, energia takarékos, innovatív levegő-víz hőszivattyú gondoskodik H tarifás üzemeltetéssel.

 

A hőszivattyú a téli időszakban a padlón keresztül fűt, míg a nyári melegben kellemesen, egyöntetűen lehűti az ingatlant. Természetesen a használati melegvíz ellátását is biztosítja.

Ennek köszönhetően a rezsi költségek minimalizálódnak.

 

Ennél a beruházásnál most lehetősége van kompromisszumok nélkül egy olyan házba költözni, ahol Ön kiválaszthatja a hideg és meleg burkolatokat, szanitereket, valamint az egyéb kiegészítőket a családja legnagyobb megelégedésére, ez által személyre szabva álmai otthonát.

A gépjárművekkel a térkövezett beállón lehet biztonságosan parkolni.  

 

Az ingatlan egy 350 nm-es privát telken helyezkedik el.

 

Igénybe vehető lehetséges kedvezmények:

CSOK Plusz

5% Áfa visszatérítés

3% Otthon Start Lakáshitel

Babaváró hitel

Illeték kedvezmény vagy mentesség.



Helyiség lista a földszinten:

- Előtér

- Közlekedő

- Kamra

- Négy hálószoba

- Kettő fürdőszoba

- Amerikai konyha,

- Étkező

- Nappali

- Terasz

 

A hirdetés referencia fotókat is tartalmaz!

 

Az ingatlan biztonságos, nyugodt, csendes, kertes házas övezetben, Vácrátót egyik legszebb részén található, a Szent István lakópark területén. A környék fejlett infrastruktúrájának köszönhetően bővelkedik a szociális intézményekben, bölcsőde, óvoda, általános iskola, orvosi intézmények, bevásárlási lehetőségek, találhatóak a közelben.



Közlekedése kiváló, busszal vagy vonattal a Nyugatii pu.illetve Vác rövid idő alatt megközelíthető. Az M2-es autópálya pár perc alatt elérhető.



Hitel, CSOK igénylésben díjmentes ügyintézéssel állunk rendelkezésére! Nálunk kiválaszthatja az Ön számára legkedvezőbb ajánlatot.

Várom megtisztelő érdeklődésüket.

Családi ház részletei

Ár: 94 500 000 Ft
Méret: 108 négyzetméter
Azonosító: 11593915
Irodai azonosító: 209002116
Telek: 350 négyzetméter
Ingatlan állapota: Kitűnő
Jelleg: családi ház
Építőanyag: Tégla
Komfort fokozat: Összkomfort
Kor: Új építésű
Egész szobák: 5

Így keressen családi házat négy egyszerű lépésben. Csupán 2 perc, kötelezettségek nélkül!

Szűkítse a családi házak
listáját
Válassza ki a megfelelő
családi házat
Írjon a hirdetőnek
Várjon a visszahívásra