Eladó családi ház Vácrátót 94 900 000 Ft

Leírás

(For English scroll down)

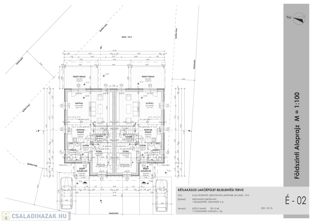
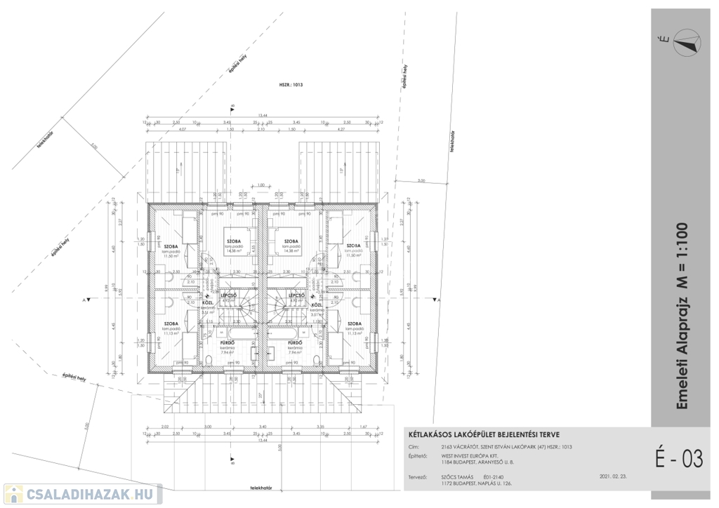
Vácrátóton a Szent István Lakóparkban eladó új építésű családi ház!

Az ingatlan jelenleg építés alatt, várható átadás 2025. decemberben lesz.

A ház 108 nm-es, nappali+amerikai konyha található benne, három hálószoba, és egy fürdőszoba.

A hideg-meleg burkolatok, a nyílászárók (mérete, alakja), a bejárati ajtó választható, a ház színezése és a kerítés is teljesen egyedi igényekre szabható. Az építkezés ideje alatt a belső válaszfalak is mozgathatók.

A ház fűtését hőszivattyú biztosítja.

Vácrátót megközelítése lehetséges az M3-as autópályán, vagy a 2-es úton, fél óra Budapestről.

A lakópark területén már most önkormányzati bölcsöde üzemel, gondolva a leendő kis lakókra.

Kérdés esetén keressen bizalommal, akár hétvégén is! Ha nem veszem fel, visszahívom!

INGYENES, BANKFÜGGETLEN hiteltanácsadás!


The house has 108 sqm, living room + kitchen, three bedrooms and a bathroom.

The cold and warm tiling, the windows (size, shape), the front door are optional, the colouring of the house and the fence can be completely customized. The internal partition walls can be moved during the construction.

The house is heated by a heat pump.

Access to Vácrátót is possible from the M3 motorway or from the way number 2, half an hour from Budapest.

A municipal nursery is already operating in the residential area, thinking of the future small residents.

If you have any questions, please contact me, even at the weekends! If I do not answer, I will call you back!

FREE, BANK-FREE credit advice!

Családi ház részletei

Ár: 94 900 000 Ft
Méret: 108 négyzetméter
Azonosító: 11489479
Irodai azonosító: 378788
Cím: Szent István Lakópark
Telek: 450 négyzetméter
Ingatlan állapota: Átlagos
Jelleg: ikerház
Építőanyag: Tégla
Fűtés jellege: Geotermikus
Fűtés módja: Hőszivattyú
Komfort fokozat: Összkomfort
Kor: Új építésű
Szintek száma: 1 szint
Egész szobák: 4

Egyéb jellemzők

  • Csatorna
  • Garázs
  • Pince
  • Terasz

Térkép


Így keressen családi házat négy egyszerű lépésben. Csupán 2 perc, kötelezettségek nélkül!

Szűkítse a családi házak
listáját
Válassza ki a megfelelő
családi házat
Írjon a hirdetőnek
Várjon a visszahívásra