Eladó családi ház Váchartyán 145 000 000 Ft

Leírás

ELADÓ, egyedi tervezésű, ÚJÉPÍTÉSŰ, családi ház, Váchartyánban, dupla garázzsal!

A vásárláshoz CSOK OTTHONTEREMTÉSI TÁMOGATÁS igényelhető vagy akár a "3%-os" hitel is!

Elege van már Göd, Dunakeszi, Veresegyház és Vác zsúfoltságából?
Szeretne egy élhető méretű házat, normális méretű saját kerttel?
Minőségi kivitelezésű, egyedi tervezésű, barátságos, szép otthonra vágyik, kedvező rezsivel?
Akkor Önnek találták ki ezt a házat!
Itt nem kell izgulnia, hogy körbeépítik az új házát!
Itt Váchartyán szélén, természet közelében élhet, kevés szomszéddal!

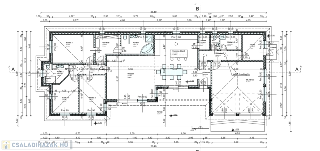
A ház praktikus elosztással lett tervezve, figyelembe véve, hogy minél élhetőbb legyen és boldog, barátságos otthont biztosítson az új Tulajdonosának és a Családjának.
Az épület minőségi anyagokból, magas szakértelemmel épül, acélvázas könnyűszerkezetes technológia alkalmazásával, melyekből közel nulla energiaigényű házak, A+ energiaosztályú épületek, passzív/aktív házak egyaránt megépíthetőek.
A tetőt cseréppel fedik be.
Az épület külső nyílászárói fokozott hőszigetelt üvegezésű műanyag szerkezetek nyíló-, bukó-nyíló, illetve fix, néhol csúsztatható kivitelben kerülnek berakásra.
Korszerű, energiahatékony, hőszivattyús fűtés lesz kiépítve, az alacsony rezsi eléréshez, így nem lesz szükség gázra a házban, tehát a gázszámlát már meg is spóroltuk.
A fűtésrendszer mellé kiegészítésnek egy kémény is kiépítésre kerül, ha az új Tulajdonos szeretne kandallót, adott lesz a lehetőség.
A belső burkolatokat, színeket és szanitereket az Ön ízlése szerint készítik el, a megadott értékhatáron belül.
(Természetesen lehetőség van eltérni ettől, de az ezzel járó megoldások, plusz költséggel járhatnak.)
A lakószobák és konyha falburkolata glettelésre felhordott egyszínű diszperzites falfestés lesz.
A fürdőszobákban, WC helyiségekben és mosókonyhákban csempeburkolat készül felkínált mintadarabokból választva, Megrendelői igények szerint.
A konyhában a beépített pult fölötti 60 cm-es sávok lesznek leburkolva.
Az előtér, konyha, étkező, gardrób mázas greslappal burkolt, a fürdőszoba, mosókonyha, WC burkolata csúszásmentes greslappal lesz borítva.
A nappaliban és a szobákban laminált parkettát tesznek le, a teraszokat és erkélyeket csúszásmentes, fagyálló lapokkal burkolják.
Riasztó, kábeltv és internet előkészítését is tartalmazza az ár, úgy mint a szellőzőrendszer csövezésének kiépítését.
Jelen pillanatban míg az építkezés olyan stádiumban van, még változtathatóak a belső terek, helyiségek elrendezései, a tartófalakon kívül.
Jelen tervek szerint lakás alapterülete 151,33 m2 + 36 m2-es garázs + 43 m2-es terasz.
Itt például a garázsból lehet szobát kérni, ha valakinek az az igénye vagy elegendő Neki kisebb helyiség.
A kültéri járdák térkő burkolatot kapnak.

Budapest (20 perc) és Vác (5 perc) is könnyedén és gyorsan elérhető autóval!
Az ingatlan elhelyezkedése tömegközlekedés szempontjából jó!
Kérje e-mailben a részletes műszaki tájékoztatót a legtöbb képpel!
További információért forduljon Hozzám bizalommal!

Tervezett átadás: Szerződéskötéstől számított 3-4 hónap, ez persze függ a megrendelői igényektől is.
Jelenleg tető alatt, szerkezetkész állapotban van az ingatlan és így is megvásárolható!
Hívjon mielőbb, hogy ne maradjon le Róla!

Amivel segítjük az Ön ingatlanvásárlását:
-ingyenes, bankfüggetlen hitelügyintézés (CSOK és Babaváró ügyintézése is.)
-jogi háttér
-földhivatali ügyintézés
-energetikai tanúsítvány elkészítése
-biztosítás
-belsőépítész

Családi ház részletei

Ár: 145 000 000 Ft
Méret: 187 négyzetméter
Azonosító: 11567654
Irodai azonosító: 387730
Cím: Település szélén
Telek: 1104 négyzetméter
Ingatlan állapota: Kitűnő
Jelleg: családi ház
Építőanyag: Könnyűszerkezetes
Fűtés jellege: Geotermikus
Fűtés módja: Hőszivattyú
Komfort fokozat: Luxus komfort
Kor: Új építésű
Szintek száma: Földszintes
Egész szobák: 4

Egyéb jellemzők

  • Csatorna
  • Garázs
  • Pince
  • Terasz

Térkép


Így keressen családi házat négy egyszerű lépésben. Csupán 2 perc, kötelezettségek nélkül!

Szűkítse a családi házak
listáját
Válassza ki a megfelelő
családi házat
Írjon a hirdetőnek
Várjon a visszahívásra