Eladó családi ház Vácegres 69 990 000 Ft

Leírás

CSEND ÉS NYUGALOM!

ÁLMODD MEG ÉS MEGÉPÍTIK, AKÁR CSOK+ FELHASZNÁLÁSÁVAL !!!

FALAK:
- A külső „határoló falak'' bordázat 50 cm-ként, kívülről 15
mm OSB borítással, a fő falban 15 cm hőszigetelés, belső oldalon
hőtükrös párazáró fólia, 2 réteg gipszkarton
borítás.
- A válaszfalak gipszkarton bordázat 50 cm-ként, mindkét oldalon 1
rétegnormál - gipszkarton, a válaszfalakban 10 cm hangszigetelés.

FÖDÉM:
- rácsos tartószerkezet statika szerint, (ha kell fesztáv függő)
- A födém szerkezetben 25 cm hőszigetelés,
- Mennyezeten gipszkarton borítás, hőtükrös párazáró fólia

TETŐSZERKEZET :
− rácsos tartó fém tető vagy szeglemezes fa tető
- Páraáteresztő fólia terítés 15 cm átfedéssel,
- Tetőlécezés 3 x 5 cm, szarufákon ellen lécezéssel,
- Az eresz lambériázása, 2 rétegben festve vagy dobozolva
- Alumínium függőeresz csatorna, a cseréppel megegyező színben
(félkörszelvényű), 4 lefolyó a házon.

- Cserepeslemez vagy
- Beton cserépfedés (Leier - Terrán - Bramac) alapcserép ből
választható színekben, vagy cserepeslemez vagy zsindely max
3.500/ m2 a kúpokkal együtt.

NYÍLÁSZÁRÓK:

- Standard készen vehető

- Ablakok: 3 rétegű ( Ug = 0,75 W/ m2 K ) gáztöltésű üveggel ellátva
- Szín: alapárban fehér
- Az erkélyajtók bukó-nyíló vasalattal
- Beltéri ajtók utólag beszerelhető dekorpaneles ajtók – választható
színekben bruttó 65.000 Ft ig
- Redőny és szúnyogháló nélkül
- Kívül – belül fehér műanyag párkány

KÜLSŐ FALFELÜLETEK:

- Fő falakon extrudált polisztirolhab hőszigetelő lemez 10 cm
vastagságban, - tárcsázva
- Lábazaton 5 cm vastag xps polisztirol hőszigetelő lemez
- Homlokzaton 1.5 mm kapart hatású műgyanta vakolat pasztell
színben
- Külső vakolat színe a gyártó által megadott színskálából választható
- Lábazaton lábazati műgyanta vakolat szintén választható
- Ablakoknál dísz spaletták nélkül

ALJZAT SZIGETELÉS – ALJZATBETON:
- 12 cm vastag hőszigetelés az aljzatban
- Dilatációs szalag a falaknál
- 6 cm vastag esztrich beton

HIDEG ÉS MELEG BURKOLATOK :
- Beton alapfelületek felületelőkészítése, alapozó felhordása ahol
szükséges
- Padlóburkolat készítése beton alap felületen, 3-7 mm ragasztóba
rakva, 1-5 mm fugaszélesség, max. 40 x 40 lapmérettel az alapárban,
fugázóanyag a kívánt színben
- Hideg burkolatoknál lábazat készítése a padlóburkolat anyagából
- A padlóburkolat és a lábazatnál képződő negatív sarok rugalmas
fugázó anyaggal tömítve
- Fürdő falainál 2 m magasságig burkolva, épített zuhanykabin nélkül
- A sarkokban rugalmas gumi sarok kialakítása, a kád és zuhanykabin
mögött folyékony fólia felkenése
- Ha a terveken külön szerepel, kültérben lépcsőburkolat készítése 3-
10 mm ragasztóba rakva, járólap 35 cm szélességig 1-5 mm
fugaszélesség, élvédelem nélkül, fugázva
- Laminált parketta fektetés, hangszigetelt réteggel ellátva
- Parkettás helyiségekben lábazat készítése a parkettával azonos lábazati
profilokból
- A hideg és meleg burkolatokat a megrendelő biztosítja, + a
kiegészítők (élvédők, szegélyek)
- Az árajánlat tartalmazza a gumisarkot - folyékony fóliát a fürdőben, a
burkolatoknál a ragasztót, a fuga anyagot, és a szilikont a sarokban.
Laminált parkettánál a hővisszaverős alátétet.

FESTÉS-FELÜLETKÉPZÉS:
- Belső festéseknél felület előkészítése, glettelés - gipszes glettel 3
rétegben
- Diszperziós festés fehér vagy gyárilag színezett festékkel pasztell
színekkel, 2 rétegben

Fűtés szerelés:
Elektromos fűtéseknél:

- javasoljuk ebben az esetben 2 db fűtő hűtő klímát, és Nobo radiátorokat, törölköző szárító radiátort


Szerelvényezés:
- Konyha, fürdőszoba, wc szerelvényezése – készre szerelése
sarokszelepek, csaptelepek, stb. felszerelése .
Amit a szerelvényezés nem tartalmaz :
- zuhanykabin összeszerelése,
- zuhanynál ajtó, üvegfal, stb.,
- szekrények, polcok, fali tartók stb .,
- a konyha bekötésénél, ha még nincs konyhaszekrény, akkor helyszíni
egyeztetés szükséges az épületgépésszel !

Villanyszerelés:

Egy 100 méteres háznál így alakul:


- előtér: 1 lámpa váltókapcsolóval
- wc: 1 lámpa, 1 kapcsoló, 1 dugalj
- házt.h: 1 lámpa, 1 kapcsoló, 4 dugalj, - kazán – mosógép- vasaló,

+1 dugalj

- fürdő: 2 lámpa, 2 kapcsoló, 2 dugalj
- konyha: 2 lámpa, 2 kapcsoló, 10 dugalj
- nappali: 2 lámpa váltókapcsolóval, 6 dugalj
- szobák /db: 1 lámpa, 1 kapcsoló, 4 dugalj
- kültér: bejáratnál 1 lámpa - 1 kapcsoló, homlokzaton 2 lámpa,

2 kapcsoló, 2 dugalj

- tv kiállás: 3 db
- összesen: 65 db kiállás - 100 m2, a végleges alaprajz fogja megadni.

- schneider sedna szerelvénycsalád, a kapcsolók és dugaljak fehér
színben
- a villanyszerelés nem tartalmazza a lámpatestek felszerelését
Mérőhely, elektromos fűtés, napelem előkészítése, kamera, riasztó,
szivattyú,
kapunyitó, lámpatestek felszerelése, stb egyedi árajánlat szükséges.

INGYENES hitel tanácsadás! CSOK+ Ügy intézés!
BANKFÜGGETLEN hitelcentrumunk minden elérhető bank és hitelintézet ajánlatát versenyezteti az Ön kedvéért, ráadásul DÍJMENTESEN.
Önnek nincs más dolga, mint elbeszélgetni munkatársunkkal, aki a hallott információk alapján versenyre hívja a bankokat, hogy Ön hosszú távon is a legjobb konstrukciót kaphassa. A legjobb ajánlatokból végül Ön választhatja ki a nyertest.
Munkatársaink sokéves szakmai tapasztalattal várják Önt, előre egyeztetve akár a normál munkaidő után is.

Amennyiben hirdetésem felkeltette érdeklődését, várom hívását, akár hétvégén is! V.I.

Családi ház részletei

Ár: 69 990 000 Ft
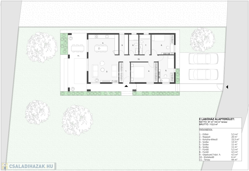
Méret: 97 négyzetméter
Azonosító: 11503354
Irodai azonosító: 380061
Cím: Vácegres központi részén
Telek: 984 négyzetméter
Ingatlan állapota: Átlagos
Jelleg: családi ház
Építőanyag: Könnyűszerkezetes
Fűtés jellege: Villany
Fűtés módja: Villany
Komfort fokozat: Összkomfort
Kor: Új építésű
Szintek száma: Földszintes
Egész szobák: 4

Egyéb jellemzők

  • Csatorna
  • Garázs
  • Pince
  • Terasz

Térkép


Így keressen családi házat négy egyszerű lépésben. Csupán 2 perc, kötelezettségek nélkül!

Szűkítse a családi házak
listáját
Válassza ki a megfelelő
családi házat
Írjon a hirdetőnek
Várjon a visszahívásra