Eladó családi ház Vác 92 000 000 Ft

Leírás

Vácon, energiatakarékos, körpanorámás, új építésű családi ház eladó!

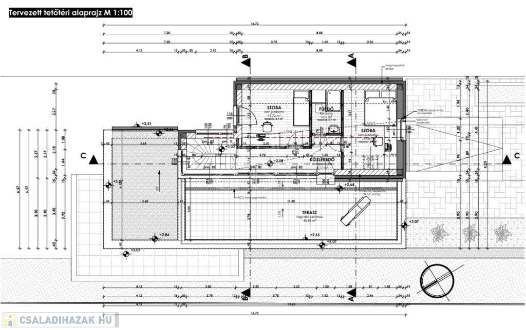
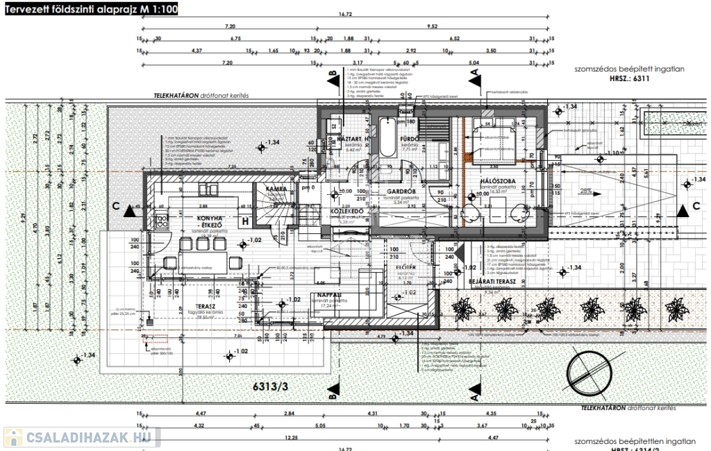
Megvételre kínálok Pest vármegyei Vácon, Törökhegy csendes, körpanorámás részén, szerkezetkész BB energetikai besorolásra tervezett, 1000 nm-es telken, nettó 151 nm-es, 70 nm terasz, belső 2 szintes, alápincézett, 4 szoba + amerikai konyhás nappalival rendelkező, új építésű, keleti fekvésű, önálló családi házat.

Első osztályú anyagokból, minőségi kivitelezéssel, extra hőszigeteléssel, Hőszivattyús fűtéssel, 3 rétegű műanyag nyílászárókkal, kerítéssel, riasztóval.

Az ingatlan 2021-ben kezdett épülni téglából, vasbeton és betongerendás födémmel, betoncseréppel. A homlokzat 15 cm-es szigetelést kapott.

Szuterén szinten garázs és tároló lett kialakítva.
A ház rendelkezik vízbekötéssel, saját emésztővel. Telek nem rendelkezik gáz bekötéssel, gázfelhasználás nem történik az épületben.

Az ingatlan PER és TEHERMENTES!

Infrastruktúrája jó, 10 percen belül található a helyi busz megállója, autóval pedig pillanatokon belül megközelíthető, az E77/M2-es autóút, illetve a főváros autóval 30 perc. A Nyugati pályaudvarra zónázó vonattal 40 perc alatt beérhetünk! Közelben elérhető városi kórház, óvodák, panziók, pincészet, autószerelő.

INGYENES a hiteltanácsadás is!
BANKFÜGGETLEN hitelcentrumunk minden elérhető bank és hitelintézet ajánlatát versenyezteti az Ön kedvéért, ráadásul DÍJMENTESEN.
Önnek nincs más dolga, mint elbeszélgetni munkatársunkkal, aki a hallott információk alapján versenyre hívja a bankokat, hogy Ön hosszú távon is a legjobb konstrukciót kaphassa.

Amennyiben a hirdetés felkeltette az érdeklődését, várom a hívását, akár hétvégén is. S.Z.E.

Családi ház részletei

Ár: 92 000 000 Ft
Méret: 151 négyzetméter
Azonosító: 11218798
Irodai azonosító: 351040
Cím: Felső Törökhegyi út közelében
Telek: 1012 négyzetméter
Ingatlan állapota: Kitűnő
Jelleg: családi ház
Építőanyag: Tégla
Fűtés jellege: Geotermikus
Fűtés módja: Hőszivattyú
Komfort fokozat: Összkomfort
Kor: Új építésű
Szintek száma: 2 szint
Egész szobák: 4

Egyéb jellemzők

  • Csatorna
  • Garázs
  • Pince
  • Terasz

Térkép


Így keressen családi házat négy egyszerű lépésben. Csupán 2 perc, kötelezettségek nélkül!

Szűkítse a családi házak
listáját
Válassza ki a megfelelő
családi házat
Írjon a hirdetőnek
Várjon a visszahívásra