Eladó családi ház Úrhida 92 000 000 Ft

Leírás

Vh-00 Úrhidán, az Arany János utcában, lakóparki környezetben eladó egy újszerű állapotú, nappali + 3 hálószobás, összesen 144 m² -es lakóingatlan, amely 860 m² nagyságú,- önálló használatú telekrésszel, kétállásos gépkocsitárolóval, napelemes rendszerrel, valamint magas felszereltséggel rendelkezik.

Az ingatlan 2008-ban épült, a mai kornak is megfelelő műszaki megoldásokkal.
A homlokzati és teherhordó falazatok 38 cm vastagságú Leier falazóelemekből készültek, 5 cm vastag Terranova hőszigetelő rendszerrel ellátva.
A belső válaszfalak 10 cm vastagságú Leier falazóelemekből épültek. A födémszerkezet fa gerendás kialakítású, 20 cm vastag Isover ásványgyapot hőszigeteléssel.
A tetőszerkezet fa ácsszerkezetű, fedése Tondach cserép.
A nyílászárók kétrétegű hőszigetelő üvegezésű szerkezetek, redőnnyel és szúnyoghálóval felszerelve.
A fűtési és használati melegvíz-ellátási rendszer hőtermelője egy 24 kW teljesítményű (turbó), kombi gázkazán. A hőleadás padlófűtéses rendszerrel történik, a hálószobákban pedig radiátorokkal.
A nappaliban, valamint mindhárom hálószobában önálló hűtő-fűtő, split klímaberendezés került telepítésre.
Az ingatlanon 5 kW teljesítményű napelemes rendszer működik, amely 5 évvel ezelőtt került üzembe helyezésre. Az elektromos hálózat 3×20 A kapacitású. Vízlágyító berendezés telepítéséhez szükséges gépészeti előkészítés rendelkezésre áll.

A belső terek tágasak és világosak, fa díszítőelemekkel, egyedi tervezésű bútorokkal és hangulatvilágítással, amelyek igényes, esztétikus összhatást teremtenek.

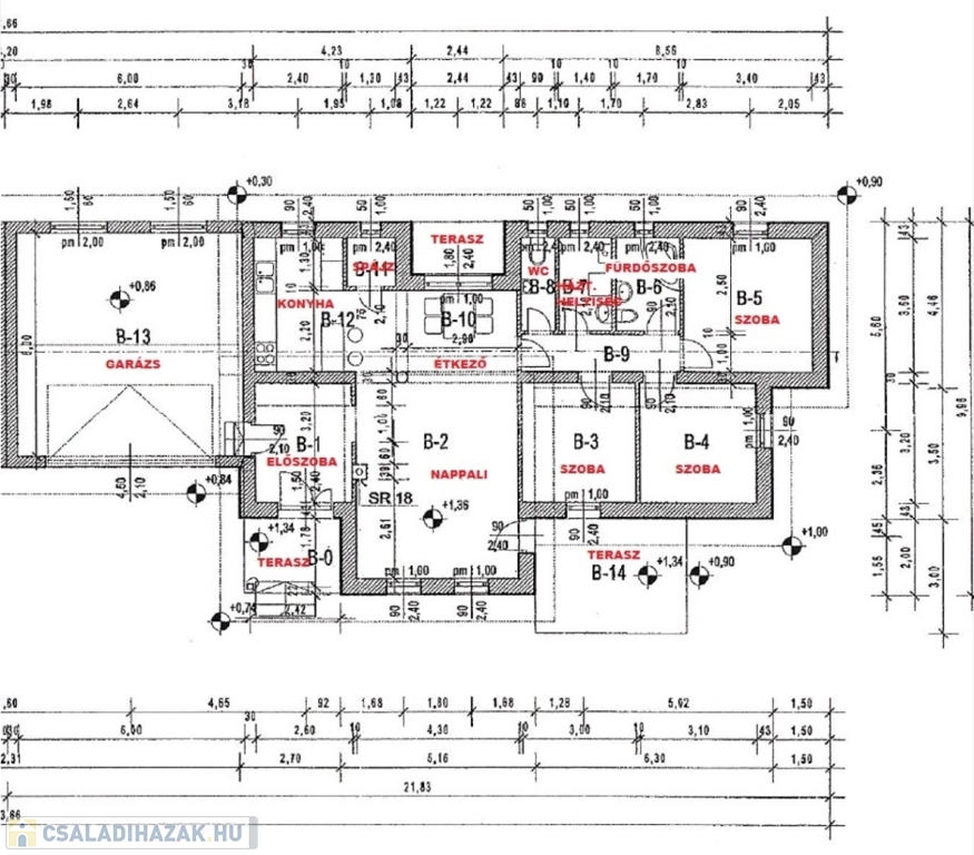
Elosztását tekintve az ingatlan 99 m² hasznos alapterülettel rendelkezik.

Helyiséglista:
• Előszoba: 8,3 m²
• Nappali: 23 m²
• Étkező: 7 m²
• Kamra: 1,7 m²
• Konyha: 11,7 m²
• Hálószoba: 10,5 m²
• Hálószoba: 10 m²
• Hálószoba: 11 m²
• Fürdőszoba: 5,3 m²
• Háztartási helyiség: 3,5 m²
• WC: 2,5 m²
• Közlekedő: 4,2 m²

A lakóépülethez közvetlenül kapcsolódik egy 36 m² alapterületű, fűtött, kétállásos gépkocsitároló, amely az előszobából megközelíthető.
Valamennyi helyiség közvetlen teraszkapcsolattal rendelkezik. Az épület mentén közel teljes hosszban burkolt teraszfelület található, összesen megközelítőleg 60 m² alapterülettel. A hátsó telekrészen jakuzzi elhelyezésére alkalmas közműkiállások kerültek kialakításra.

A telek 860 m² nagyságú, parkosított, rendezett és teljes mértékben elkülönített használatú. A kert öntözését ásott kút, valamint almérős locsolórendszer biztosítja. A garázs előtti terület térburkolattal ellátott, amely több gépjármű parkolására alkalmas.

A lakópark mintegy 3.500 m² alapterületű, összesen 4 lakóegységből áll, páros elrendezésben. Az egyes ingatlanok kizárólag a gépkocsitárolók falszerkezetén keresztül érintkeznek, a lakófunkciójú szerkezetek között közvetlen kapcsolat nincs.

Eladási irányár: 92.000.000 Ft
(per-, teher- és igénymentes tulajdon)

Ha felkeltette érdeklődését, hívja irodánkat bizalommal, éljen ingyenes, személyre szabott hitelügyintézés szolgáltatásunkkal. Segítünk továbbá adásvételhez szükséges ügyvédi közreműködésben, energetikai tanúsítvány, valamint értékbecslés elkészítésében.

For English details please send us a message or an e-mail, thank you!

Családi ház részletei

Ár: 92 000 000 Ft
Méret: 144 négyzetméter
Azonosító: 11601591
Irodai azonosító: 392983
Cím: Arany János utca
Telek: 860 négyzetméter
Ingatlan állapota: Kitűnő
Jelleg: családi ház
Építőanyag: Tégla
Fűtés jellege: Cirkó
Fűtés módja: Gáz
Komfort fokozat: Összkomfort
Kor: 11-20 éves
Szintek száma: Földszintes
Egész szobák: 4

Egyéb jellemzők

  • Csatorna
  • Garázs
  • Pince
  • Terasz

Térkép


Így keressen családi házat négy egyszerű lépésben. Csupán 2 perc, kötelezettségek nélkül!

Szűkítse a családi házak
listáját
Válassza ki a megfelelő
családi házat
Írjon a hirdetőnek
Várjon a visszahívásra