Eladó családi ház Üllő 94 900 000 Ft

Leírás

ELADÓ HŐSZÍVATTYÚS ÚJÉPÍTÉSŰ, KÜLÖNÁLLÓ családi ház Üllő központjában, csendes kertvárosi környezetben.

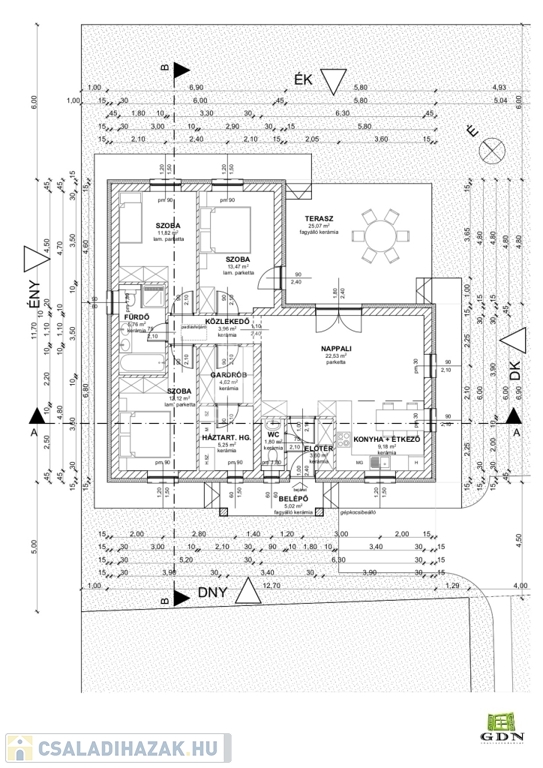
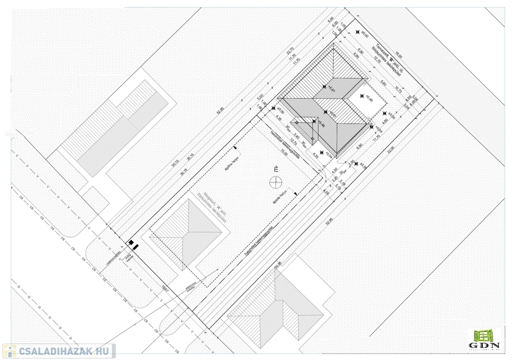
Az ingatlan 544 m2-es TELKEN helyezkedik el, NETTÓ 95,11m2 EGYSZINTES, téglaépítésű.
A nagyméretű AMERIKAI KONYHÁS NAPPALI mellett három különálló szoba is megtalálható.

Az elegáns belső terekben a nappaliból és az egyik hálóból nyílik a tágas, 25m2-es TERRASZ, ahol kiválóan lehet pihenni.

Az egész házat a MINŐSÉGI KIVITELEZÉS és gondos odafigyelés hatja át, ami a műszaki adatokban is megjelenik, így garantált a kiváló ÉLETMINŐSÉG!

Az épület modern technológiai megoldásokat alkalmaz: a világ egyik vezető gyártójának a STIEBEL ELTRON HŐSZIVATTYÚS rendszere biztosítja az otthon melegét és gondoskodik a meleg víz ellátásról is. ENERGIATAKARÉKOS megoldás, így AZ ALACSONY REZSI garantált!

**A ház **
Kulcsrakész állapotban 94,9M Ft-ért vásárolható meg, a várható átadás ideje 2026.junius vége.
Környezetből nem hiányzik semmi: bölcsőde, óvoda, iskola, edzőparkok, üzletek és a városközpont csak egy pár perces sétára vannak.
Közlekedés szempontjából ideális elhelyezkedéssel rendelkezik: GYALOG 10 PERCRE a helyi buszmegálló és a vasútállomás, ahonnan Kőbánya-Kispestre és a Nyugati pályaudvarra utazhatunk. Gépjárművel az M5, M4, M0 autópályákon elérhető az uticélunk.

Épület Jellemzői:
• Falazat: 30-as N+F Leier tégla
• Homlokzati szigetelés: 15cm vastagságú EPS, padozat alatt 15 cm lépésálló EPS
• Födémszigetelés: 30 cm ásványgyapot
• Lábazati szigetelés: 8 cm xps
• Gépészet: A hidegburkolatú helyiségekben padlófűtés, a nappaliban, konyhában, szobákban mennyezeti hűtés/fűtés is. Minden helyiség külön termosztátról szabályozható.
• A fürdőszobában elektromos patronos radiátor, idő és páraérzékelős szellőző ventilátor.
A nappaliban inverteres klíma kiépítése(levegő cserélése,szárítása miatt), a 3db szobában és a konyhában az ablakokba EMM 716 aereco szellőztetés beépítés.

• Nyílászárók: fehér műanyag Kömmerling 5 kamrás 3 rétegű üvegezéssel.
• Gépészeti helyiség: Stiebel Eltron levegő-víz hőszivattyú + tartozékai, mosógép +szárítógép kiállás.
• Villanyszerelés: lakás ellátása 3*20A + 1x20A H tarifa.
• Tető héjazat: antracit Bramac cserép.
Csempe és padlóburkolatok választhatóak, egységesen 6000 Ft/m2 bruttó értékig, meleg burkolatot 4000 Ft/m2 bruttó értékig állja a vállalkozó (burkolatok ára a ragasztón, élvédőn, egyéb segédanyagokon kívül értendő, a segédanyagokat a vállalkozó biztosítja)
Belső ajtók: a dekorfóliás beltéri ajtó kínálaton kívül is választhatóak, bruttó 75.000 Ft/db értékig, kilincsekkel és beépítéssel együtt.

Kedvezmények: OTTHON START hitel,CSOK+, állami kamattámogatású lakáshitel, illetékmentesség, DÍJMENTES ÜGYINTÉZÉS és egyedi kedvezmények várják a vásárlókat!

Ne hagyja ki ezt a kivételes lehetőséget: VEGYE MEG ÚJ OTTHONÁT Üllő szívében!
További információért keressen bizalommal!

Családi ház részletei

Ár: 94 900 000 Ft
Méret: 95 négyzetméter
Azonosító: 11568062
Irodai azonosító: 387791
Cím: 2026. júniusi birtokba adás!
Telek: 544 négyzetméter
Ingatlan állapota: Kitűnő
Jelleg: családi ház
Építőanyag: Tégla
Fűtés jellege: Geotermikus
Fűtés módja: Hőszivattyú
Komfort fokozat: Összkomfort
Kor: Új építésű
Szintek száma: Földszintes
Egész szobák: 4

Egyéb jellemzők

  • Csatorna
  • Garázs
  • Pince
  • Terasz

Térkép


Így keressen családi házat négy egyszerű lépésben. Csupán 2 perc, kötelezettségek nélkül!

Szűkítse a családi házak
listáját
Válassza ki a megfelelő
családi házat
Írjon a hirdetőnek
Várjon a visszahívásra