Eladó családi ház Üllő 109 000 000 Ft

Leírás

NAGYCSALÁDOSOK FIGYELEM!

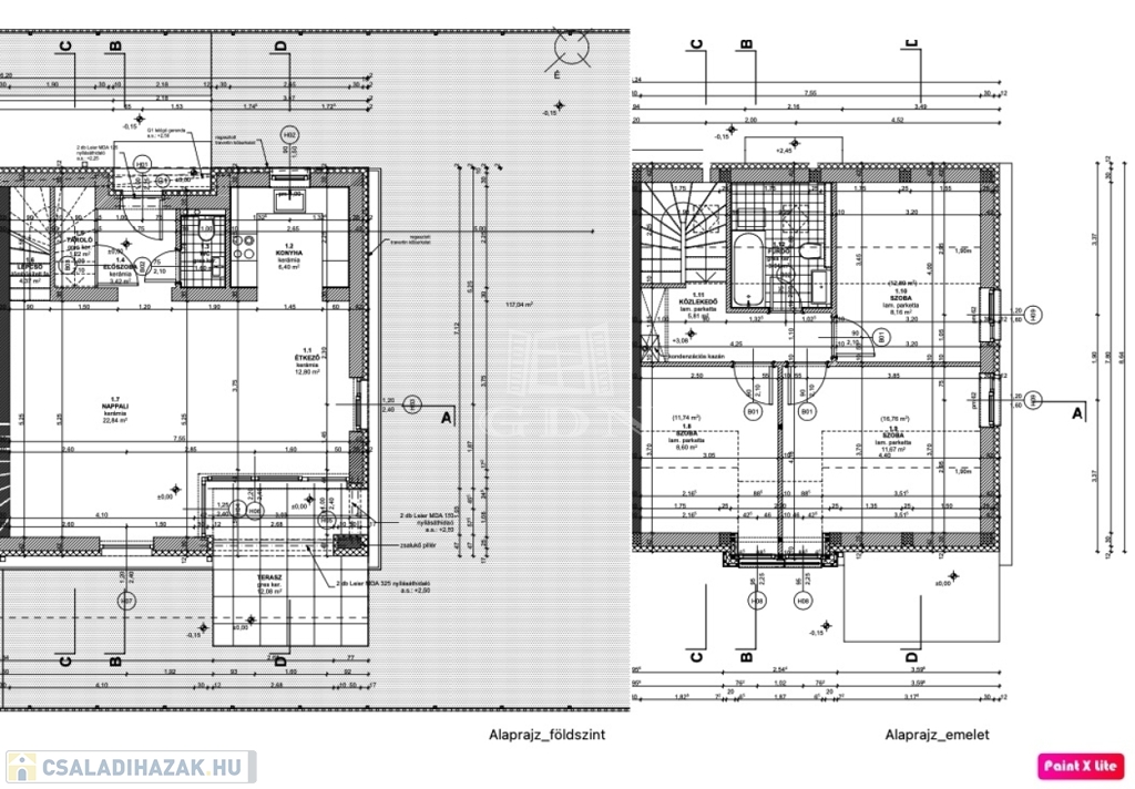
Üllőn a Sportliget lakóparkban, megvételre kínálok egy 2018-ba épült ikerház felet.

Az ingatlan Leiertherm 30N+F kerámia téglából, 10 cm-es homlokzati szigetelőrendszerrel, 10 cm-es YTONG válaszfalakkal, 15 cm-es mennyezeti paplan szigeteléssel épült, 2 rétegű műanyag nyílászáróval szerelt, 3 külön nyíló szobával, dupla komforttal nagy amerikai konyhás nappalival rendelkezik. Fűtését, egy CALEO elektromos rendszer adja.

2019-ben SolarEdge 5,4 kWp napelem rendszer lett telepítve, mely az ingatlan teljes elektromos rendszerét táplálja.
Átlagos éves termelés stabilan 4 - 5,2 MWh.

A földszinten található egy gépészeti helyiség, wc kézmosóval, kényelmes nagy nappali konyhával, közvetlen kertkapcsolattal.

Az emeleten három teljes értékű külön nyíló szoba és egy kádas fürdőszoba lett kialakítva.

A kizárólagos használatú 250 nm-es kert, kényelmes kikapcsolódást nyújt és gyorsan karbantartható.

1 személyautó parkolására van lehetőség.

Közlekedés. Budapest belvárosa 35 - 60 perc autóval, Üllő vasútállomás, 17 perc gyalogosan, 4 perc autóval.

Amennyiben hirdetésem felkeltette érdeklődését, várom hívását a hét bármely napján. tp

Családi ház részletei

Ár: 109 000 000 Ft
Méret: 91 négyzetméter
Azonosító: 11602107
Irodai azonosító: 393046
Cím: Bozsik József körút
Telek: 250 négyzetméter
Ingatlan állapota:
Jelleg: ikerház
Építőanyag: Tégla
Fűtés jellege: Egyedi
Komfort fokozat: Dupla komfort
Kor: 6-10 éves
Szintek száma: 1 szint
Egész szobák: 4

Egyéb jellemzők

  • Csatorna
  • Garázs
  • Pince
  • Terasz

Térkép


Így keressen családi házat négy egyszerű lépésben. Csupán 2 perc, kötelezettségek nélkül!

Szűkítse a családi házak
listáját
Válassza ki a megfelelő
családi házat
Írjon a hirdetőnek
Várjon a visszahívásra